EasyManua.ls Logo

Payne PG8M - Maintenance Checklist

Payne PG8M
8 pages
Print Icon
To Previous Page IconTo Previous Page
To Previous Page IconTo Previous Page
Loading...
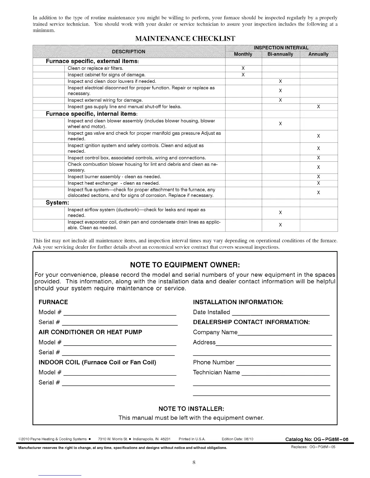
Inadditiontothetypeofroutinemaintenanceyoumightbewillingtoperform,yourfurnaceshouldbeinspectedregularlybyaproperly
trainedservicetechnician,Youshouldworkwithyourdealerorservicetechniciantoassureyourinspectionincludesthefollowingata
minimum,
MAINTENANCE CHECKLIST
Furnace specific, external items:
Clean or replace air filters. X
Inspect cabinet for signs of damage. X
Inspect and clean door louvers if needed. X
Inspect electrical disconnect for proper function. Repair or replace as X
necessary.
Inspect external wiring for damage. X
Inspect gas supply line and manual shut-off for leaks. X
Furnace specific, internal items:
Inspect and clean blower assembly (includes blower housing, blower X
wheel and motor).
Inspect gas valve and check for proper manifold gas pressure Adjust as X
needed.
Inspect ignition system and safety controls. Clean and adjust as X
needed.
Inspect control box, associated controls, wiring and connections. X
Check combustion blower housing for lint and debris and clean as ne- X
cessary.
Inspect burner assembly - clean as needed. X
Inspect heat exchanger - clean as needed. X
Inspect flue system--check for proper attachment to the furnace, any X
dislocated sections, and for signs of corrosion. Replace if necessary.
System:
Inspect airflow system (ductwork)--check for leaks and repair as X
needed.
Inspect evaporator coil, drain pan and condensate drain lines as applic- X
able. Clean as needed.
This list may not include all maintenance items, and inspection interval times may vary depending on operational conditions of the furnace,
Ask your servicing dealer for further details about an economical service contract that covers seasonal inspections,
NOTE TO EQUIPMENT OWNER:
For your convenience, please record the model and serial numbers of your new equipment in the spaces
provided. This information, along with the installation data and dealer contact information will be helpful
should your system require maintenance or service.
FURNACE
Model #
Serial #
AIR CONDITIONER OR HEAT PUMP
Model #
Serial #
INDOOR COIL (Furnace Coil or Fan Coil)
Model #
INSTALLATION INFORMATION:
Date Installed
DEALERSHIP CONTACT INFORMATION:
Company Name
Address
Phone Number
Technician Name
Serial #
NOTE TO INSTALLER:
This manual must be left with the equipment owner.
'>2010 Payne Heating & Cooling Systems 7310 W. Morris St. Indianapolis, IN 46231 Printed in U.S.A. Edition Date: 08/10
Manufacturer reserve8 the right to change, at any time, specification8 and design8 without notice and without obligations,
Catalog No: OG-PG8M-06
Replaces: OG- PGSM-05

Other manuals for Payne PG8M

Related product manuals