EasyManua.ls Logo

Payne PH3G----A - Page 16

Payne PH3G----A
36 pages
Print Icon
To Next Page IconTo Next Page
To Next Page IconTo Next Page
To Previous Page IconTo Previous Page
To Previous Page IconTo Previous Page
Loading...
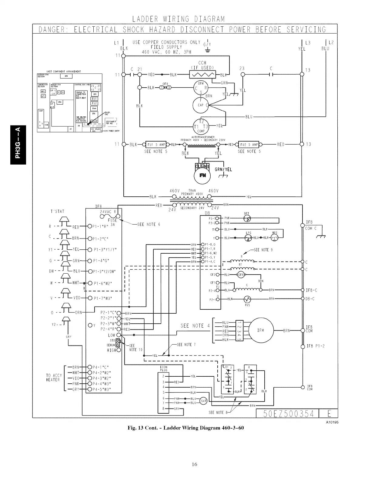
LADDER WIRING DIAGRAM
DANGER ELECTRICAL SHOCK HAZARD DISCONNECT POWERBEFORE SERVICING
UNITCOMPONENTARRANGEMENT
_TmmR FA, _
SEC110N
SECllO_
X.OOORFAN
SECTIO_
CAP1
_mm
9--
_O_rROL_0, _REA_
ELEC_.E_T [_
2B
SEEHE_ER_
SC,E_AIIC
LI I USE COPPER CONDUCTORS ONLY G)Y J L3
BLK FIELD SUPPLY _L YEL
4coVAC,60HZ,SPH =
T'STAT
R
C _ I_[___BRN_-
YI - -ZF_--YEL--
-Z___GR N_
W - -Z_WHT--
0 " -_-_ORN--
Y2 - -_
GR¥
l__
TO ACCY
HEATER
11
11
IFB
FSE _
.C)pl I i IIRII 3A
-0P1-211C11
P1-3IIyI/yII
XZDP1-4IIGI'
-OpI-sIIy2/DHI'
-0 PI-611W211
.mi
-0 ml-7IIWSII
_U p___,,ci,0
o2_211,_110
OY P2-3"w"O
p21411RII 0
LOWO
HfGHO
"0 P4-I IlCll
-C)P4-2'IW211
_ p4 I _II_ II
"C_ Pa-_"W_"
_ p4I_IIW_II
AUTOTRANSFORMER
PRIMARY 460V - SECONDARY 230V
BLK '(EL
460V TRAN 460V
I_ L I_ _) tEL.
13
13
RED _BRN
DB DFT
- PNI/
.-o- ----@ 1
,--..._
P3-PO-- PNK
_SEE NOTE 6 (
TIO- - 8LU_ BLK
LPS
YO--B LU._g LU.-e'-g LI1_
ORN--..OPI-8,0
RED--,,OP1-7,R
_,_--SEE NOTE9
WHTm,OP1-6,W2
__ YELm =OPl_5,y R
................ R1
I..... --_ c
I OF20- --BLU_
I onO- BRN
I T2 --BLU7 ____ .... I
I P2-40" "-_LU--(])" _ry y Y Y v y TJ-_RN
I 0
I P2- I0" --BL _ IBRII.
I
RVS
JBRK
'___,_____
_""'_' SEE _OTE 4 --pN, IFB
--SEE I [_SEE NOTE 7
NOTE '°L 4 -'1
I_
"7 I
E_OM j I_
I 7 -"I--:NK---'I_BLU'--'t_.._._ J / _'_ BRN- --
8 GRY
JL2
BLLJ
Fig. 13 Cont. - Ladder Wiring Diagram 460-3-60
IFB
']FB-C
'DB-C
[FB P1-2
A10195
16