EasyManua.ls Logo

PEDRO GIL RN - POSITION OF EARTHING CONNECTIONS; EARTHING THE CABIN; EARTHING THE UNIT

PEDRO GIL RN
26 pages
Print Icon
To Next Page IconTo Next Page
To Next Page IconTo Next Page
To Previous Page IconTo Previous Page
To Previous Page IconTo Previous Page
Loading...
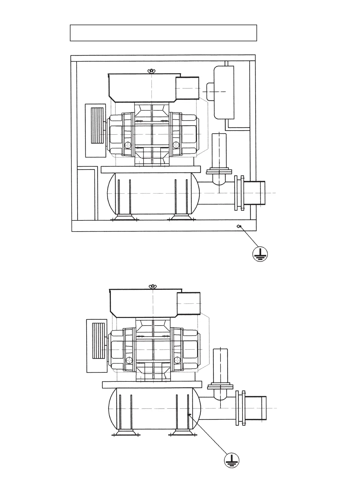
POSITION OF EARTHING CONNECTIONS
EARTHING THE CABIN
EARTHING THE UNIT
5