EasyManua.ls Logo

PEDRO GIL RN - PROTECTION FILTER VIEW AND DIMENSIONS

PEDRO GIL RN
26 pages
Print Icon
To Next Page IconTo Next Page
To Next Page IconTo Next Page
To Previous Page IconTo Previous Page
To Previous Page IconTo Previous Page
Loading...
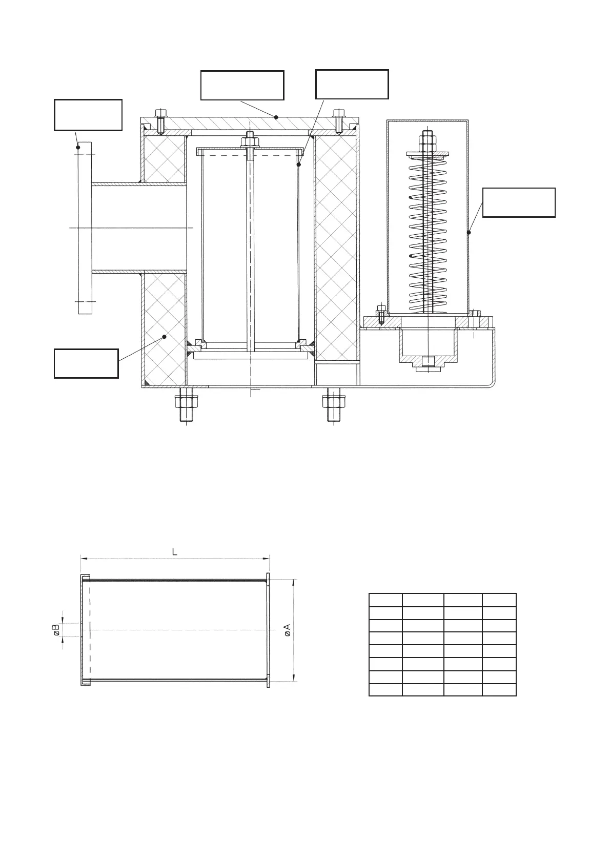
15.1 VIEW OF PROTECTION FILTER
SUCTION
FLANGE
REMOVABLE
COVER
PROTECTION
FILTER
SAFETY
VALVE
INSULATING
MATERIAL
DIMENSIONS OF STARTER FILTER
CARTRIDGE
(NEGATIVE PRESSURE)
(measurements in mm)
DN øA øB L
50 60 11 170
80 80 11 180
100 110 14 200
150 160 14 310
200 210 18 340
250 290 18 470
300 320 18 530
21