EasyManua.ls Logo

PEERLESS WV-DV - 8 Boiler Dimensions & Ratings

PEERLESS WV-DV
24 pages
Print Icon
To Next Page IconTo Next Page
To Next Page IconTo Next Page
To Previous Page IconTo Previous Page
To Previous Page IconTo Previous Page
Loading...
17
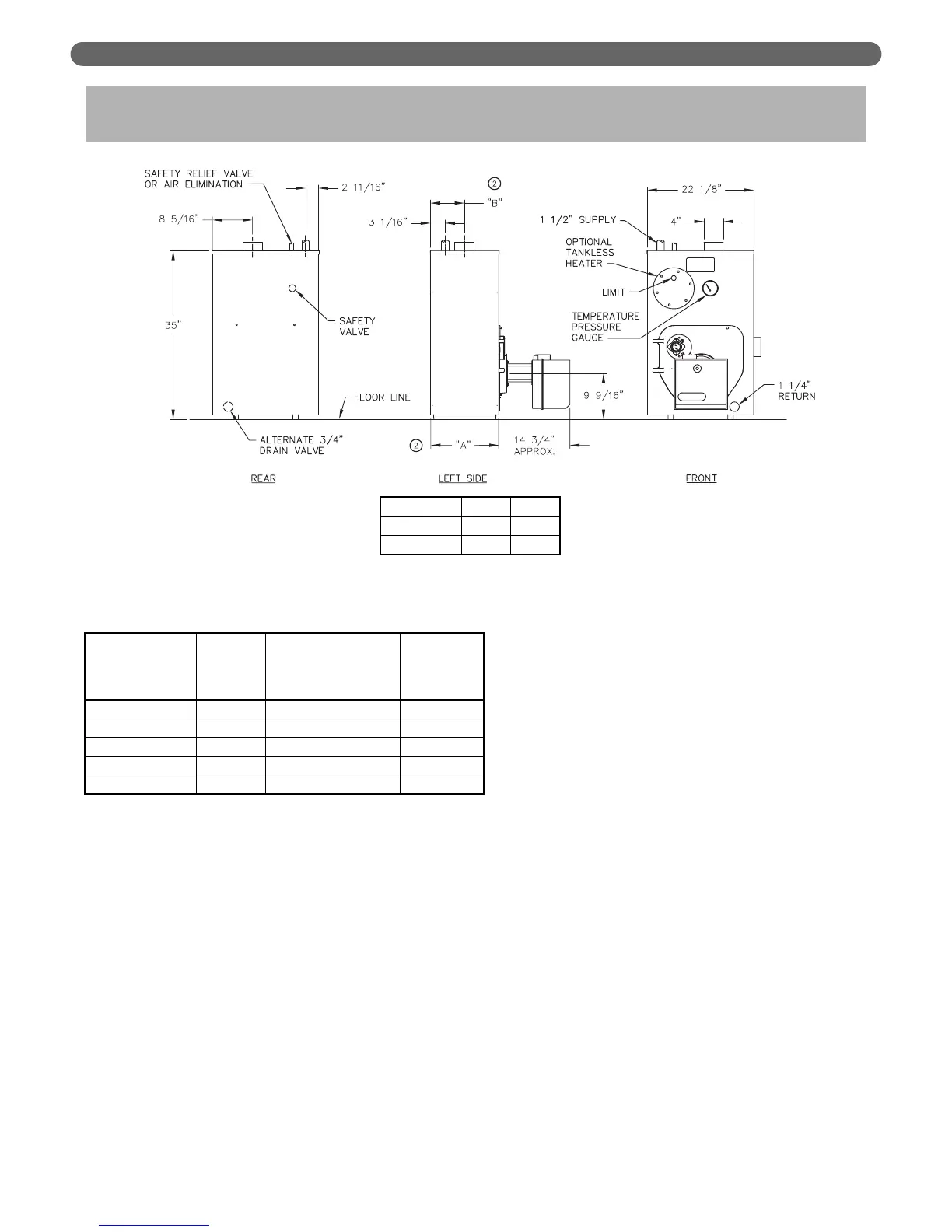
BOILER DIMENSIONS & RATINGS
8. BOILER DIMENSIONS & RATINGS
Table 8.1: WV-DV Ratings
1. Boiler Model No. may have the following suffix letters:
a. W–Water, b. P–Packaged, c. C–Circulator, d. T–Tankless Coil
2. Heating Capacity ratings are based on U.S. Government standard tests, with
13.0% CO
²
.
3. The water ratings are based on piping pick-up allowance of 1.15. Consult factory
before selecting a boiler for gravity hot water installations and installations
having unusual piping and pick-up requirements, such as intermittent system
operation, extensive piping systems, etc.
4. Firing rate is based on a fuel oil with a heating value of 140,000 BTU per gallon.
Burner input based on maximum altitude of 2,000 ft. – for other altitudes
consult factory.
(1)
Boiler
Model
Number
(2)
Heating
Capacity
BTU/Hr.
(3)
Net I=B=R Ratings
BTU/Hr.
Water
(4)
I=B=R
Firing
Rate G.P.H.
WV-DV-03-075 92,000 80,000 0.75
WV-DV-03-085 103,000 90,000 0.85
WV-DV-03-110 131,000 114,000 1.10
WV-DV-04-115 141,000 122,000 1.15
WV-DV-04-130 158,000 137,000 1.30
Model A B
WV-DV-03
14¹⁄₈" 7¹⁄₁₆"
WV-DV-04
18¹⁄₈" 9¹⁄₁₆"
Figure 8.1: WV-DV Boiler Views

Related product manuals