EasyManua.ls Logo

PEERLESS WV-DV - 6 Electrical; Wiring; Zoned System Wiring

PEERLESS WV-DV
24 pages
Print Icon
To Next Page IconTo Next Page
To Next Page IconTo Next Page
To Previous Page IconTo Previous Page
To Previous Page IconTo Previous Page
Loading...
11
ELECTRICAL
A. WIRING
1. All electrical wiring shall be done in accordance with
the National Electrical Code and Local
Requirements. Single Pole Switches including those
of Safety Controls or Protective Devices shall not be
wired in a grounded line.
B. ZONED SYSTEM WIRING
1. Wire zone circulators as shown in Figures 6.4 and
6.5. Wire zone valves as shown in Figure 6.6.
6. ELECTRICAL
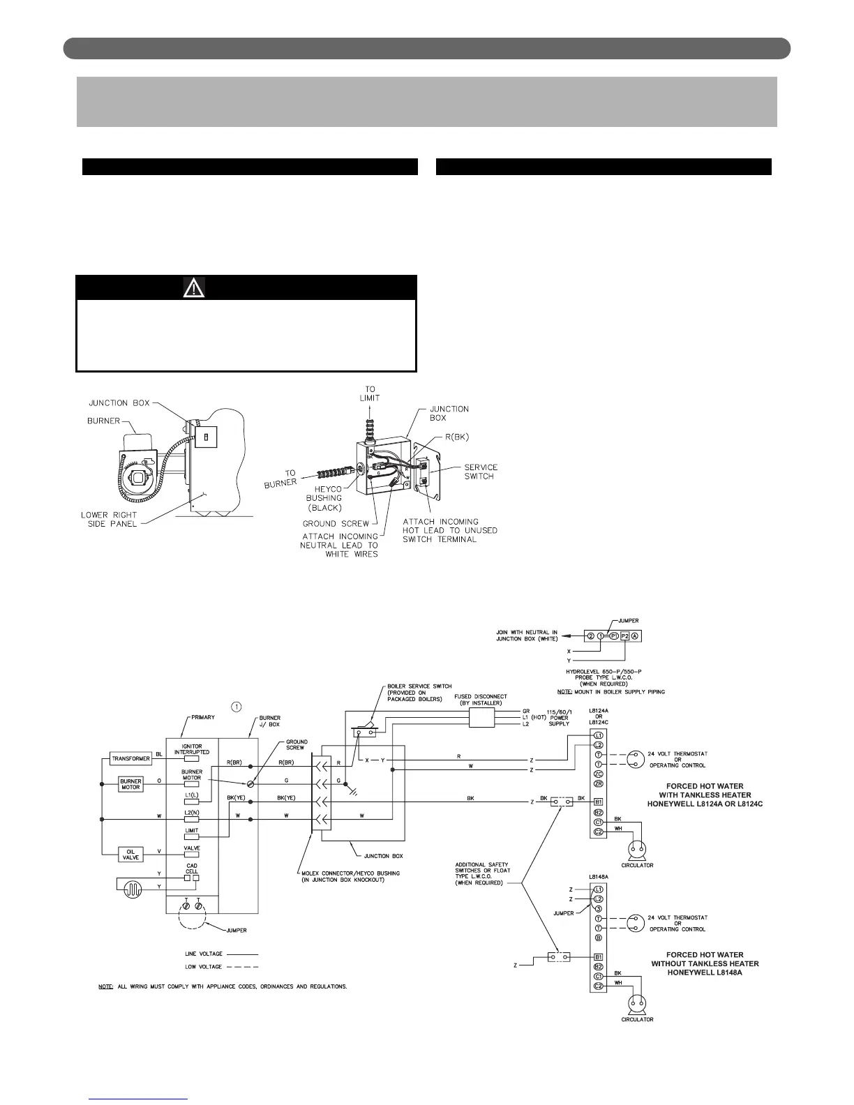
Do not connect power supply to Aquastat. To assure
service switch interrupts power to all boiler controls,
power supply must be connected to junction box as
shown below.
CAUTION
Figure 6.2: Beckett/Carlin Burner
Figure 6.1: Connecting Incoming Power

Related product manuals