EasyManua.ls Logo

Pentair Hydromatic - Page 8

Pentair Hydromatic
12 pages
Print Icon
To Next Page IconTo Next Page
To Next Page IconTo Next Page
To Previous Page IconTo Previous Page
To Previous Page IconTo Previous Page
Loading...
NOTE: Use twisted shielded
cable for seal failure cable runs
in excess of 100 feet.
Pump run light stays on.
1. Lower float may have failed
causing the pump to continue
operating below the Off level.
2. Pump may be air locked.
3. Cutters may be clogged.
cord end – nothing should
happen. While keeping the Off
float tilted, tilt the On float in
the same manner – the pump
should come on. Suspend the
On float again from your hand
– the pump should continue to
run. Finally, suspend the Off
float – the pump should stop
running. If this procedure does
not cause the pump to operate
as described, either replace
the float(s) or replace the
alternator relay if the system
is duplex.
Circuit breaker trips when
pump tries to start.
1. Short circuit in pump motor.
2. Water may have entered the
motor housing through either
worn-out mechanical seals or
O-rings.
3. Start component(s) failure.
Check start capacitor and start
relay for failure.
4. Pump may be miswired to
panel. The white, black, and
red pump power leads must be
connected correctly to panel.
8
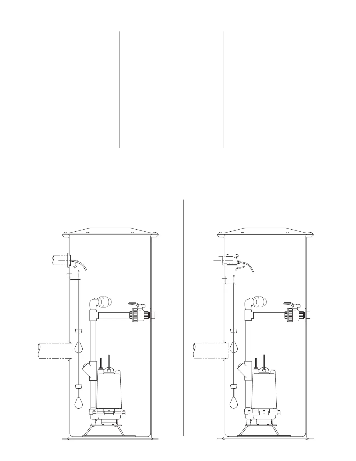
TYPICAL INSTALLATION
WITHOUT A JUNCTION BOX
TYPICAL INSTALLATION
WITH A JUNCTION BOX

Related product manuals