EasyManua.ls Logo

Perfecta 92 UC - Clamp Return

Perfecta 92 UC
32 pages
Print Icon
To Next Page IconTo Next Page
To Next Page IconTo Next Page
To Previous Page IconTo Previous Page
To Previous Page IconTo Previous Page
Loading...
1/01 E Service Instructions 28
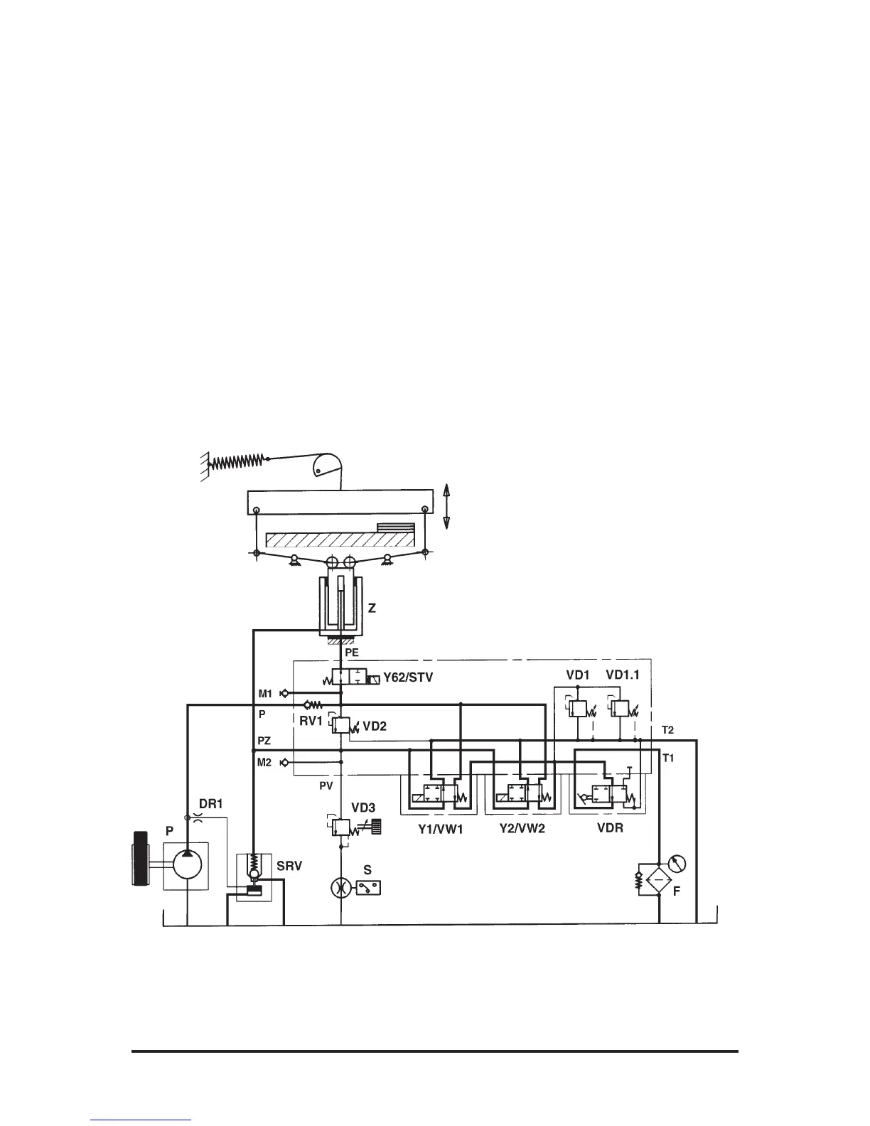
Clamp Return
(Fig.34)
Due to the decompression, VD3
is no longer overflown, the flow
indicator does not detect any
volume flow and opens Y2/VW2,
whereby the flow cross section
for the oil displaced from the
cylinder chambers is increased.
The clamp moves up.
Machine Sizes 115/132 Only:
The pressure decrease in the pump
line opens the SRV suction valve,
and further cross section is made
available for the oil to be dis-
placed from the cylinder cham-
bers.
For the 76 and 92 machines, the
clamp is brought to its topmost
position by a compression spring,
and by tension springs on the 115
and 132 size machines. This
forces the oil out of the cylinder
chambers into the tank.
The last section of the stroke is
damped without any jerks before
the end position in the cylinder is
reached.
The basic position as shown in
Fig. 29 is restored.
Fig. 34
Stroke Limit Function
You can preselect the stroke limit
from the machine's setting menu
(refer to the Operating Instructions
manual).
After a short stroke (the clamp
has lifted off the pile), the oil to be
displaced from the plunger
chamber is blocked through Y62/
STV with the clamp being held at
this position.

Related product manuals