EasyManua.ls Logo

Perry 1TPTE526A - Electrical Connection Procedures

Perry 1TPTE526A
Print Icon
To Next Page IconTo Next Page
To Next Page IconTo Next Page
To Previous Page IconTo Previous Page
To Previous Page IconTo Previous Page
Loading...
25
ENEN
3 - INSTALLATION
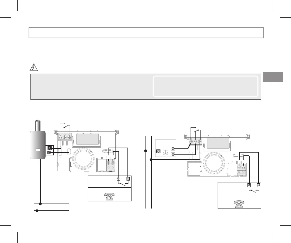
3.4 - ELECTRICAL CONNECTIONS
connect the device that is to be controlled to the terminals:
1 - common
2 -
3 -
normally closed contact
normally open contact
Important: the installation and electrical connection of the devices and appliances must be implemented by qualified personnel and in confor-
mity with current laws and regulations. The manufacturer declines all liability in connection with the use of products subject to special environ-
mental and/or installation standards.
Disconnect the 230V~ mains voltage
a telephone programmer can be connected to terminals
and so as to activate the thermostat from a distance89
(see example in the wiring diagram) and follow telephone
programmer instructions.
Connection to a boiler
Connection to a motorized valve
NO
Telephone programmer
Contact to control
the thermostat
Telephone programmer
Contact to control
the thermostat
NO
NC
230V~
N
L
LOAD
M
opens
closes
2
67
8 9
3
1
L
N
230V~
678 9
3
2 1
230V~
C
C
Examples of electrical connections
BOILER
NC