EasyManua.ls Logo

Philips 160E1SB/93 - PCB Layout; Main Board

Philips 160E1SB/93
85 pages
Print Icon
To Next Page IconTo Next Page
To Next Page IconTo Next Page
To Previous Page IconTo Previous Page
To Previous Page IconTo Previous Page
Loading...
!
26
Meridian 1
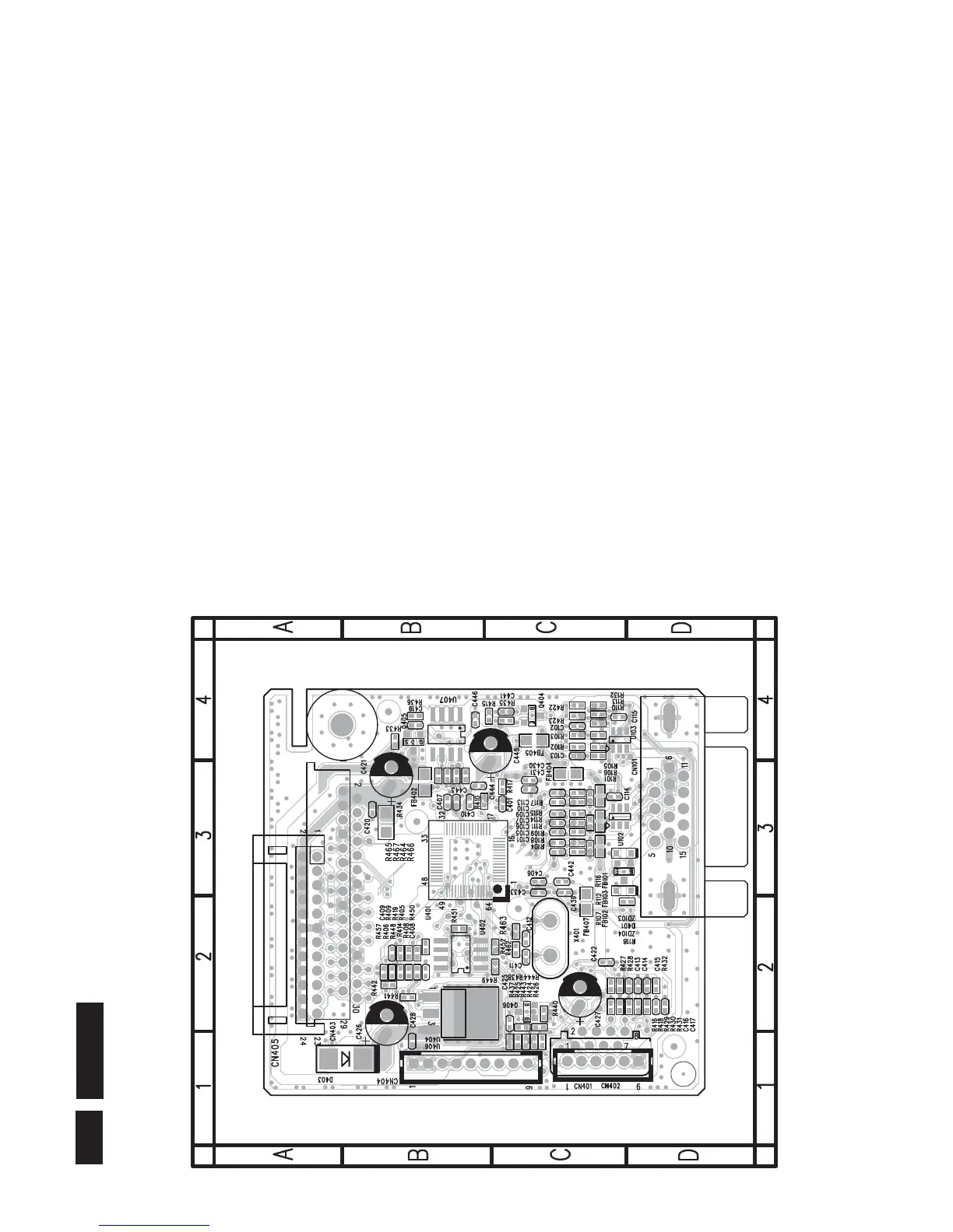
7. PCB Layout
7.1 Main Board
715G3213-F
C101 C3 C422 C2 FB404 C3 R408 B2 R441 B2
C102 C4 C425 C2 FB405 C4 R409 B2 R442 B2
C103 C3 C426 B2 FB407 C2 R410 C3 R443 C1
C105 C3 C427 C2 Q404 C4 R414 B2 R444 C2
C106 C3 C428 B1 Q405 B4 R415 C4 R448 B2
C107 C3 C430 C3 Q406 C2 R416 C2 R449 C2
C109 C3 C431 C3 R101 C3 R417 C3 R450 B2
C110 C3 C433 C2 R102 C4 R418 C2 R451 B2
C113 C3 C439 C2 R103 C4 R419 B2 R452 C2
C114 C3 C441 C4 R104 C3 R422 C4 R457 B2
C115 C4 C442 C3 R105 C4 R423 C4 R462 C2
C401 C3 C443 B3 R106 C4 R424 C1 R463 C2
C406 C3 C444 B3 R107 C3 R425 C1 R464 B3
C407 B3 C445 C4 R108 C3 R426 C1 R465 B3
C408 B2 C446 B4 R109 C3 R427 C2 R466 B3
C409 B2 CN101 D3 R110 C4 R428 C2 R467 B3
C410 B3 CN401 C1 R111 C3 R429 C2 U102 C3
C411 C2 CN402 C1 R112 C3 R430 D2 U103 C4
C412 C2 CN403 B2 R113 C4 R431 D2 U401 B3
C413 C2 CN404 B1 R114 C3 R432 D2 U402 B2
C414 D2 CN405 A2 R115 C3 R433 B4 U404 B2
C415 D2 D401 D3 R116 C3 R434 B3 U406 B2
C416 D2 D403 B1 R117 C3 R435 C4 U407 B4
C417 D2 FB101 C3 R118 C2 R436 B4 X401 C2
C419 B4 FB102 C3 R132 C4 R437 C1 ZD103 C3
C420 B3 FB103 C3 R405 B2 R438 C2 ZD104 C3
C421 B3 FB402 B3 R406 B2 R440 C2

Related product manuals