EasyManua.ls Logo

Philips 32HFL5850D/10 - Page 99

Philips 32HFL5850D/10
123 pages
Print Icon
To Next Page IconTo Next Page
To Next Page IconTo Next Page
To Previous Page IconTo Previous Page
To Previous Page IconTo Previous Page
Loading...
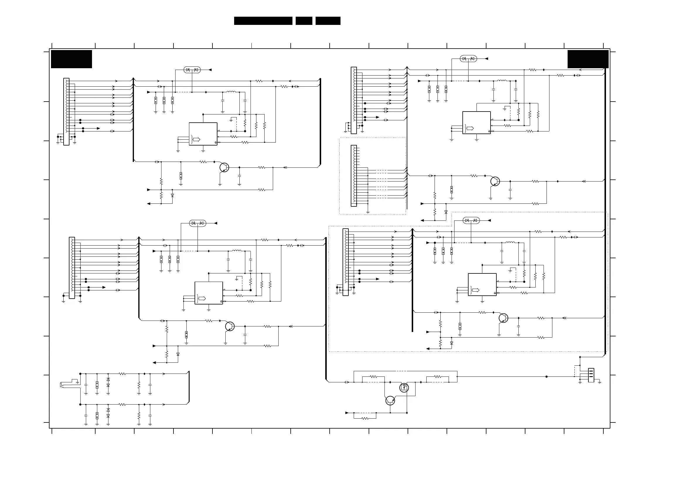
Circuit Diagrams and PWB Layouts
EN 99Q522.2HE LA 10.
2010-Jun-30
SSB: Digi IO: HDMI & DVI
SCL
ADR
0
1
2 SDA
WC
SCL
ADR
0
1
2 SDA
WC
SCL
ADR
0
1
2 SDA
WC
SCL
ADR
0
1
2 SDA
WC
11 12
1
D
E
F
8
5678
1P33 A1
1P34 E8
1P3S F3
1P3T F4
1P3V A3
1P3W C4
I
1P32 A8
1P35 E1
1P36 C8
1P3Q G4
1P3R F3
910
1P4S E10
1P4T E11
1P4U G11
1P4V D11
25673 4 9 101112
I
A
B
C
2P46 A12
2P4C D12
2P4L E12
2P4M E12
G
H
RES
1P3Y A3
RES
RES
123 4
3P3D B6
3P3E B5
3P3F A6
3P3G A6
RES
HDMI CONNECTOR 2
13 14
RES
1P4W A10
1P4Y A10
1P4Z A10
13 14
A
B
C
D
E
F
G
H
3P3V F6
3P3W F5
3P3Y E6
3P3Z E6
RES
RES
FOR IKEA PROJECT
EDID NVM
EDID3
2P4P G12
2P61 I3
1P3Z A3
1P45 H14
1P4R E10
3P4N F12
3P4P F13
3P4Q F13
3P4R G11
ITV PROVISION
RES
HDMI 3
RES
RES
FOR 3X HDMI VERSION
RES
1P6A I1
1P6Y I1
1P6Z I1
2P37 A5
2P38 A5
2P3A C5
2P3K F5
2P3L F5
2P3M G5
2P45 A12
3P6F I10
3P6G I8
5P32 A5
5P3K E5
RESRES
RES
RES
6P30 A4
6P3M E4
6P41 A11
6P4L D11
DIGI IO: HDMI CONNECTORS + DVI AUDIO INPUTS
3P40 B12
3P41 C11
3P43 B13
2P66 I1
2P68 I3
2P69 I1
3P33 C4
3P34 C6
3P35 D3
3P36 D3
3P3A B5
3P3B B6
3P3C B5
7P4Q I9
7P4R I9
9P30 A4
9P31 B5
EDID NVM
HDMI 2
RES
RES
RES
3P4S F12
3P4T G10
3P4U H10
3P4W F12
3P3L G4
3P3M G6
3P3N G3
3P3P H3
3P3S G5
3P3T F6
3P3U F5
9P63-4 C9
9P64-1 D9
9P64-2 D9
9P64-3 D9
RES
5P41 A12
5P4L E12
EDID NVM
RES
EDID1
6P61 I2
6P62 I2
6P63 D3
6P64 H4
3P44 B13
3P45 D10
3P46 B13
3P47 B12
3P48 A13
3P4A C13
3P4B D10
3P4C A13
3P4L E13
3P4M E13
FP3K B5
FP3R F1
FP3S F1
FP3T F1
HDMI SIDE
EDID2
EDID SIDE
9P3K E4
9P3L F5
9P42 A11
3P4Z G13
3P65 I2
3P66 I3
3P67 H2
3P68 I3
3P6A D6
3P6B H6
3P6C D13
3P6D G13
3P6E I8
FP4N F8
FP4P F8
FP4Q F8
FP4S F8
RES
RES
HDMI 1
FP4T F8
FP61 H1
HDMI CONNECTOR 3
HDMI CONNECTOR SIDE
EDID NVM
RES
6P65 D10
6P66 H11
7P30 G5
7P31 B4
7P32 C5
7P36 F4
7P38 F11
7P41 D12
7P44 B11
7P4P G12
IP3K E11
IP3L B5
IP3M G5
IP3N E6
HDMI CONNECTOR 1
IP3P E7
IP3Q G5
IP3T F5
IP42 C13
IP49 A12
IP4B C12
FP3U F1
FP3V F1
FP3W F1
9P43 B12
9P4J I10
9P4K H9
9P4L F12
9P4M I9
9P4N E11
9P4P I8
9P63-1 D9
9P63-2 C9
9P63-3 C9
IP5R F4
IP5Z I9
IP67 H3
IP4C A14
IP4D A13
IP4H C11
IP4Y I10
FP62 I1
FP63 H13
FP64 H14
FP65 B12
IP32 I3
IP33 F11
IP3A C5
IP3B A4
IP3D E4
RES
9P64-4 D9
9P65 H14
FP0V F5
FP30 B1
FP31 B1
FP32 B1
FP33 B1
FP34 B1
FP35 B1
IP4L E13
IP4M F12
IP4P G12
IP4Q E14
IP4U I9
RES
RES
RES
RES
IP3E A6
IP3F A7
IP3G C5
IP3H A11
IP3J B4
FP41 F12
FP42 G12
FP46 B9
FP47 B8
FP48 B8
FP49 B9
FP4A B9
FP4C B8
FP4L F8
FP4M E10
IP5K B12
2P61
100p
RES
RES
3P68
100K
3
4
5
6
7
8
9
2122
12
13
14
15
16
17
18
19
2
20
1759392-1
1P36
1
10
11
7P4R
BC847BW
3P6G
180K
3P6F 100R
7
9P63-3
36
9P63-2
2
45
9P63-4
IP4Y
IP42
FP64
6P66
BAT54
BAT54
BAT54
6P65
6P64 BAT54
6P63
2
1
3
MSJ-035-29D PPO (PHT)
1P6A
3P6D
10K
10K
3P6C
10K
3P6B
IP3H
IP3K
IP3D
FP62
1P6Y
1n0
2P66
9P64-1
18
100n
2P4L
22R
3P4M
3P4L
22R
3P4N
10K
1P3Q
IP4M
IP33
DIN-5V
DIN-5V
DIN-5V
AIN-5V
BM03B-SRSS-TBT
1
2
3
45
9P43
1P45
9P4L
FP42
9P3L
2P4P
10n
+5V
9P3K
6P3M
BAT54C
FP4T
+5V
FP4L
1K0
3P4T
6P41
BAT54C
FP4M
FP4N
IP5Z
1P4T
1P4S
1P3T
7
7P38
1
2
3
6
5
84
M24C02-WDW6
(256x8)
Φ
EEPROM
IP3T
+3V3-STANDBY
AIN-5V
+5V-CON
4K7
3P36
3P45
4K7
+5V-CON
30R
5P32
10n
2P3M
7P30
BC847BW
FP3T
FP3R
FP3S
3P3N
1K0
2P3K
100n
3P3Z
22R
3P3Y
22R
22R
5
84
7
3P3S
M24C02-WDW6
EEPROM
Φ
(256x8)
7P36
1
2
3
6
IP3L
3P33
22R
1P3W
FP35
CIN-5V
IP4D
CIN-5V
CIN-5V
FP63
1
2
3
6
5
84
7
M24C02-WDW6
(256x8)
Φ
EEPROM
7P31
FP4C
IP49
FP65
100R3P6E
9P4P
BSH111
7P4Q
3
1
2
9P65
FP4S
IP4C
10K
3P4A
IP4B
3P6A
10K
3P41
22R
3P4B
1K0
3P34
IP3A
10K
IP3B
1P4Y
0001-0015
0001-0015
1P4Z
0001-0015
1P4W
3P67
1K0
IP67
FP61
IP32
2P46
100n
100n
2P45
5P41
30R
6P62
PESD5V0S1BA
1P6Z
2P69
1n0
3P4C
22R
3P48
22R
10K
3P47
47K
3P46
100p
2P68
RES
3P66
RES
100K
1K0
3P65
3P3G
PESD5V0S1BA
6P61
22R
22R
3P3F
3P3E
10K
47K
27
3P3D
9P64-3
36
9P64-2
9P64-4
45
9P63-1
18
10n
2P4C
1P4V
1P4U
7P32
BC847BW
FP3K
FP32
FP33
4K7
3P4U
+5V-CON
30R
FP4P
5P4L
FP46
23
2425
26
3
4
5
6
7
8
9
2021
22
10
11
12
13
14
15
16
17
18
19
2
DC1R019WBER220
1P32
1
IP4P
IP4L
IP4Q
1P4R
2P4M
100n
FP34
BIN-5V
IP3J
47K
3P4W
22R
3P4P
47K
3P4Q
3P4S
22R
BIN-5V
BIN-5V
9P4K
9P4J9P4M
IP4U
6P30
BAT54C
BAT54C
6P4L
+5V
9P4N
3P3P
5P3K
30R
4K7
FP3V
IP5R
IP3Q
IP3N
IP3P
AIN-5V
10K
3P3M
IP5K
IP3M
22R
3P3L
FP3W
FP3U
FP0V
2223
+5V-CON
19
2
3
4
5
6
7
8
9
2021
10
11
12
13
14
15
16
17
18
10029449-002
1P35
1
+5V
1P3S
100n
2P3L
1P3R
26
5
6
7
8
9
2021
2223
2425
12
13
14
15
16
17
18
19
2
3
4
DC1R019WBER220
1P33
1
10
11
10K
3P3W
3P3V
47K
22R
3P3U
3P3T
47K
9P42
7P4P
BC847BW
22R
3P4R
FP4Q
7P41
FP41
BC847BW
2P3A
10n
1P3V
1P3Y
1P3Z
FP31
9P31
9P30
25
26
5
6
7
8
9
2021
2223
24
12
13
14
15
16
17
18
19
2
3
4
DC1R019WBER220
1P34
1
10
11
2P38
100n
100n
2P37
3P3C
22R
47K
3P3B
3P3A
22R
FP4A
FP49
FP47
FP48
IP4H
IP3F
IP3G
IP3E
47K
3P44
3P43
22R
1
2
3
6
5
84
7
(256x8)
Φ
EEPROM
7P44
M24C02-WDW6
3P40
22R
FP30
10K
3P4Z
1K0
3P35
BRX0-
BRX0+
BRX1-
BRX1+
BRX2-
BRX2+
AUDIO-IN4-L
AUDIO-IN4-R
BRXC-
BRXC+
PCEC-HDMI
PDRX-DDC-SCL
PDRX-DDC-SDA
HOT-PLUG
DRX2+
DRX2-
DRXC-
DRX-DDC-SCL
DRX-DDC-SDA
DRX-HOTPLUG
DRXC+
DRX0-
DRX0+
DRX1-
DRX1+
HOT-PLUG
PCEC-HDMI
CEC-HDMI
DRX-DDC-SCL
DRX-DDC-SDA
DRX-HOTPLUG
ARXC-
PCEC-HDMI
ARX-DDC-SCL
ARX-DDC-SDA
ARX-HOTPLUG
ARX2-
ARX1+
ARX1-
ARX0+
ARX0-
ARX-HOTPLUG
HOT-PLUG
ARX-DDC-SDA
ARX-DDC-SCL PARX-DDC-SCL
PARX-DDC-SDA
ARX2+
ARXC+
CRX1-
CRX0+
CRX0-
CRX-HOTPLUG
HOT-PLUG
CRX2+
CRXC+
CRXC-
PCEC-HDMI
CRX-DDC-SCL
CRX-DDC-SDA
CRX-HOTPLUG
CRX2-
CRX1+
PBRX-DDC-SCL
PBRX-DDC-SDA
CRX-DDC-SDA
CRX-DDC-
SCL PCRX-DDC-SCL
PCRX-DDC-SDA
BRX2+
BRX2-
BRX1+
BRX1-
BRX0+
BRX0-
BRXC+
BRXC-
PCEC-HDMI
BRX-DDC-SCL
BRX-DDC-SDA
BRX-DDC-SCL
BRX-DDC-SDA
BRX-HOTPLUG
BRX-HOTPLUG
B08B B08B
I_18010_038.eps
020608
3139 123 6417.2