EasyManua.ls Logo

Philips 32PFL3406D/78 - Page 82

Philips 32PFL3406D/78
108 pages
Print Icon
To Next Page IconTo Next Page
To Next Page IconTo Next Page
To Previous Page IconTo Previous Page
To Previous Page IconTo Previous Page
Loading...
EN 82L11M1.1L LA 10.
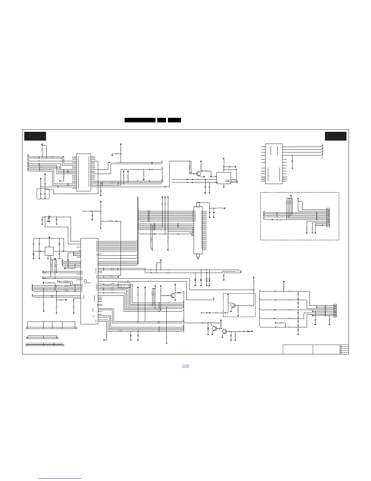
Circuit Diagrams and PWB Layouts
2011-Jun-24
back to
div. table
Controller
19131_007_110615.eps
110615
Controller
B04C B04C
2011-04-18
1
3139 123 6523
PCB SB SSB
BERLINALE BRZ DIG
SUB
ER
GND
VOUT
VDD
GPIO GPIO
23
24
25
26
27
28
29
30
31
32
33
34
35
36
37
38
39
40
41
42
43
44
18
19
20
21
22
0
1
2
3
4
5
6
7
8
9
10
11
12
13
14
15
16
17
PDD
USB
ADIN_SRV
OSDA
OSCL
TUNER
OPCTRL
OPWM
U0
RX
TX
U1
POCE
HDMI
AGC
DEMOD
CLK
DATA
BYPASS
BYPASS0
ADCINP
ADCINN
IF
RF
3
4
5
6
7
0
1
PARB
PAALE
PACLE
POWE
POOE
RX
TX
PWR5V
SCL2
0
1
2
OIRI
0
1
2
3
4
OPWRSB
CEC
SDA1
SCL1
SDA2
0
1
2
ORESET
FSRC_WR
MEMTN
MEMTP
TP_VPLL
JTCK
JTDO
JTRST
JTDI
JTMS
0
1
2
0
1
2
0
1
2
3
4
5
DP
DM
VRT
XTALI
XTALO
VCXO
CLE
7
6
5
4
3
2
1
0
VCC
R
SE
WP
WE
RE
CE_
ALE
NC
IO
B
VSS
ETRXETTX
CICI
D0
D1
D2
D3
ER
EN
CLK
ETMDC
ETMDIO
MCLKO
MDO0
MOVAL
MOSTRT MISTRT
D0
D1
D2
D3
DV
ER
CLK
ETPHYCLK
ETCOL
ETCRS
MCLKI
MDI0
MIVAL
SCL
ADR
0
1
2SDA
WC
ONLY
FOR DEBUGGING
1
0
AOBCK
XTAL 54 MHz
OPCTRL3(0)
0
0
RES FOR ITV
UART (SERVICE)
RES
TRAP2
SDM
AOSDATA0
TRAP1
PDWNC Normal
0
ICE mode +ROM mode
PWM DIMMING
OPWM1
AOLRCKTRAP0
PANEL
ASPDIF
0
ICE mode + Serial Boot
0
0
1
3749 33R
374833R
I754
F754
RES
1n0
2725 2724
1n0
F721
+3V3STBY
220n
2721
15K
I700
3767
F740
100R
3705
3764
1K0
F736
F708
F745
F753
F758
F755
1
3
2
5
4
BD45292G
7701
Φ
3769
100K
RES
2711
100n
3768
4K7
1K0
3746
F768
2720
47n
F757
F756
100R
3792
10K
37AB
RES
1n0
2723
+3V3_SW
6706
BAS316
F763
I701
F767
10R
3795
F739
3710
4K7
1700
54M
+3V3_SW
4K73783
F701
3711
4K7
+3V3_SW
+3V3_SW
F769
F738
4K7
3719
I725
F707
3718 4K7
6700
F719
BZX384-C6V8
BC847BW
7710
I744
3788
100R
RES
100K
3790
2716
10p
10p
2717
F706
4K7
3736
10K
3757
RES
DEB
10K3763-1
F770
2722
1n0
1
2
3
4
5
6
7
8
2041145-8
1M20
+3V3STBY
F705
F704
+3V3_SW
10K
3701
1706
DEB
10K
3780
10K
RES
37A7
RES
4707
2
6
1
10K3758
7709-1
BC847BS(COL)
3706
4K7
100R
3709
+3V3_SW
3742
I732
680R
RES
3775 4K7
BZX384-C3V3
6708
F716
RES
3781
10K
3759
100R
4K7
3702
DEB
10K
DEB
3763-2
DEB
10K3763-3
10K
3791
100R
3763-4
DEB
100n
2728
100n
2727
3762
I760
1K0
DEB
100n
2712
100n
2713
100R3751
100R
3734
3735 3744
100R
100R
30R
5700
RES
10K
3782
DEB
10K
3760
1705
100R3796
+3V3_SW
100R3787
F747
10K
I713
37A6
RES
I746
4708
RES
I753
3707
4K7
1R0
3724
100R3738
3737100R
10K
+3V3_SW
3703
3765
33R
DEB
3745
4K7
3776
4K7
100R
RES
100R
3793
3794
I759
3733 10K
10K
3731
BZX384-C8V2
+12VS
RES
6709
3770
1K0
3771
1K0
10p
2704
10p
2703
4K7
3774
7
8
9
12
13
+3V3_SW
RES
1
10
11
2
3
4
5
6
DEB
1702
502382-1170
I714
I715
I747
I749
3712
33R
10K3715
+3V3_SW
3784
+3V3_SW
10K
I735
5K1 1%
3789
2
1
3
MSJ-035-29D PPO
1701
F746
100R3727
I761
3747
4K7
+3V3_SW
5706
30R
+3V3STBY
7705
1K0
3743
BC847BW
RES
3777 4K7
I737
F725
F742
F741
100R3728
3778 10K
I750
3779
4K7
RES
I716
I708
I743
I742
3713
+3V3_SW
10K
BC847BW
7703
F702
+3V3_SW
100n
2701RES
3756
4K7
I739
I733
2K2
+3V3STBY
37A8
3798
6K8
+3V3STBY
RES
13
36
18
19
4
5
10
11
14
15
8
7
6
12
37
34
35
38
39
40
45
46
47
48
3
21
22
23
24
25
26
27
28
33
2
29
30
31
32
41
42
43
44
1
20
7708
H27U1G8F2B
17
9
16
4K7
1u0
37AA
2706
F765
AN10
T37
AJ36
AJ34
AM15
M33
M19
AP37
N36
N34
AT21
AP21
R36
T35
AR10
AU10
AU6
AP7
AT7
AR8
AU8
AT1
AN6
AU2
AT3
AL16
P31
AP1
R32
P33
AR4
AU4
AT5
AR2
AP5
AR6
AM19
AN20
AR20
AU20
J34
J36
T33
AL20
AL22
AP3
R34
AL14
M31
AK3
AJ2
AH5
AJ4
AK1
K5
K7
AN22
AM21
AM35
AL34
AM37
AL36
AM31
L30
AN14
AM17
AL12
AN18
CONTROL
7700-1
MT5363BIMG
AH35
AH37
AL32
AK33
AG6
AH3
AH1
G30
E30
H29
F29
B29
F23
D23
A22
C22
AF5
AG2
AE6
C30
AF7
AG4
J26
F25
H25
B25
D25
C24
G24
A30
E24
J24
B23
G28
H27
F27
B27
D27
G26
J32
E26
A26
C26
K35
K37
D29
C28
E28
J28
+3V3STBY
7700-4
MT5363BIMG
GPIO
5705
220R
+3V3STBY
F771
F737
+3V3_SW
3717 22R
3716
I756
22R
F766
+3V3_SW
I741
I755
+3V3_SW
1K0
4K7
3741
3754
3740
RES
10K
RES
2700 100n
10K
RES 2705
3785
F761
10n
F760
7709-2
5
3
4
+5V_SW
BC847BS(COL)
2726
100n
3761
A32
C32
E32
B31
D31
E34
10K
E36
D37
F31
B33
A36
B35
A34
C34
B37
D35
D33
F35F33
H35H37
H33
G34
F37
G36
G32
C36
7700-6
MT5363BIMG
MAC-CI
10p
2729
RES
F724
3786
10K
+3V3_SW
4700
4K7
RES
3726
2709
4u7
RES
2710
+3V3_SW
4u7
2702 100n
3753
4K7
I745
3720
RES
4K73721
RES
4K7
F749
F748
F750
I734
I738
F717
F718
6701
BZX384-C6V8
I731
I711
I727
I726
37A5
4K7
3730
10K
3714 10K
2719
47n
+3V3STBY
I757
37A9
F759
RES
10K
4
7
1
2
3
6
5
8
(8Kx8)
Φ
EEPROM
7702
M24C64-WDW6
6707
BAS316
+5V_SW
10K
3700
3704 100R
1R0
3739
+3V3_SW+3V3_SW
10K3722
3723 10K
+3V3STBY
+3V3_SW
F751
3729
+3V3STBY
SDA-DISP
SCL-DISP
10K
BYPASS_MODE
VCOM_SW
SCL-MAIN
SDA-MAIN
SCL-LCD
POWER_DOWN
LIGHT-SENSOR
SDA-LCD
KEYBOARD
VIP_ATV
IF_AGC
RF_AGC
RC
LIGHT-SENSOR
LED-2
LED-1
JTDO
JTRST
JTDI
JTMS
JTCK
LED-2
POWER-OK
LED-1
KEYBOARD
SW_MUTE
STANDBY
POWER_DOWN
MUTE
NAND_PDD(0)
NAND_PDD(1)
NAND_PDD(2)
NAND_PDD(3)
NAND_PDD(4)
NAND_PDD(5)
NAND_PDD(6)
NAND_PDD(7)
NAND_POWE
NAND_POCE
NAND_PARB
NAND_POOE
DC_PROT
USB_DM
USB_DP
TSO_CLK
TSO_DATA0
TSO_SYNC
TSO_VALID
JTDO
JTMS
JTDI
JTCK
JTRST
RF_AGC_SW
VIN_ATV
RESET_AUDIO
CEC
NAND_PALE
NAND_PCLE
TUNER_SCL
TUNER_SDA
R|L
U|D
ARC_SW
SELLVDS
FRAME
RESET_DEMOD
USB_PWR_EN
USB_OCP
ORESET
LAMP-ON
BOOST_CONTROL
BACKLIGHT_CONTROL
BACKLIGHT-PWM
BACKLIGHT-BOOST
SYS_EEPROM_WE
RC
NAND_PCLE
NAND_PALE
NAND_POWE
NAND_POCE
NAND_PARB
NAND_PDD(0)
NAND_PDD(1)
NAND_PDD(2)
NAND_PDD(3)
NAND_PDD(4)
NAND_PDD(5)
NAND_PDD(6)
NAND_PDD(7)
NAND_POOE
LCD-PWR-ONn
SDA-MAIN
SCL-MAIN

Table of Contents

Related product manuals