EasyManua.ls Logo

Philips CDR785/00 - Track Editing; Module Specific Tests

Philips CDR785/00
67 pages
Print Icon
To Next Page IconTo Next Page
To Next Page IconTo Next Page
To Previous Page IconTo Previous Page
To Previous Page IconTo Previous Page
Loading...
6-1 6-1
1
12
1301 1302
1 16
1303
1 23
1305
111
1304
18
1307
16
1306
15
DIGITAL-IN SELECTOR
7302
HEF4052B
LOGIC
+5VD
CDR785, 220300
VSS
VEE
DIG_SW_2DIG_SW_1
EBU_OUT_CD
OPT _IN
10
8
7
4, 11
2, 15
5, 14
1, 12
4, 11
2, 15
5, 14
1, 12
9
RECORDING SELECTOR
7320
7323
LM833D
7301C
74LVU04D
HEF4052B
LOGIC
+5VS
+IC
V_AMP1+
-8V
ANA_SW_0ANA_SW_1
LINE_IN
CD
10
7
3, 13
16
86
9
VSS
VEE VDD
1312B
DIG IN
6304
OPT. IN
1311B
DIG_IN
CDTXTDQSY
CDDATA
CD_SICL
CDShSTR
CDShCLK
CDSwinfo
CDTXTin
CD_PORE
CDSILD
CDTXTCLK
CDTXTDQSY
CDDATA
CD_SICL
CDShSTR
CDShCLK
CDSwinfo
CDTXTin
KILL_L
EBU_OUT_CD
KILL_R
CD_PORE
CDSILD
CDTXTCLK
CD_L
CD_R
SUPPLY_ON
+5V EVER
NC
-F +F
-30V+5V
+5V
+12V
+5VST
LOGIC CONTROL LINES
-F +F
-30V
+5V +5VS +5VD +IC +3V3
+5VST
+12V
SUPPLY_ON
DigSw0
DigSw1
DigSw2
AnaSw0
AnaSw1
AnaSw2
MUTE
V_AMP1-
V_AMP+ V_AMP1+ -8V V_AMP- V_AMP1-
7335
7322
LM833D
V_AMP1+
V_AMP1-
Mono/
Stereo
7336
LM833D
V_AMP1+
V_AMP1-
MIC_L
MIC_R
HP_L
HP_R
Analog_REC_R
CD_R/W_Analog_L
EBU_OUT_CDR
SHIELD
SHIELD
EBU_IN_CDR
CD_R/W_Analog_R
Analog_REC_L
-8V
+12V
4, 11
2, 15
5, 14
1, 12
ANALOG SELECTOR
REC BUFFER MICROPHONE AMPLIFIER
7321
HEF4052B
LOGIC
+5VS
MUTE
KILL
KILL_OFF(CDR)
-8V
DigSw0
CD_L, R
CD_RW_L, R
AnaSw2
10
7
9
VSS
VEE
8
13
12
DIGITAL-OUT SELECTOR
7003A
HEF4053BP
LOGIC
+5VD
+5V
DigSw0
11
7
14
15
16
9
VSS
VEE
VDD
8
1
2
LM833D
V_AMP1+
V_AMP1-
MUTE
1311A
1312A
DIGITAL
OUT
7301
74LVU04D
+IC
7301
7324
74LVU04D
+IC
3, 13
16
6
VDD
3, 13
16
6
VDD
EBU_OUT_CDR
EBU_OUT_CD
7322
DigSw2
CD
LINE
CD
DIG
OPT
CDR
CD
CDR
CD
CDR
CD
KILL
1308
21
1309
21
NTC
FAN
7371
FAN CONTROL
+12V
INTERFACE BOARD
ANALOG
OUT
ANALOG
IN
1805
23 1
CON1
CN101
CON2
1
11
7
1
7
1
(Supply) ON/OFF
+5V EVER
-F1
+F1
-38V
+5V
+5V
+5V
GND
GND
GND
GND
+12V
+12V
+12V
-8V
+5V
AUDIO SIGNAL INTERFACE
DIGITAL IN / OUTCONTROL INTERFACE
SUPPLY INTERFACE
+5V
+12V
-8V
-8V
GND
CD - CHANGER MODULE
for details see
separate block diagram
MAINS BOARD
for details see
separate block diagram
CDR MODULE
for details see
separate block diagram
HEADPHONE-
MICROPHONE
BOARD
LEFT
RIGHT
+5V
+10V
+3V
DATA
SICL
SHR_STR
SHR_CL
SW_INFO
SILD
PORE
KILL_L
DQSY
SRDT
EBU_OUT
uP_CLK
KILL_R
1704 1702 1420
1501
171651
1492
1491
18
1690
+12V
-8V
HP_L
HP_R
7680
+12V
-8V
LM833D
7650
3661
3695
+12V
-8V
NJM4556AM
MIC_L
MIC_R
HEAD-
PHONE
MICRO-
PHONE
I2C DATA
I2C CLK
REQKBE
RESET
EBU SIGNAL
OUT
EBU SIGNAL
IN
ANALOG IN (REC) L
ANALOG IN (REC) R
ANALOG OUT (PB) R
ANALOG OUT (PB) L
SHIELD
SHIELD
FRONT BOARD
KEY BOARD
right
KEY BOARD
left
7412
7413
MICROPROCESSOR
TMP88CU77ZF
7415
5VST
RC5
2
KEY MATRIX
JOG CONTROL
RESET
EEPROM
RESET
1402
1
12
1405
1430
1457
LED CON4
JOG A
JOG A
JOG B
JOG B
KEY1
KEY1
KEY2
KEY2
-30V
+F
+5V
-F
1
3
2
33 - 76 51
32
87
88
VDD
VDD-VFT
VDD-CPU
31 VAREF
30VASS
29VSS
VKK
5406
12MHz
89 91
92
+5VST
96
99
5
8
6
LED CON5
LED CON6
LED CON7
LED CON3
LED CON6
LED CON5
LED CON4
CDR AUX YES
LED CON3
LED CON7
+5V
+5V
blue
Rec/Pb indication
red
+5V
1
9
LED CON1
LED CON2
KEY0
ON/OFF
LED CON0
+5V
+5VST
+5V
+5VST
IR EYE
LED CON1
LED CON0
LED CON2
1480
1
9
KEY0
ON/OFF
1
12
1400
CDTXTDQSY
CDDATA
CD_SICL
CDShSTR
CDShCLK
CDSwinfo
CDTXTin
CD_PORE
CDSILD
CDTXTCLK
SUPPLY_ON
f
0
1401
-F +F
NC
-30V+5V
+D
+5VST
DigSw0
DigSw1
DigSw2
AnaSw0
AnaSw1
AnaSw2
MUTE
I2CW_DATA
I2CW_CLK
CWReqKbe
CWReset
NC (SHIELD)
NC (SHIELD)
1403
+yP
+5VST
+yP
+C
CD 3 CD 2 CD 1
STANDBY
ON/OFF
off on
KEY MATRIX
1481
1 16 1 7
1
12
TEXT TOTAL TRACK TIME TOTAL REM
STEP
CD
RW
CD
RW
COMPILE CD TRACK PROG
RECORD IN PROGRESS
SHUFFLE REPEAT ALL EDIT
REC TRACK TIME
123456789
10 11 12 13 14 15 16 17 18 19 20 +
ANALOG
FINALIZE ALC
DIGITAL
OPTICAL
12
12
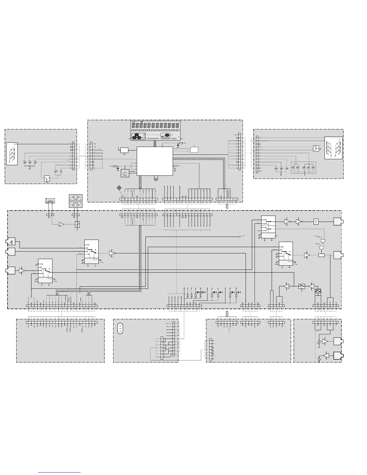
BLOCK DIAGRAM

Table of Contents

Related product manuals