EasyManua.ls Logo

Philips CDR785/00 - Various System Tests

Philips CDR785/00
67 pages
Print Icon
To Next Page IconTo Next Page
To Next Page IconTo Next Page
To Previous Page IconTo Previous Page
To Previous Page IconTo Previous Page
Loading...
6-26-2
CD Text
LC89170M
EXCK
SBSO
SCOR
WFCK
MCK
SRDT
DQSY
SCLK
RCK
SUB
SBSY
SFSY
CL11
7876
DQSY
3
13
SRDT
4
12
µP_CLK
2
11
DATA
SDA
VCC
KILL DOBM
1805
D1-D5
D2-D4
7807
7806
7871
7873
TDA7073A
TDA7073A
TDA7073A
HEF4094BT
TTM +
TTM -
MOT2
LD ON
LD
MON
CD R/W
HF IN
V1
D1
D2
D3
D4
R1,R2
MOT1
SLEDGE -
SLEDGE +
RAD -
RAD +
FOC -
FOC +
+5V
+10V
+10V
SHR_CL
SHR-STR
REGISTER
SHIFT
SERVO - DECODER
CD10
SAA7324 (SAA7325)
D/A
Converter
PCM1716
MOTOR
TRAY MOTOR
CAROUSEL
CD DRIVE UP/DOWN SWITCH
1881
1880
TRAY SWITCH
1882
7874
Level converter
CD POS.1 SWITCH
SL
O7
O6
O5
OO
VDD
+10V
O1
O2
O3
RA
FO
DIODES
PHOTO
D3D2
D5D1
D4
INNER SWITCH
SWITCH INFO
LASER &
MONITOR
DIODE
TURNTABLE
MOTOR
DISC
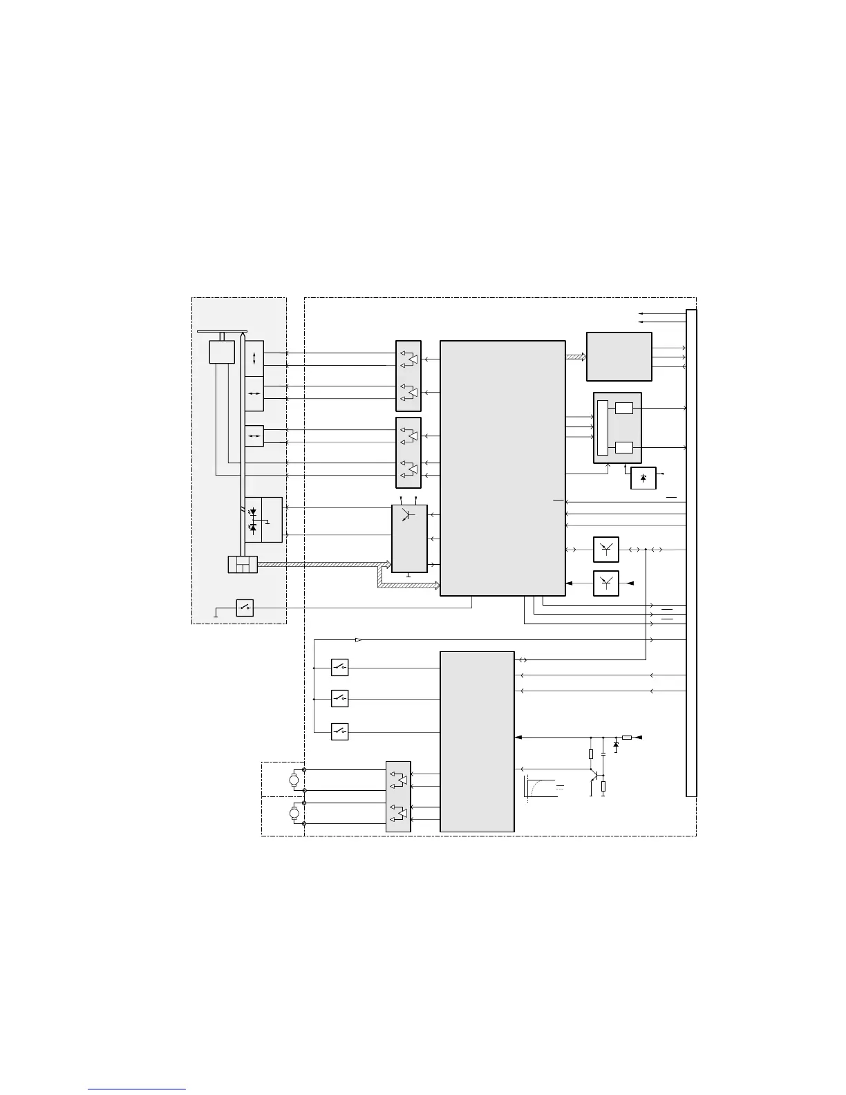
CD MECHANISM
VAM2202/01
FOCUS
MOTOR
RADIAL
MOTOR
SLEDGE
MOTOR
MOTOR
TURNTABLE
PHOTODIODE & HF AMPLIFIER - LOADER CONTROL BOARD
EN1
DATA
STB
SHR_CL
SICL
SILD
PORE
7878
MC78L05ACP
7875
7801
+3,3V
LEFT
7810
7877
RIGHT
Laser Control
&
HF AMPLIFIER
TZA1024 (TZA1025)
55
54
56
38
13
18
20
21
23
2
1
5
3
27
29
26
28
10
12
14
13
SWITCH INFO
17
5
9
7
16
15
16
42
40
39
5,17,21,52,57
59
60
64
1
13
+5V
2
4
5
7
V4
61
2
63 513234
10
11
6,14
11
12
15
2
1
3
16
13
4
5
6
7
5V1
+5V
+3,3V
KILL R
KILL L
EBU OUT
SCL
SILD
SLCK
CL16
DATA
WLCK
PORE
Blockdiagram 3CDC99-DS 2000-03-20
Closed if carrousel is in Position 1.
Closed if the tray is in one endposition.
Open during movement.
SERIAL INTERFACE
D/A
D/A
WCLK
DATA
SCLK
CL16
8,9,15
V
t
VDD (pin 16)
EN1 (pin 15)
Power on
CONNECTED VIA FLEXFOIL 8001 TO SET
BLOCK DIAGRAM
3CDC MODULE

Table of Contents

Related product manuals