EasyManua.ls Logo

Philips L06.1E AA - SSB: HDMI Sound Switching

Philips L06.1E AA
78 pages
Print Icon
To Next Page IconTo Next Page
To Next Page IconTo Next Page
To Previous Page IconTo Previous Page
To Previous Page IconTo Previous Page
Loading...
50L06.1E AA 7.
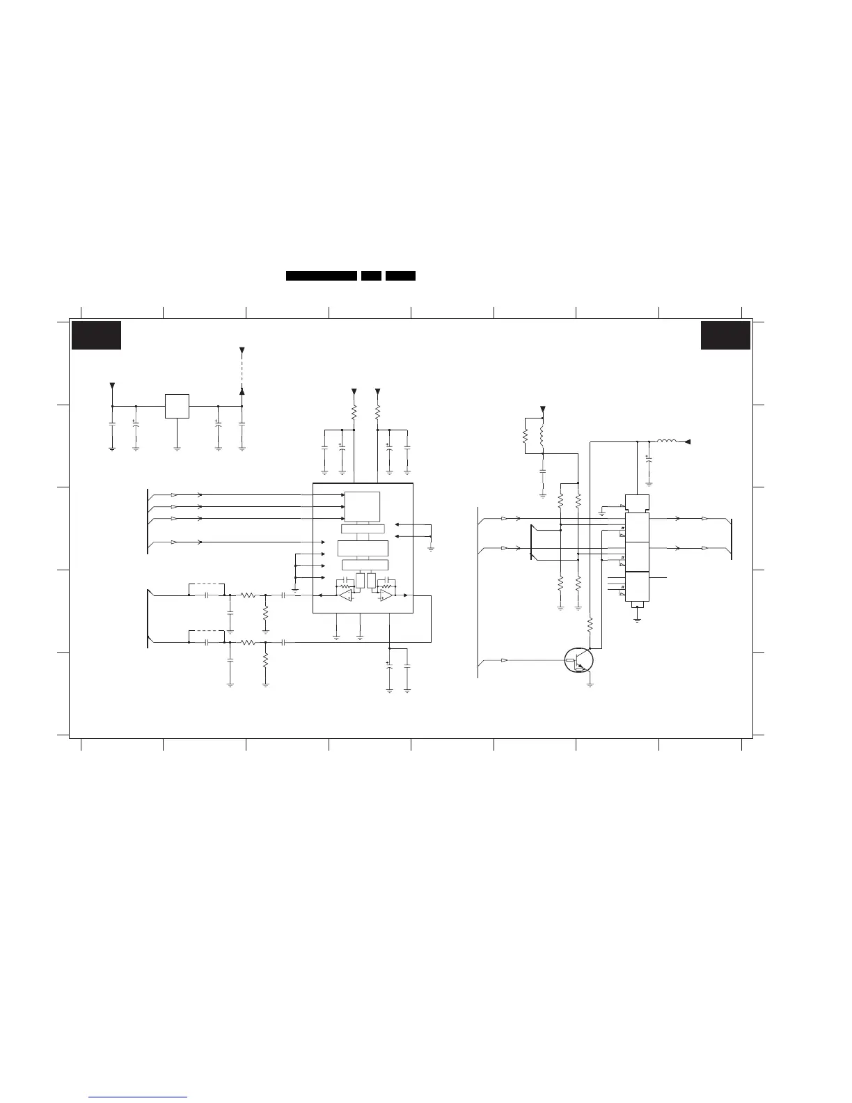
Circuit Diagrams and PWB Layouts
SSB: HDMI Sound Switching
4X1
G4
4X2
1
2
VDD
VEE VSS
DIGITAL
DE-EMPHASIS
INTERPOLATION
DAC
NOISE SHAPER
FILTER
INTERFACE
DAC
COM
OUTIN
B8,B9
HDMI SOUND SWITCHING
678
A
B
C
D
E
A
B
C
D
E
2961 B3
2962 B4
2963 B4
2964 B4
2965 D3
2966 D2
2967 D3
2968 E2
2969 E4
2970 E4
2971 B7
2972 D2
2973 D2
2974 B6
2975 B1
B2
B8,B9
B6,B8
B6,B8
12345678
12345
2976 B1
2977 B2
2978 B2
3961 B4
3962 B4
3963 D3
3964 D3
3965 D3
3966 E3
3967 C6
3968 C6
3969 D6
3970 D6
3971 D7
3972 B6
4972 D2
4973 D2
4978 A2
5961 B8
5972 B6
7961 B3
7962 C7
7963 D6
7975 A2
B6,B8
+8V
3971
4K7
4973
DAC_+3V3
+5V
B12
B6
B12
2972
2u2
13
1
3
12
2
5
14
15
4
6
11
10
9
16
7
8
VREF-DAC
15
VSSA
5
VSSD
2WS
MDX
7962
HEF4053B
PCS
11SFOR0
7SFOR1
6 SYSCLK
13
VDDA
4
VDDD
14 VOL 16VOR
12
1 BCK
3 DATAI
9 DEEM
8 MUTE
10
7961
UDA1334BT/N2
3966
220K
3965
100R
2973
2u2
2967
1u0
DAC_+3V3
3972
100R
5u6
5961
100K
3970
3969
100K
2964
100n
2963
100n
2961
6.3V
6.3V47u
2962
47u
PDTC114ET
7963
100K
3968
3967
100K
2977
16V
16V10u
2976
10u
2978
100n
1
32
2975
10u
7975
LD1117DT33
16V10u
2971
1u0
2965
3962
1R0
DAC_+3V3
1R0
3961
+8V
2974
10u 5u6
5972
4972
220K
3964
100R
3963
10n
29662968
10n
4978
+3V3
2970
100n
2969
6.3V47u
HD_R
HD_L
HDMI_R
HDMI_L
HD_AUDIO_SEL_2
HDMI_R
HDMI_L
SYSCLK
HD_DVI_R
HD_DVI_L
I2SSCK
I2SWS
I2SDI1
B12 B12
G_16350_021.eps
230306
3139 123 6086.3

Related product manuals