EasyManua.ls Logo

Philips MX5100VR - Page 36

Philips MX5100VR
151 pages
Print Icon
To Next Page IconTo Next Page
To Next Page IconTo Next Page
To Previous Page IconTo Previous Page
To Previous Page IconTo Previous Page
Loading...
1-11-11 1-11-12 E9015BLP
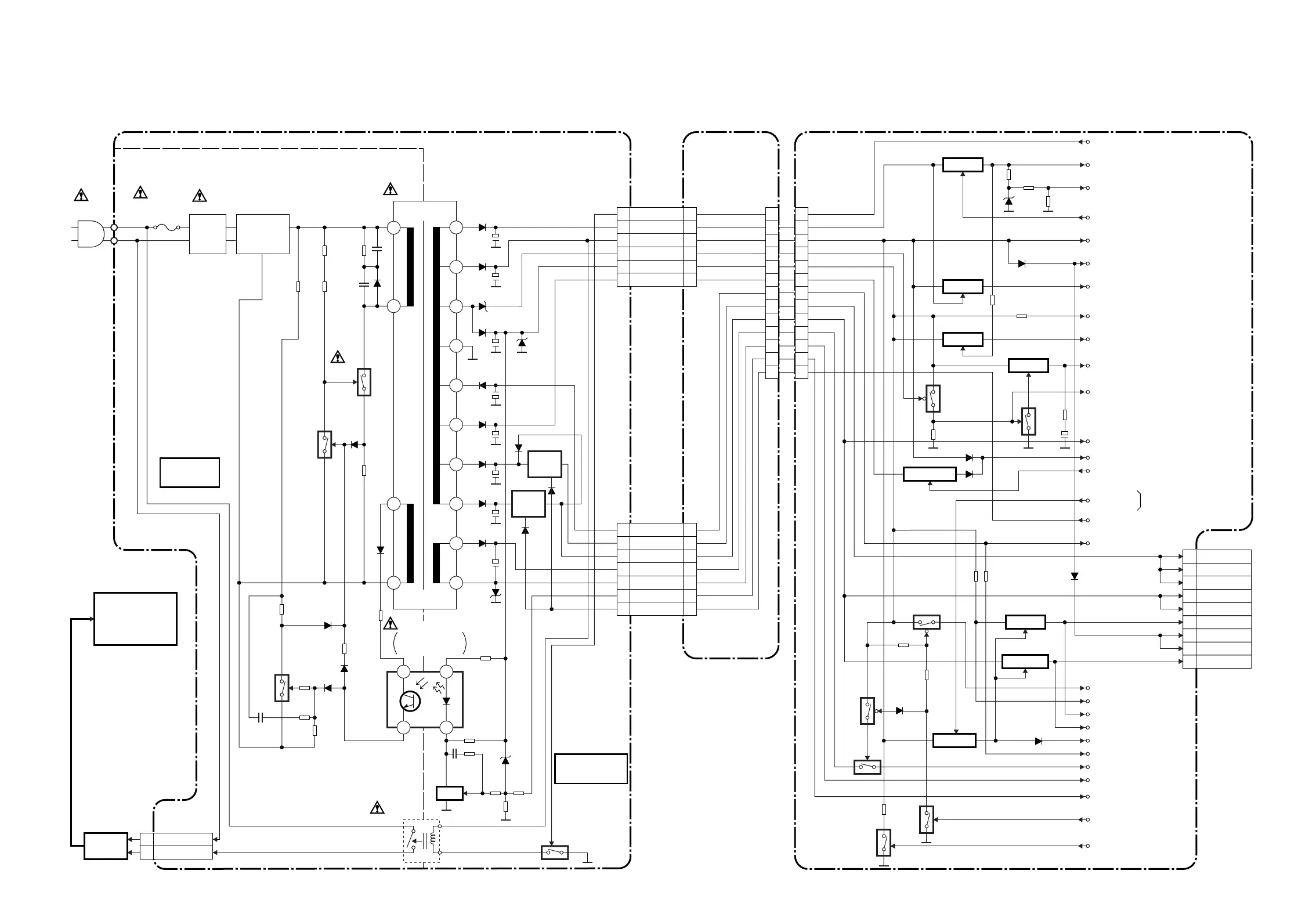
Power Supply ( For VCR/DVD ) Block Diagram
CAUTION
FOR CONTINUED PROTECTION AGAINST FIRE HAZARD,
REPLACE ONLY WITH THE SAME TYPE T1.6A L 250V FUSE.
NOTE :
The voltage for parts in hot circuit is measured using
hot GND as a common terminal.
CAUTION !
Fixed voltage (or Auto voltage selectable ) power supply circuit is used in this unit.
If Main Fuse (F1001) is blown, check to see that all components in the power supply
circuit are not defective before you connect the AC plug to the AC power supply.
Otherwise it may cause some components in the power supply circuit to fail.
AC1001
F1001
T1.6A L 250V
LINE
FILTER
L1003
D1001 - D1004
BRIDGE
RECTIFIER
2
4
Q1001
Q1003
Q1008
7
8
1
23
4
IC1001
ERROR
VOLTAGE DET
T001
MAIN CBA
POWER SUPPLY (For VCR/DVD)CBA
Q1009
(SHUNT
REGULATOR)
REG
HOT CIRCUIT. BE CAREFUL.
20
19
18
17
16
15
14
13
12
11
1 EV+1.5V
2 EV+1.5V
3 EV+1.5V
4 EV+3.3V
5 EV+3.3V
13
DVD-P-ON+5V
14 EV+9V
15 EV+9V
17
DVD-P-ON+3.3V
C-POW-SW
P-ON+5V
P-ON-H
P-DOWN-L
P-ON+44V
AL-30V
AL+12V
AL+12V
TIMER+5V
AL+9V
AL+5V
AL+20.5V/+12V
Q053,Q054
SW+44V
Q1053,
Q1054
SW+12V
Q055
SW+9V
Q056
SW+5V
Q051,
Q052
SW+20.5V
P-ON+15V
F2
F1
DVD P-ON+12V
PWRCON
Q057
CL001 CN001A
CN050
2 AL+44V
2
4 AL+12V
4
6
AL+5V(P-DOWN)
6
7 AL+5V
7
9 AL+20.5V
9
CL002
CL002A
1 AL-30V
3 AL+1.5V
5 AL+3.3V
9 F1
8
1
3
5
9
8F2
<FROM PIN 67 OF IC501>
<TO PIN 86 OF IC501>
<FROM PIN 66 OF IC501>
<FROM PIN 19 OF IC2002>
TO DVD SYSTEM
CONTROL/SERVO BLOCK
<DVD SECTION>
P-OFF-H
<TO PIN 73 OF IC501>
FIL-ON/OFF
LOAD-CONT
<FROM PIN 24 OF IC501>
<FROM PIN 11 OF IC501>
7 P-OFF-H
7
10 PWSW
10
IC1051
+1.5V
REG.
IC1052
+3.3V
REG.
JUNCTION-C
CBA
CN001B
2
4
6
7
9
2
1 1
4
6
7
9
11
13
15
19
18
17
20
11
13
15
19
18
17
20
-FL
DVD P-ON+3.3V
EV+5V
FIP+5V
DVD P-ON+5V
Q1055
Q1058
Q1059
CN1051
SW+5V
Q1052
SW+3.3V
Q058
Q059
SW+5V
HOT
COLD
PWSW
Q1057
Q1056
TUNER POWER
<FROM PIN 62 OF IC501>
Q060
CN1008
Q1002
RL1001
1 AC IN
3 AC IN
POWER
TRANS.
AMP UNIT
1
TUNER POWER
1
EV+3.3V
www.freeservicemanuals.info
10/31/2012
www.nostatech.nl
World of free manuals

Other manuals for Philips MX5100VR

Related product manuals