EasyManua.ls Logo

Piusi CUBE 70 MC - Page 20

Piusi CUBE 70 MC
Print Icon
To Next Page IconTo Next Page
To Next Page IconTo Next Page
To Previous Page IconTo Previous Page
To Previous Page IconTo Previous Page
Loading...
M0104 E
20 /64
Installazione, uso e manutenzione
ATTENZIONE
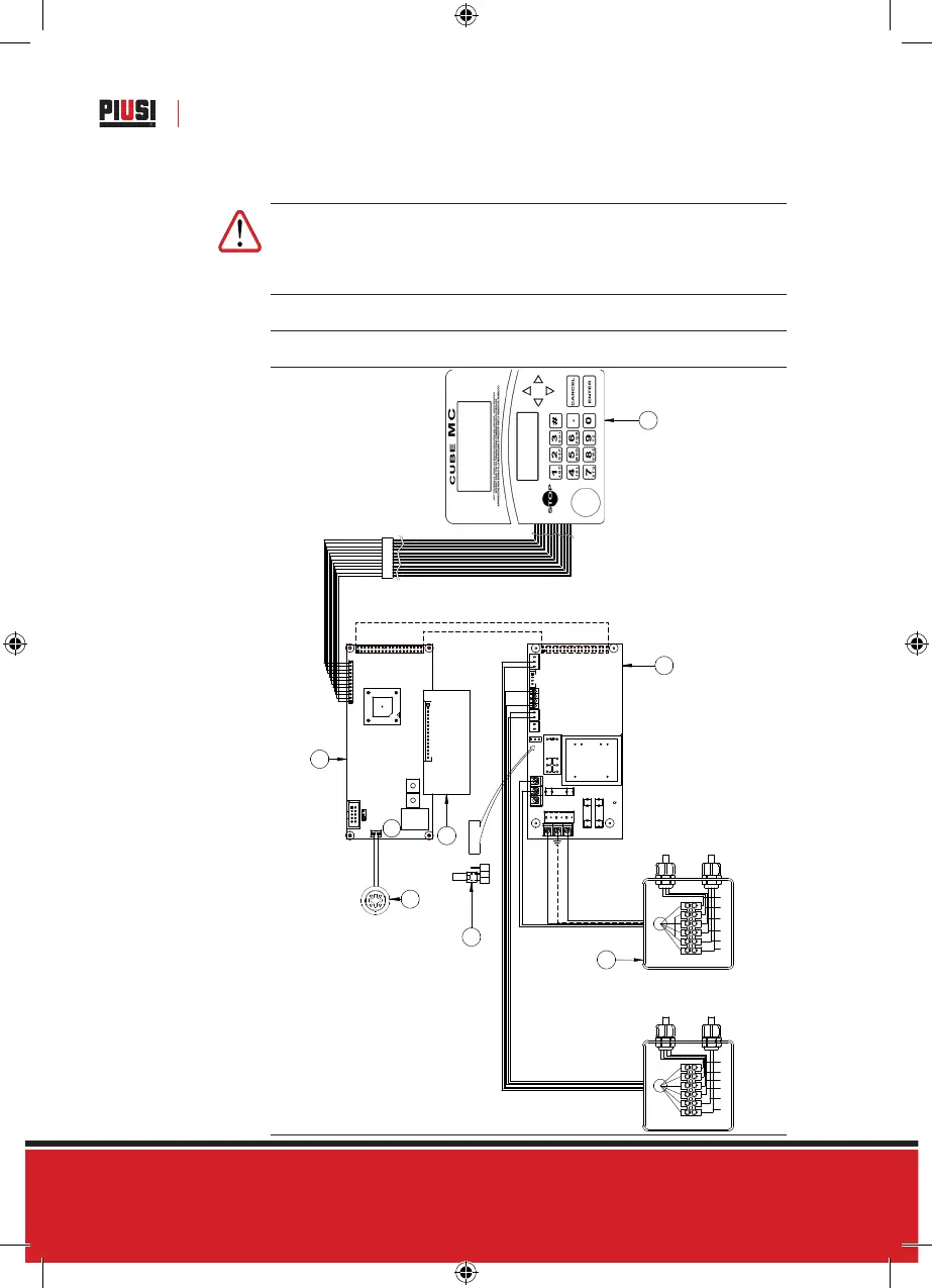
Per la messa in servizio di CUBE MC, nessun ulteriore collegamento elettrico è
necessario. Tutti i componenti elettronici alloggiati nel MC BOX, sono pre-cablati
e testati in fabbrica. NON è pertanto MAI necessaria l’apertura del BOX MC da
parte dell’installatore o del gestore dell’impianto, salvo che per la sostituzione dei
fusibili di protezione alloggiati sulla scheda I/O (vedi foto riportata di seguito).
L’installatore deve prevedere un collegamento presa/spina, per permette-
re un rapido sezionamento dell’impianto elettrico in caso di anomalie.
Di seguito, sono indicate le principali connessioni e i fusibili da sostituire, a
cura solamente di personale di servizio qualificato:
TASTIERA
1
12
Power 230V
To Motor
I / O Card
CPU Card
DISPLAY
Card
KEY Reader
1
2
5
3
4
7
6
OPTIONAL
(RS485 + LEVEL
INDICATOR)
PULSER
K600
JUMPER

 
LEGENDA:
1. Key reader (I-Button)
2. Display card
3. CPU card
4. Tastiera
5. I / O card
6. Jumper
7. Electrical Boxes

Related product manuals