EasyManua.ls Logo

Planer PCT2435 - Controls and Connectors; Power Cord and Source; Signal Cable Connections

Planer PCT2435
28 pages
Print Icon
To Next Page IconTo Next Page
To Next Page IconTo Next Page
To Previous Page IconTo Previous Page
To Previous Page IconTo Previous Page
Loading...
9
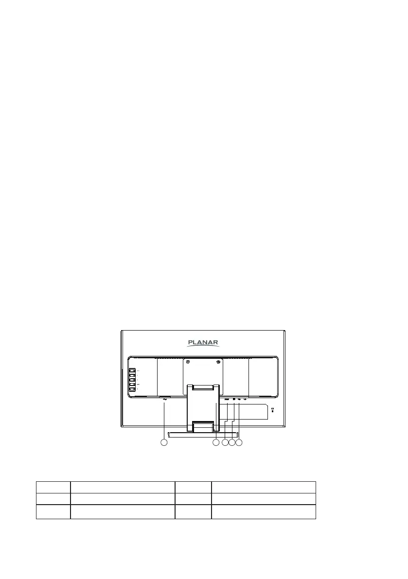
CONTROLS AND CONNECTORS
POWER CORD
Power Source:
1. Make sure that the power cord is the correct type required in your area.
2. This monitor has an internal universal power supply that allows operation in either
100/120V AC or 220/240V AC voltage area (No user adjustment is required.)
3. Connect the AC-power cord into the monitors power input socket, The AC-power cord
may be connected to either a wall power outlet or the power outlet socket on your PC,
depending on the type of power cord supplied with your monitor.
SIGNAL CABLE
Connecting the Signal Cable : Plug one end of the signal cable to the LCD monitor and the
other end to a computer or a video source.
USB Cable – A to B
The USB Cable – A to B – must be connected from the monitor to the computer for the touch
screen to operate.
Connecting the USB Cable: Plug one end of the cable to the monitor – USB Cable (upstream)
slot - and the other end to a USB port on the computer. Refer to page 17 for Calibration and
Reset Instructions.
Caution: If the AC outlet is not grounded (with three holes), install the proper grounding adapter
(not supplied).
1
5
432
Figure 2 Connecting Cables
1. Power Cable 4. Audio cable
2. HDMI Cable 5. USB Cable
3. D-SUB Cable