EasyManua.ls Logo

Plasmatronics PL40 - 7.5.4 BAT2 - Second battery control

Plasmatronics PL40
43 pages
Print Icon
To Next Page IconTo Next Page
To Next Page IconTo Next Page
To Previous Page IconTo Previous Page
To Previous Page IconTo Previous Page
Loading...
Rev 6.3.0 12.09.16PL Reference Manual
26
B- sense input
PL
Catch
Diode
(Must
be
fitted!)
Relay
+
2nd Solar
-
Use LOAD- or "G" terminal to switch relay
(Load terminal shown)
+
Battery 1
(Primary)
-
+
Battery 2
(Secondary)
-
+
1st Solar
(Optional)
-
Solar Panels
NC
NO
(Relay shown in non-energised state)
B+
S-
B-
L-
(eg 1N4007)
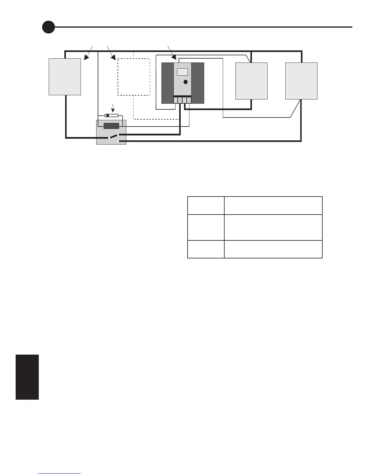
Fig. 7.5.4A - Second Battery Control
7
7.5.4 BAT2 - Second battery control
Second Battery Control uses a relay to switch
the panel negative from the primary battery to
the secondary battery.
On many afternoons, there is power available
from the solar panels but it is wasted because
the batteries are already full by then. This power
could be used to charge a second or reserve
battery bank. The PL has a separate single stage
controller for a 2nd battery built into it. This
only allows the second battery to charge if the
PL has reached the float state and the voltage on
the 2nd battery is below the setting in the BAT2
screen.
Note: Second battery control is not suitable for
use in negative ground systems such as many
vehicles, since it uses the B- sense input and
requires the battery negative terminals to be
separated (i.e not both connected to the chassis)
With the positives of the two batteries joined
together, the PL can read the voltage on the
second battery from the B- sense input. An
external switching device such as a changeover
relay will be required to switch the negative
of the solar panel(s) from the SOL- terminal of
the PL to the negative terminal on the second
battery (see fig 7.5.4A).
You can use either the Load Terminal or ‘G
Terminal for switching the relay (keep in mind that
the ‘G’ terminal max current is only 120mA for the
PL20 and PL40, and 300mA for the
PL60/80). A
‘Catch Diode’ must be fitted across the
relay in either case. The end of the diode with the
band goes towards BAT+.
The following settings will also need to be
configured:
PROG=4 allows changing LSET, GSET,
BSET etc
LSET=6 or
GSET=6
LSET if using load terminal for relay,
GSET if using the ‘G’ Terminal for
relay
BSET=1 ‘B-’ input (green connector) used
for 2nd battery control
The ‘B-’ sense input (green connector under
cover) is wired to the negative terminal of the
secondary battery and allows voltage monitoring
of the secondary battery voltage. This allows the
regulator to perform basic single stage regulation
of the secondary battery by switching the relay on
or off to connect/disconnect the charge source.
You do NOT need a second regulator.
The relay you use will need to meet the following
minimum specifications:
Change over type relay
Correct coil voltage to match your system, ie.
able to handle the maximum battery voltage.
Output contacts rated for DC current.
Output contacts rated to handle the
maximum current that the connected panels
can output.
Note: It is suggested that customers leave some
panels permanently connected to the regulator

Related product manuals