EasyManua.ls Logo

Polytropic PAC 16 - Page 85

Polytropic PAC 16
Print Icon
To Next Page IconTo Next Page
To Next Page IconTo Next Page
To Previous Page IconTo Previous Page
To Previous Page IconTo Previous Page
Loading...
- 85 -
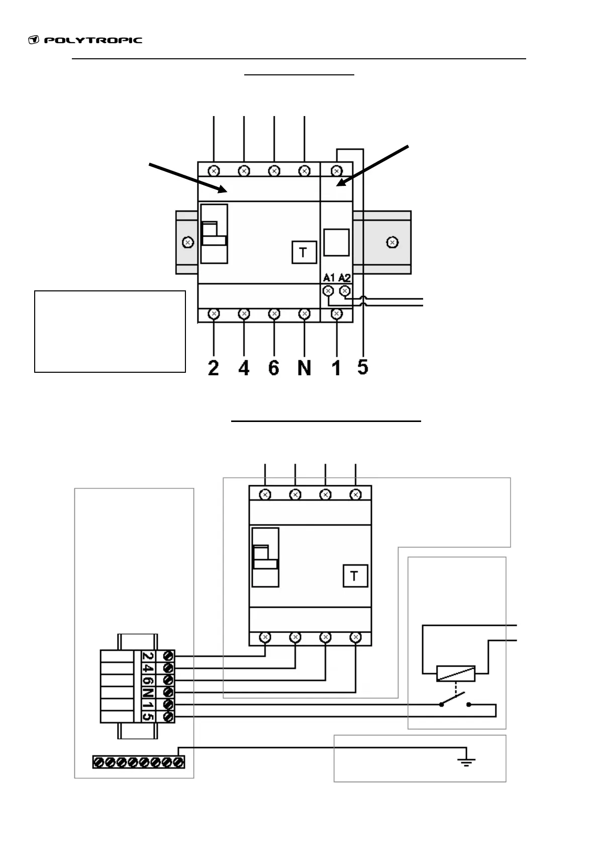
Anschluss der dreiphasigenrmepumpe an die Sicherungsschalttafel des
Schwimmbeckens
Eruterndes Anschlussschema
Stromversorgung
der Wärmepumpe
Anschlüsse an die Wärmepumpe
Von der
Schwimmbeckenuhr
gesteuertes Relai
400 V Netzspannung
Anschlussleiste der
Wärmepumpe
Netzübergangs-
schalter
Vielfachschutzerdung
Wasser
Umwälz-
pumpe
Strom-
versorgung
230V
Von der
Schwimmbeckenuhr
gesteuertes Relai
(siehe oben)
Stromzufuhr der
Umwälzpumpe
230V
Sicherung und
Fehlerstromschutz-
schalter
Polytropic bietet die
gesamte Anordnung
als KIT an. Diese ist
auf Anfrage lieferbar
.

Table of Contents

Related product manuals