EasyManua.ls Logo

Polytropic PAC 16 - R-PAC Option: Umwälzpumpe wird durch die Wärmepumpe Kontrolliert

Polytropic PAC 16
Print Icon
To Next Page IconTo Next Page
To Next Page IconTo Next Page
To Previous Page IconTo Previous Page
To Previous Page IconTo Previous Page
Loading...
- 86 -
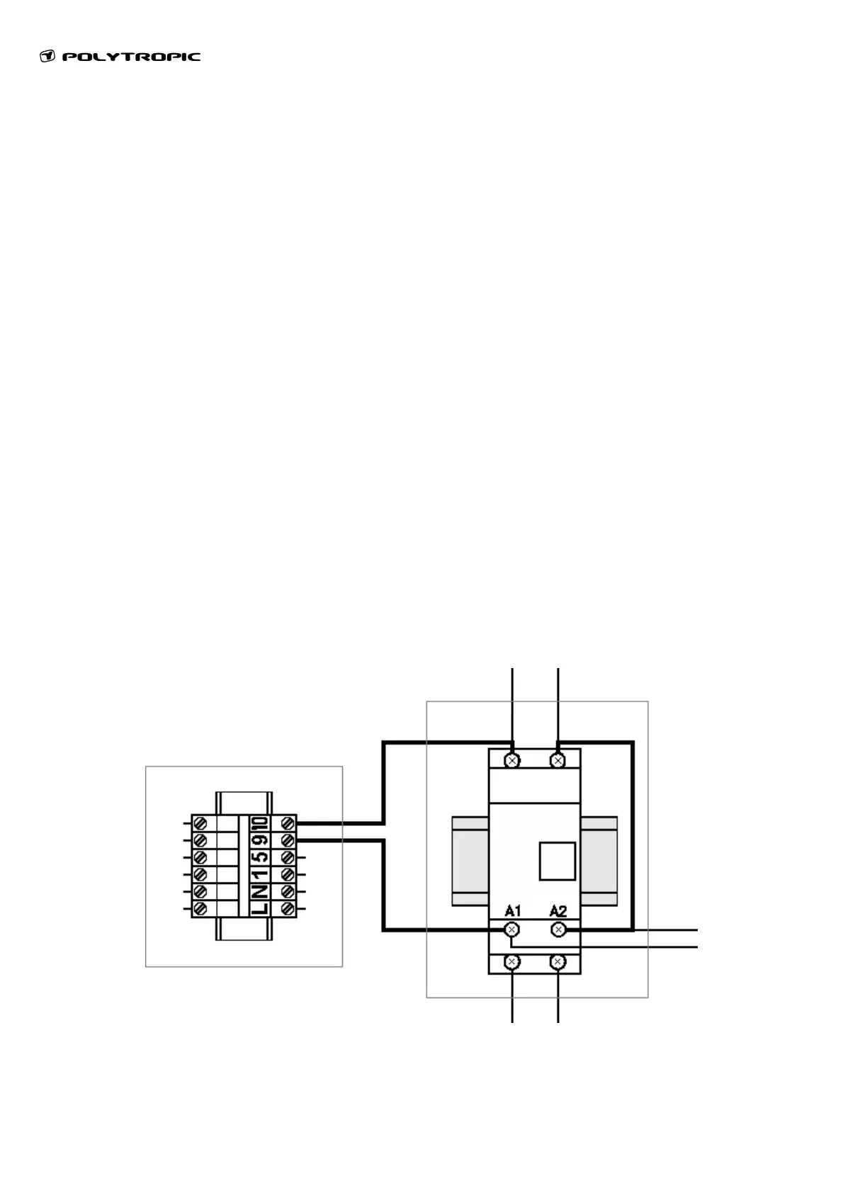
R-PAC Option: Umwälzpumpe wird durch die Wärmepumpe
kontrolliert
Durch dieses System erzwingt die Wärmepumpe ein weiterlaufen der Umwälzpumpe
nach Ablauf der Filtrationsperiode falls die Zeit der Filtrationsperiode nicht ausreicht
die gewünschte Temperatur herzustellen.
Um diese Option zu nützen, müssen die Terminals “9” und “10” mit dem Contactor
Relay der Umwälzpumpe folgendermaßen verbunden werden:
- Stellen Sie Phase und Neutral der Stromversorgung der Umwälzpumpe fest
- Stellen Sie Phase und Neutral am contactor Relay der Umwälzpumpe fest
(“A1” and “A2”)
Sobald Sie diese Anschlüsse identifiziert haben:
- Verbinden Sie die beiden neutralen Steckverbindungen des Contactors der
Umwälzpumpe: (Kabel A m Diagramm)
- Verbinden Sie die Phase der Stromversorgung der Umwälzpumpe mit der
Steckverbindung “10” der Wärmepumpe. (Kabel B im Diagramm)
- Verbinden Sie die Phase der Steuerung der Umwälzpumpe mit der
Steckverbindung “9” der Wärmepumpe. (Kabel C im Diagramm)
Stromversorgung der
Umwälzpumpe
Umwälzpumpe
Zeitschaltuhr
oder andere
Steuerung der
Umwälzpumpe
Kabel A
Kabel B
Kabel C
Phase
Phase
Neutral
Neutral
Phase
Neutral

Table of Contents

Related product manuals