EasyManua.ls Logo

PoolPak PCP Series - BH and BV Cabs: Vertical Configuration; BH;BV Cabs: Dehumidifier Options

PoolPak PCP Series
42 pages
Print Icon
To Next Page IconTo Next Page
To Next Page IconTo Next Page
To Previous Page IconTo Previous Page
To Previous Page IconTo Previous Page
Loading...
September 2020 11 PoolPak PCP Series Indoor OMM
Dehumidifier Options (applicable to both, vertical and horizontal, configurations):
Indoor, single-compressor dehumidifiers, 8 to 16 tons’ capacity (apprx.) - models PCP3000 to PCP5000 *.
o Two-compressor dehumidifier option (16 to 32 tons’ capacity (appx.) - models PCP3030 to PCP5050
as well as models PCP5500 and PCP6000) - see Dehumidifier Optional Arrangement below.
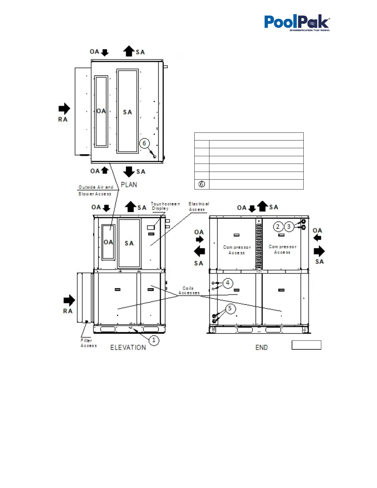
Airflow and ductwork connection options (Return Air (RA), Supply Air (SA) Outdoor Air (OA)) * - as shown on
Pic. C.1-A and C.1 B.
Optional Pool Water Heating **.
Optional Space Heating - hot water coil, electric or gas heater ***.
Air Conditioning (AC)* external water cooling, outdoor condenser or fluid cooler.
Vertical Composition
Return Air (RA) ductwork connection -
horizontal.
Supply Air (SA) ductwork connection
options top, horizontal side (left or
right).
Outdoor Air (OA) intake top, horizontal
side (left or right).
Piping Connections
Pic. C.1-B

Other manuals for PoolPak PCP Series

Related product manuals