EasyManua.ls Logo

PR 9106B - Connections

Default Icon
40 pages
Print Icon
To Next Page IconTo Next Page
To Next Page IconTo Next Page
To Previous Page IconTo Previous Page
To Previous Page IconTo Previous Page
Loading...
1 2
50.0
16.0mA
@C
31
14
12
11
NC*NC*
9106
32
+24V
34
33
44
43
42
41
54
53
52
51
13
+
-
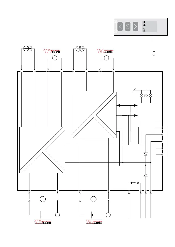
Tx
CPU
FLASH
4...20 mA
4...20 mA
+
-
+
-
+
-
I+
mA
mA
+
-
I+
mA
mA
+
+
+
-
Tx
14 9106 - Product Version 9106-001
BLOCK DIAGRAM
Gnd.
Status relay N.C.
Status relay N.C.
Supply -
Power Rail connections
Supply +24 VDC
2-wire transmitter
2-wire transmitter
Channel 1
Channel 2
2-wire supply
2-wire supply
Supply, Green
Ch. 1 status, Red
Ch. 2 status, Red
Gnd.
Gnd.
CONTENTS

Related product manuals