EasyManua.ls Logo

Premier Hazard 9004 - Fitting Information; Installation Location and Airflow

Premier Hazard 9004
12 pages
Print Icon
To Next Page IconTo Next Page
To Next Page IconTo Next Page
To Previous Page IconTo Previous Page
To Previous Page IconTo Previous Page
Loading...
3
Tone information:
Tone specification DIN 14610
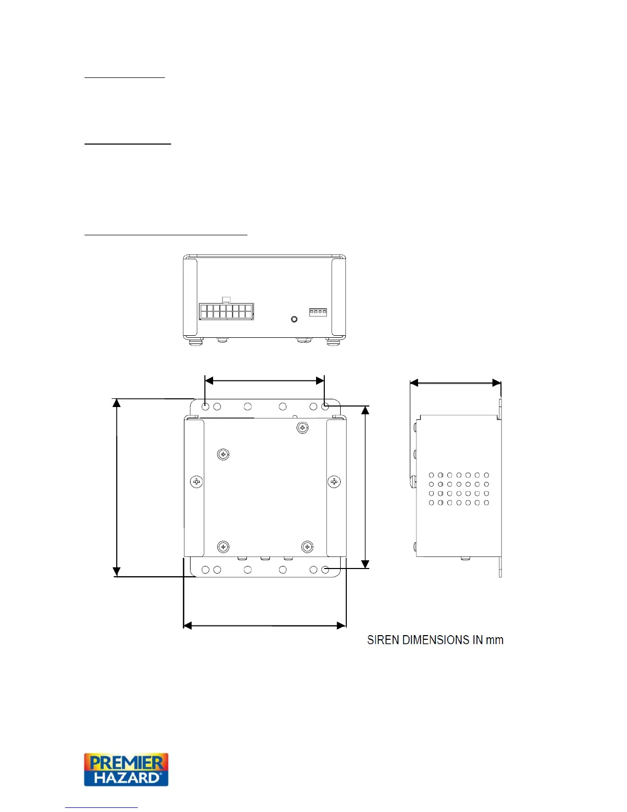
Fitting information:
Leave room for airflow around the siren (approx. 50mm).
Don’t place any wiring directly on the siren casing.
The siren amplifier is not waterproof, so should be fitted in a suitable location.
Siren amplifier dimensional drawing:
78.5
106.5
106
60

Related product manuals