EasyManua.ls Logo

Premier E Series - Page 9

Premier E Series
24 pages
Print Icon
To Next Page IconTo Next Page
To Next Page IconTo Next Page
To Previous Page IconTo Previous Page
To Previous Page IconTo Previous Page
Loading...
PREMIER E SERIES DUAL CAPACITY INSTALLATION AND MAINTENANCE MANUAL
9
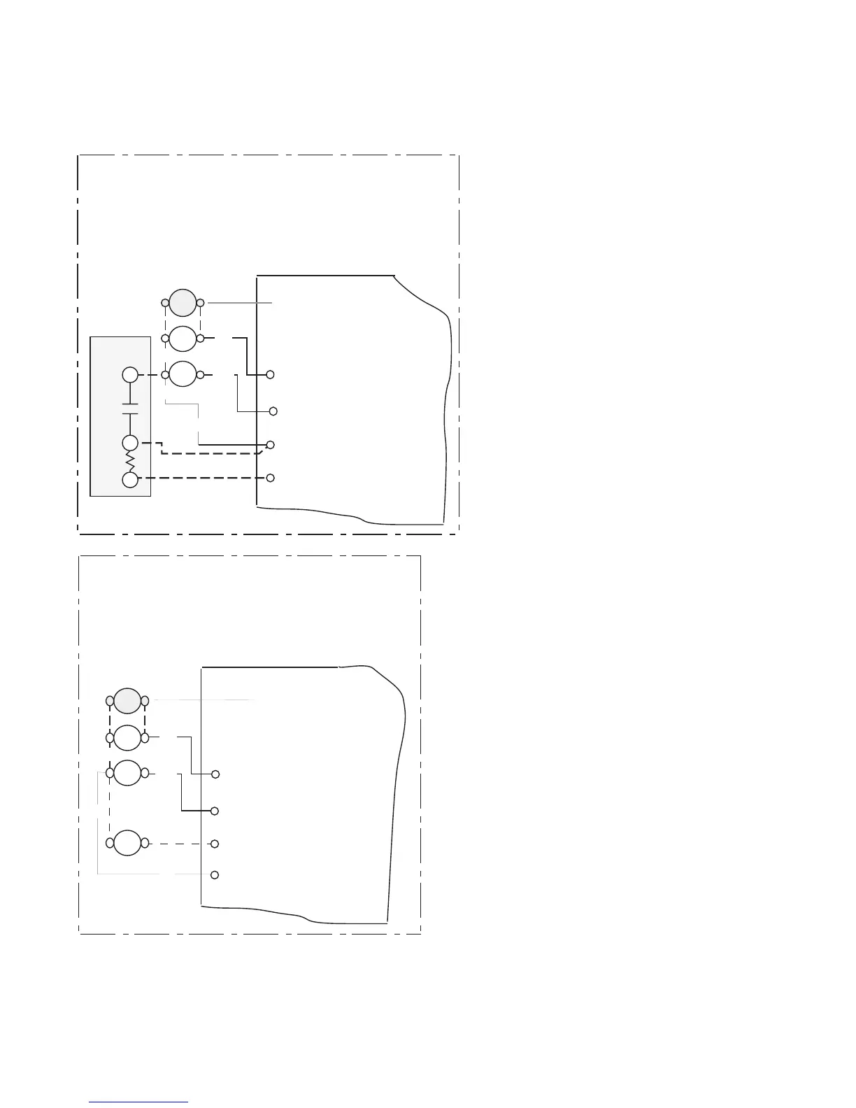
Figure 9 - Open loop solenoid valve connections
Typical two stage external 24V water
valve utilizing one motorized valve
( type VM) and one pilot operated
solenoid valve (BPV100 or PPV100)
1
CC
CCHI
Premier E series
Dual Capacity Logic
Board
CC GND
CCLO
Wh
Red
SV2
Stage 2 BPV100 or
PPV100 solenoid valve
3
CCH
CCL
Blk
Blk
2
Remove
Typical Two Stage external 24V
water solenoid valves (type PPV100
or BPV100) wiring
CC
CCHI
CCH
CCL
Blk
Premier E series
Dual Capacity
Logic Board
CC GND
CCLO
SV1
Wh
Red
Stage 2
solenoid valve
SV2
Blk
Blk

Related product manuals