EasyManua.ls Logo

Primary Mover Prime Force PF310 - Dual Hydraulic Trailer Jack Installation

Default Icon
39 pages
Print Icon
To Next Page IconTo Next Page
To Next Page IconTo Next Page
To Previous Page IconTo Previous Page
To Previous Page IconTo Previous Page
Loading...
Page 21
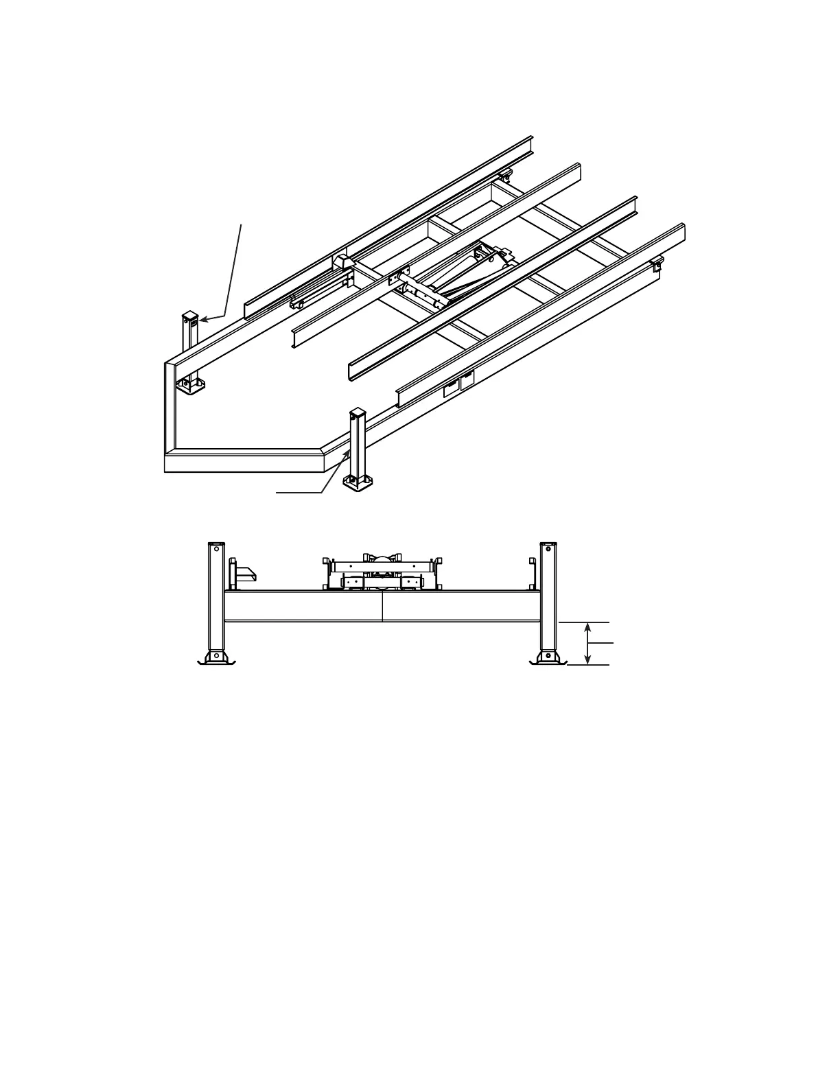
Continuous weld both
sides of jack
Position hydraulic
ports to make
hose routing easy
8” Maximum
DUAL HYDRAULIC TRAILER WELD-ON JACK INSTALLATION