EasyManua.ls Logo

Proteco BARRY - 11 Additional Devices; Loop Detector (Contact N.C.); Loop Detector (Contact N.O.)

Proteco BARRY
16 pages
Print Icon
To Next Page IconTo Next Page
To Next Page IconTo Next Page
To Previous Page IconTo Previous Page
To Previous Page IconTo Previous Page
Loading...
10
11.1 Safety devices in closing
PHOTOCELLS (contact N.C.)
- If the beam is broken during closing, the barrier
reverses to opening position.
- If the bream is broken during opening, the barrier
keeps on to opening position.
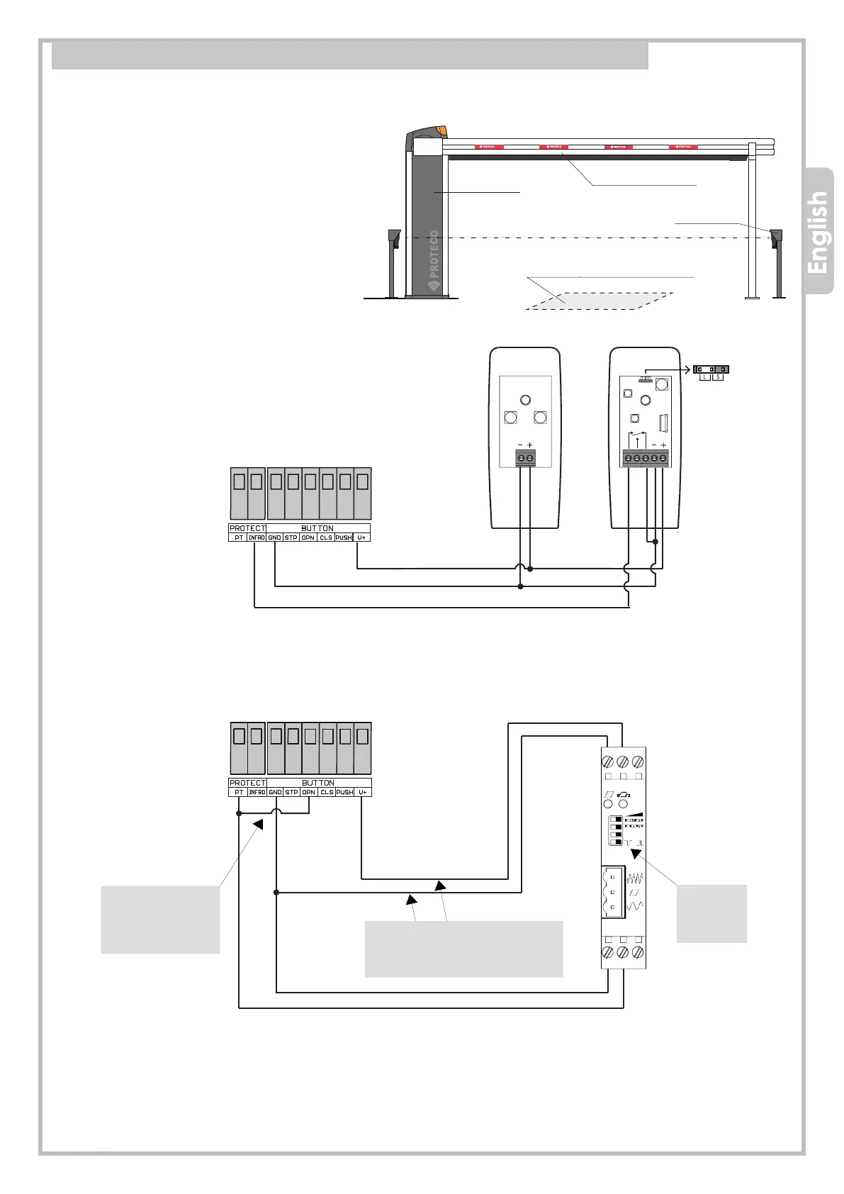
11. ADDITIONAL DEVICES
The following devices can be connected to the barrier: photocell, loop detector, safety edge, keypad.
The wiring is the same for both 230V and 24V
systems, the only key difference is the voltage
supplied by the control unit (terminal V+):
- THE 230V (AC) VERSION SUPPLIES 12 VOLT
- THE 24V (DC) VERSION SUPPLIES 24 VOLT
Barrier
Safety edge
Photocell
Loop detector
11.2 LOOP DETECTOR (contact N.C.)
- If a car crosses through during closing, the barrier reverses to opening position.
- If a car crosses through during opening, the barrier keeps on to opening position.
TERMINAL J5/JP5
RF40
RX
1 2 3
C.
N.C.
N.O.
TX
Jumper
0V 24V 28
16 15 25
s
h
r
5'/oo
/
VEK M1H
This power supply only fits Barry 24V
version. For Barry 230V use an external
24V power supply device.
Move the
DIP-switch
‘r’
to the right.
For automatic opening
at car arrival, bridge PT
and OPN
RG01
The RG01 detector is equipped with both N.C. and N.O. contacts.
For this application, select N.O. mode, simply moving the DIP-switch 'r' to the right.
Outputs 15 and 16 must be connected to the barrier's controller on PT and GND respectively.
For automatic opening at car arrival, make an additional jumper between PT and OPN.
The RG01 device requires a 24 volt power supply; to fit it with Barry 230V we recommend to use an external power
supply, connected to terminals 0V and 24V of the RG01 loop device.
TERMINAL J5/JP5