EasyManua.ls Logo

Quantum QG-3200 - Non-Operating Environment

Quantum QG-3200
493 pages
Print Icon
To Next Page IconTo Next Page
To Next Page IconTo Next Page
To Previous Page IconTo Previous Page
To Previous Page IconTo Previous Page
Loading...
Chapter 1 Specifications
Revision W HF Series X-ray Generators - Service Manual
1-20 Quantum Medical Imaging
NOTE: The above calculations are typical, based upon average usage.
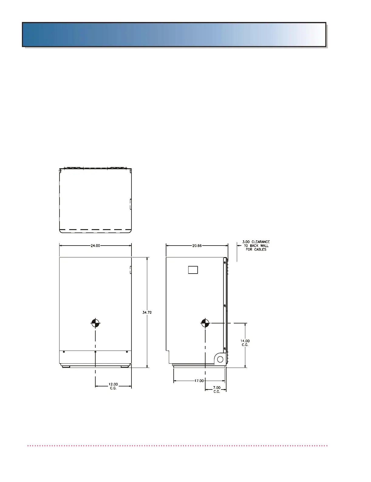
Air circulation around the electronic cabinet must be provided.
This includes the sides, back, front and top of cabinet.
NON-OPERATING ENVIRONMENT
Ambient Temperature: -18°C to +70°C
Relative Humidity: 20 to 95%, non-condensing
Atmospheric Pressure: 500 hPa to 1060 hPa
Figure 1-1. HF Series X-ray Generator Cabinet Dimensions

Table of Contents

Related product manuals