EasyManua.ls Logo

Radiant RS 30 E - 3.6 Gas Connection

Radiant RS 30 E
29 pages
Print Icon
To Next Page IconTo Next Page
To Next Page IconTo Next Page
To Previous Page IconTo Previous Page
To Previous Page IconTo Previous Page
Loading...
Installation Manual
SYSTEM BOILER – Cod. 99951NA – November 2002
13
TR1
FUSE 2A
TR2
CM1
P2
MIN.GAS
CM1
CM1
SELECTOR
SELECTOR
Link disabled on CM1 selector.
Timing 3 min.Timing 0 min.
Link inserted on CM1 selector.
GAS TYPE CONVERSION
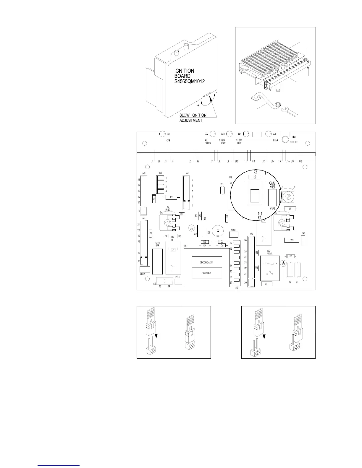
Conversion of the boiler from natural
gas to LPG and vice versa must be
performed by qualified personnel
only. Conversion is performed as
follows:
a) turn off the main power switch;
b) close the gas cock;
c) substitute the jets on the main
burner as follows:
undo the gas pipe 5 (fig.1) from
the burner manifold using a size
24 spanner;
separate the burner manifold 2 from
the burner ramps 1 by undoing the 4
screws 3 using a cross head
screwdriver;
fit new jets 4 to the burner suitable
for the type of gas the boiler will run
on using a no. 7 spanner. The jets
must be fitted with new gaskets;
reassemble the entire burner unit.
Use the soapy water method to
check for gas leaks each time gas
connections are dismantled and
reassembled;
d) replace the gas setting plate that
indicates the type of gas and nominal
pressure for the boiler. When
converting the boiler to work with a
different type of gas, remove the
existing plate and replace it with the
new one supplied in the conversion
kit .
e) calibrate the new max. and min.
settings for the gas pressure.
SLOW IGNITION ADJUSTMENT
(fig. 2)
This is a slow ignition regulator whose
trimmer is factory set to the minimum.
For adjustment proceed as follows:
if turned clockwise the gas pressure at
the burner increases on ignition while
turning counter-clockwise decreases the
gas pressure.
LINK TO ADJUST SLOW IGNITION
This allows the various ignitions to be delayed once the boiler has reached the optimum temperature.
CM1 link on main p.c.b. (fig.3)
The timing range goes from 0 with the link inserted on CM1 selector (fig. 4), to 3 minutes with the link disabled on CM1 selector
or eventually positioned on the side pin as shown in figure no,5.
Fig. 2
GAS BURNER UNIT
1
2
3
4
5
Fig. 1
Fig. 4
Fig. 5
Fig. 3
Fig. 1 Fig. 2

Other manuals for Radiant RS 30 E

Related product manuals