EasyManua.ls Logo

Radiant RS 30 E - 3.8 Flue connections

Radiant RS 30 E
29 pages
Print Icon
To Next Page IconTo Next Page
To Next Page IconTo Next Page
To Previous Page IconTo Previous Page
To Previous Page IconTo Previous Page
Loading...
Installation Manual
SYSTEM BOILER – Cod. 99951NA – November 2002
16
9
S4565QM 1012
R8
IC
L
F
M4
17
RP-C
31
M7
no
RT-C
M7
36
PF
TR
M7
34
c
nc
25
M5
30
M7
M5
27
1112 10
N
M6
29
C
M4
16
28
M6
R10
R6
M7
RV-C
35
M7
33
EV
C3
RV
D6
M7
32
26
LB
M5
TL
8 7 6 5 4 312
24
M5
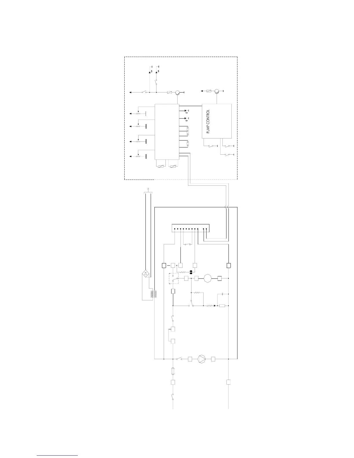
ROOM SEALED
WIRING DIAGRAM
RT
LOW
VOLTAGE
CIRCUIT
MAX HEAT.
MIN. GAS
T. HEAT.
T. SAN.
THERMOSTATS MODULATION
BLOCK
SPIA 1 BAR
SPI A 1.5 BAR
PRESS. ACQUA
T. AMB.
PWM
MF
T. OFF
GPL-MET
TERM. FUMI
SPIA
ALLAR. H2O
SPIA
AND
PRIORITY BLOCK
E/I
RP
SENSOR
HEATING
HOT WATER
SENSOR
WATER PRESSURE SWITCH
HIGT VOLTAGE CIRCUIT (220V AC)

Other manuals for Radiant RS 30 E

Related product manuals