EasyManua.ls Logo

Rational SCC WE 102G - 20 x1;1 GN and 20 x1;1 GN Gas Schematics

Rational SCC WE 102G
44 pages
To Next Page IconTo Next Page
To Next Page IconTo Next Page
To Previous Page IconTo Previous Page
To Previous Page IconTo Previous Page
Loading...
V-09 05/2014 - 38 -
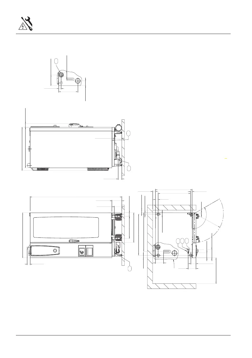
Schematic drawing 20x1/1 GN
o
40
[
1-5/8
]
1782
[
70-1/8
]
190
[
7-1/2
]
55
[
2-1/8
]
877
[
34-1/2
]
790
[
31-1/8
]
136,5 [5-3/8]
71 [2-3/4]
67
[
2-5/8
]
798
[
31-3/8
]
27
[
1-1/8
]
752
[
29-5/8
]
158 [6-1/4]
152
[
6
]
162,5 [6-3/8]
102,5
[
4
]
629
[
24-3/4
]
52
[
2
]
715
[
28-1/8
]
34
[
1-3/8
]
120
565
[
22
]
577
[
22-3/4
]
52
[
2
]

500
[
19-5/8
]

50
[
2
]

55
[
2
]
209,5 [8-1/4]
48
[
1-7/8
]
370
[
14-5/8
]
93,5 [3-5/8]
76,3
[
3
]
842
[
33-1/8
]
25
[
1
]
103,5 [4-1/8]
69
[
2-3/4
]
431
[
17
]
145
[
5-3/4
]
o 
o  
  o
110
6
4
5
1
2
3
7
1 = Common water supply (cold water)
(standard as shipped)
2 = Water supply, cold water*
3 = Water supply, soft water*
4 = Drain
5 = Electrical connection
6 = Earth bonding
7 = Venting pipe 3"
Measures in mm (inch)
*= option after removal of T-connection

Related product manuals