EasyManua.ls Logo

Raypak 206A - Wiring Diagram - Millivolt (Mechanical Therm.)

Raypak 206A
60 pages
Print Icon
To Next Page IconTo Next Page
To Next Page IconTo Next Page
To Previous Page IconTo Previous Page
To Previous Page IconTo Previous Page
Loading...
28
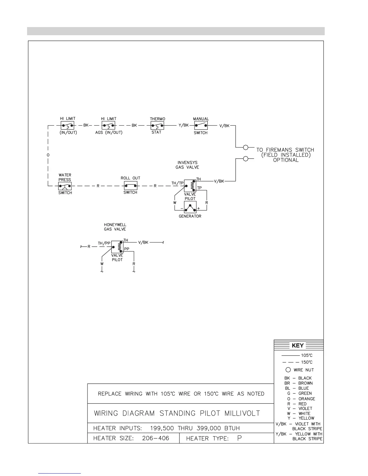
WIRING DIAGRAM - MILLIVOLT (MECHANICAL THERMOSTAT)

Table of Contents

Other manuals for Raypak 206A

Related product manuals