EasyManua.ls Logo

Raypak C-R206A-EN-C - Venting Requirements and Gas Connections; Venting Application; Gas Supply Connections

Raypak C-R206A-EN-C
56 pages
Print Icon
To Next Page IconTo Next Page
To Next Page IconTo Next Page
To Previous Page IconTo Previous Page
To Previous Page IconTo Previous Page
Loading...
19
The power vent assembly is a fan-assisted combus-
tion system designed for application to models 206-
407. The unit, when installed as directed, is capable of
operating in applications such as through-the-wall
venting and reduced horizontal and vertical vent pipe
sizes in new and current installations. The unit is fac-
tory-wired for 240 VAC, with capability of rewiring for
120 VAC.
F
or protection against rain or blockage by snow, the
vent pipe must terminate with a vent cap which com-
plies with the local codes or, in the absence of such
codes, to the latest edition of the National Fuel Gas
Code, ANSI Z223.1 (Canada - CAN/CSA-B149).
The discharge opening must be a minimum of 2 ft ver-
tically from the roof surface and at least 2 ft higher than
any part of the building within 10 ft. Vent stack shall be
at least 5 ft in vertical height above the drafthood out-
let. The vent cap location shall have a minimum clear-
ance of 4 ft horizontally from, and in no case below,
unless a 4 ft horizontal distance is maintained, from
electric meters, gas meters, regulators and relief
equipment.
The weight of the vent stack or chimney must not rest
on heater drafthood. Support must be provided in
compliance with applicable codes. The heater top and
drafthood must be readily removable for maintenance
and inspection. Vent pipe should be adequately sup-
ported to maintain proper clearances from combustible
construction.
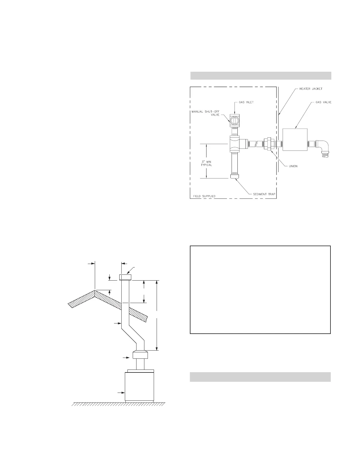
GAS SUPPLY CONNECTIONS
Gas piping must have a sediment trap ahead of the
heater gas controls, and a manual shut-off valve locat-
ed outside the heater jacket. All gas piping should be
tested after installation in accordance with local codes.
CAUTION: The heater and its manual shut-off valve
must be disconnected from the gas supply during any
pressure testing of that system at test pressures in
excess of 1/2 psi (3.45 kPa). Dissipate test pressure
in the gas supply line before reconnecting the heater
and its manual shut off valve to gas supply line. FAIL-
URE TO FOLLOW THIS PROCEDURE MAY DAM-
AGE THE GAS VALVE. OVER PRESSURIZED GAS
VALVES ARE NOT COVERED BY WARRANTY. The
heater and its gas connections shall be leak tested
before placing the appliance in operation. Use soapy
water for leak test. DO NOT use open flame.
5' MIN
2' MIN
10' OR LESS
2' MIN
VENT CAP
VENT PIPE
DRAFT HOOD
HEATER
NOTE: Do not use Teflon tape on gas line pipe thread.
A pipe compound rated for use with natural and
propane gases is recommended. Apply sparingly only
on male pipe ends, leaving the two end threads bare.
A minimum of 6 in. WC for atmospheric units (5 in. WC
for Lo NOx units), and a maximum of 14 in. WC
upstream pressure under load and no-load conditions
must be provided for natural gas. A minimum of 12 in.
WC and a maximum of 14 in. WC are required for
propane gas under load and no-load conditions.
SUPPLY PRESSURES
NOTE: With venting application of two or more
heaters, contact the factory.
Flue material used must be certified to CATEGORY I
or better. Type "B" double-wall or equivalent vent pipe
is recommended. However single-wall metal vent pipe
may be used as specified in the latest edition of the
National Flue Gas Code ANSI Z223.1 (Canada -
CAN/CSA-B149).

Table of Contents

Related product manuals