EasyManua.ls Logo

RED COMPACT 18 - Chimney Connection and Combustion Air

RED COMPACT 18
60 pages
Print Icon
To Next Page IconTo Next Page
To Next Page IconTo Next Page
To Previous Page IconTo Previous Page
To Previous Page IconTo Previous Page
Loading...
10
2-INSTALLATION INSTRUCT
Always use pipes and ttings with appropriate seals that guarantee tightness.
It must be possible to inspect all sections of the ue duct and they must be removable for periodic internal cleaning (T-tting with
inspection hole).
Position the product considering all the above requirements and instructions.
IMPORTANT!
The following conditions must be complied with when connecting the appliance to the chimney:
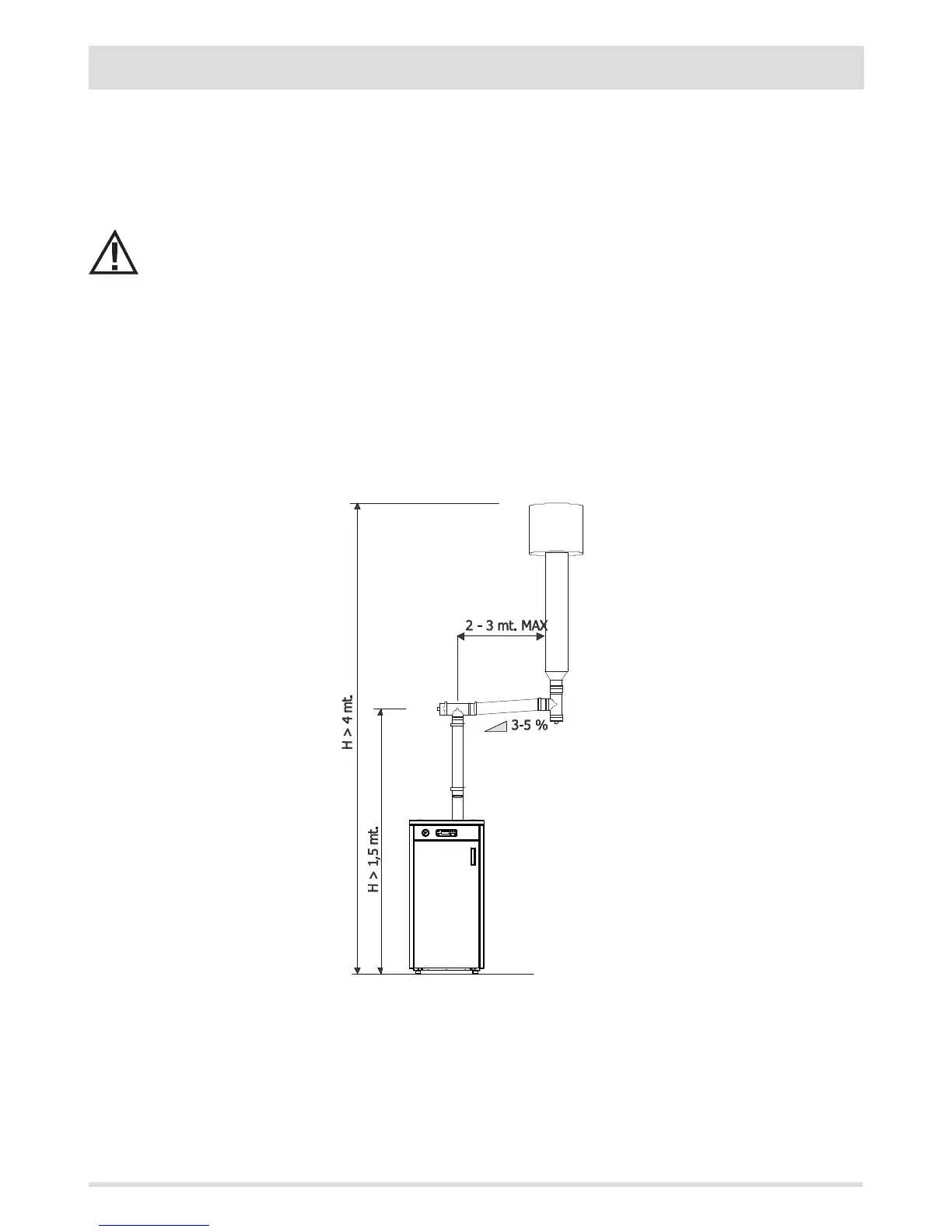
• the smoke duct must be at least category T200 (or higher if required by the smoke temperature of the appliance)
and P1-type (airtight).
• All 90° angles (max. 3) in the smoke exhaust duct must be preferably tted with the relative T-ttings with
inspection hole. (See pellet product accessories).
• It is strictly forbidden to t a mesh at the end of the exhaust pipe as it could cause the product to malfunction
(due to clogging).
• It is forbidden to use counter-sloping pipes.
• The horizontal section of the smoke duct must not be longer than 2-3 m.
• It is also recommended not to exceed 6 metres in length with the pipe Ø 80 mm.
• The smoke duct must not cross rooms in which it is forbidden to install combustion appliances.
COMBUSTION AIR (2)
During operation a certain amount of air is drawn from the room in which the product is installed and this air must be supplemented
through an external air inlet.
PELLET BOILER INSTALLATION EXAMPLE

Table of Contents

Other manuals for RED COMPACT 18

Related product manuals