EasyManua.ls Logo

RED COMPACT 18 - Factory Setting

RED COMPACT 18
60 pages
Print Icon
To Next Page IconTo Next Page
To Next Page IconTo Next Page
To Previous Page IconTo Previous Page
To Previous Page IconTo Previous Page
Loading...
33
1
7
3
5
5
4
6
2
1
3
7
8
5
5
4
11
6
10
9
2
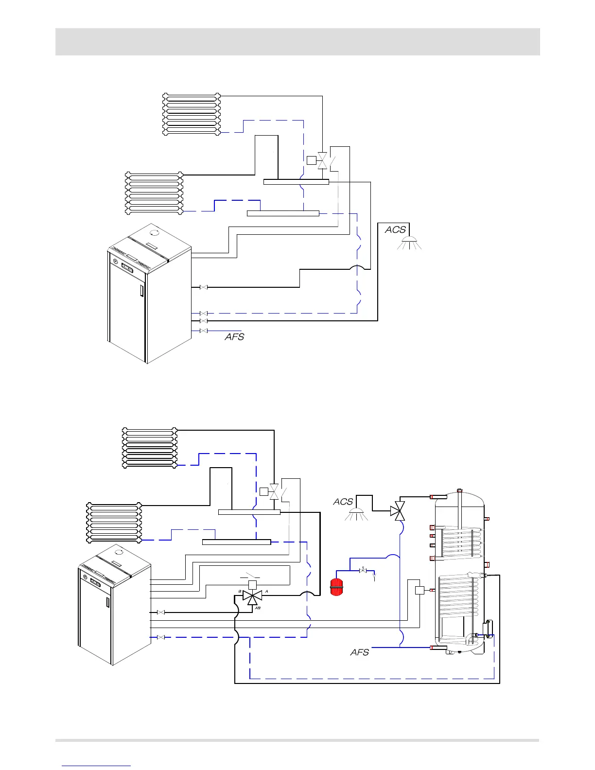
9 - PRELIMINARY NOTIONS
CONFIGURATION 2.1 (FACTORY SETTING)
CONFIGURATION 2.2
Technical Dept. - All rights reserved - Reproduction is prohibited

Table of Contents

Other manuals for RED COMPACT 18

Related product manuals