EasyManua.ls Logo

Regency C34 Classic - Dura-Vent Horizontal Installations

Regency C34 Classic
44 pages
Print Icon
To Next Page IconTo Next Page
To Next Page IconTo Next Page
To Previous Page IconTo Previous Page
To Previous Page IconTo Previous Page
Loading...
Regency
®
CLASSIC C34-3 Direct Vent Freestanding Gas Stove
23
INSTALLATION
Diagram 4
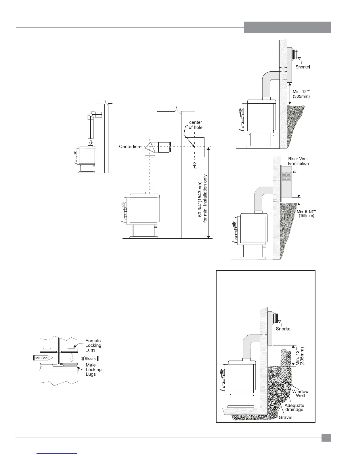
Below Grade Installation
If the Snorkel Termination must be installed
below grade, i.e. basement application, proper
drainage must be provided to prevent water
from entering the Snorkel Termination. Refer
to Diagram 4. Do not attempt to enclose the
Snorkel within
the wall, or any
other type of en-
closure.
Diagram 3a
*Diagram 3, 3a &
4: As specified
in CGA B149 In-
stallation Code.
Local codes or
regulations may
require different
clearances.
Note: Riser Vent is
only for use in above
grade terminations.
Diagram 2
Diagram 3
DURA-VENT
HORIZONTAL
INSTALLATIONS
1) Set the unit in its desired location. Check
to determine if wall studs or roof rafters
are in the way when the venting system is
attached. If this is the case, you may want
to adjust the location of the unit.
2) Direct Vent pipe and ttings
are designed with special
twist-lock connections to
connect the venting system
to the appliance ue outlet. A
twist-lock appliance adaptor
is installed on the unit at the
factory. Assemble the
desired combination of
pipe and elbows to the
appliance adaptor with
pipe seams oriented
towards the wall or ceil-
ing, as much out of view as possible. The
nal positioning of the pipe and 90
o
elbow
assembly is determined by the mounting
orientation of the adaptor on the stove and
twist-locked for a solid connection.
Note:
a) Twist-lock procedure: Four indentations,
located on the female ends of pipes and
ttings, are designed to slide straight
onto the male ends of adjacent pipes
and ttings, by orienting the four pipe
indentations so they match and slide in
to the four entry slots on the male ends
(diagram 1). Push the pipe sections
completely together, then twist-lock
one section clockwise approximately
one-quarter turn, until the two sections
are fully locked.
The female locking lugs will not be
visible from the outside on the Black
Pipe or ttings. They may be located by
examining the inside of the female ends.
Apply sealant "Mill-Pac" to inner pipe
and high temperature silicone sealant
to outer pipe on every twist-lock joint.
Diagram 1
Hint: Apply silicone to female end.
3) With the pipe attached to the stove, slide
the stove into its correct location, and mark
the wall for a 10" x 10" (inside dimensions)
square hole. The center of the square hole
should line up with the center-line of the
horizontal pipe, as shown in diagram 2.
Cut and frame the 10 inch square hole
in the exterior wall where the vent will be
terminated. If the wall being penetrated is
constructed of non-combustible material, i.e.
masonry block or concrete, a 7" diameter
hole is acceptable.
Note:
a) The horizontal run of vent must be
level, or have a 1/4 inch rise for every
1 foot of run towards the termination.
Never allow the vent to run downward.
This could cause high temperatures
and may present the possibility of a
re.
b) The location of the horizontal vent
termination on an exterior wall must
meet all local and national building
codes, and must not be blocked
or obstructed. See diagram 10 in
"External Vent Terminal Locations"
section.
c) Snorkel Terminations:
For installations requiring a vertical rise
on the exterior of the building, 14-inch
and 36-inch tall Snorkel Terminations
as shown in Diagram 3 are available,
as well as the standard Riser Vent, see
Diagram 3a. Follow the same installa-
tion procedures as used for standard
Horizontal Termination. NEVER install
the snorkel upside down.
b) Horizontal runs of vent must be sup-
ported every three feet. Wall straps are
available for this purpose.

Table of Contents

Related product manuals