EasyManua.ls Logo

Regency Ei29 - Faceplate, Trim, and Log Set Installation

Regency Ei29
60 pages
Print Icon
To Next Page IconTo Next Page
To Next Page IconTo Next Page
To Previous Page IconTo Previous Page
To Previous Page IconTo Previous Page
Loading...
13
Installer's Information
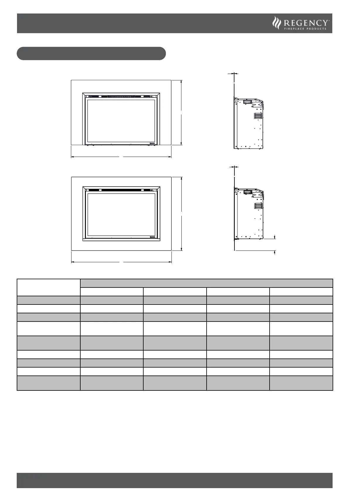
FACEPLATE DIMENSIONS
B
A
C
A
B
C
D
Faceplate
Dimensions
Width (A) Height (B) Depth (C) Bottom Height (D)
3 Sided Finishing Trim* 31-1/16" (789mm) 20-7/8" (531mm) 1/8" (3mm) -
4 Sided Finishing Trim** 31-1/16" (789mm) 21-13/16" (554mm) 1/8" (3mm) 13/16" (20mm)
Flush Faceplate 40-3/16" (1021mm) 26" (661mm) 1/16" (2mm) -
Flush Faceplate w/
Premium Surround
40-13/16" (1037mm) 26-3/8" (670mm) 1-11/16" (43mm) -
Flush Faceplate w/
Traditional Surround
45-3/4" (1162mm) 28-3/4" (731mm) 2-1/4" (57mm) -
4 Sided Flush Faceplate 40-3/16" (1021mm) 29-1/2" (750mm) 1/16" (2mm) 4-3/4" (121mm)
Oversized Backing Plate 47-1/2" (1207mm) 31-1/2" (800mm) 1/16" (2mm) -
3 Sided Custom Faceplate 33-1/16" - 56-7/8" 21-7/8" - 44-7/8" 1/16" (2mm) -
4 Sided Custom Faceplate
33-1/16" - 69"
(840mm - 1753mm)
23-13/16" - 45"
(605mm - 1143mm)
1/16" (2mm) 1-7/8" min (48mm)
* Bottom trim from 4 sided finishing trim is removed to create a 3 sided.
** Included with appliance

Related product manuals