EasyManua.ls Logo

Regency U41 - Copy of the Lighting Plate Instructions

Regency U41
24 pages
Print Icon
To Next Page IconTo Next Page
To Next Page IconTo Next Page
To Previous Page IconTo Previous Page
To Previous Page IconTo Previous Page
Loading...
15
Regency U41-3 ULTIMATE Gas Fireplace Insert
COPY OF THE LIGHTING PLATE INSTRUCTIONS
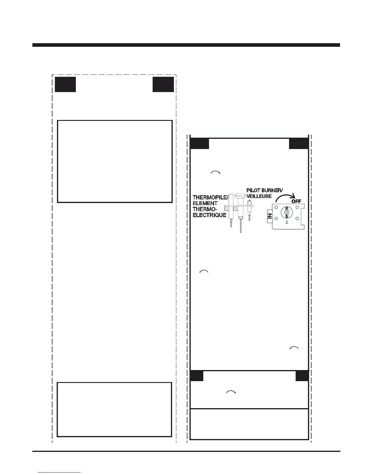
LIGHTING INSTRUCTIONS
2) Wait five (5) minutes to clear out any gas. If you
then smell gas STOP! follow “B” in the safety
information above on this label. If you don’t
smell gas, go to the next step.
3) Turn knob on gas control counterclockwise
to “PILOT”.
4) Push in control knob all the way and hold in.
Immediately push black button on spark igniter
until pilot lights. Continue to hold the control
knob in for about 1/2 minute after the pilot is lit.
Release knob and it will pop back up. Pilot should
remain lit. If it goes out, repeat steps 3) and 4).
If knob does not pop up when released, stop and
immediately call your service technician or gas
supplier.
If the pilot will not stay lit after several tries, turn
the gas control knob to “OFF” and call your
service technician or gas supplier.
5) Turn gas control knob counterclockwise to
“ON”.
6) Use rocker switch to operate main burner.
STOP! Read the safety information above on this
label.
1) Push in gas control knob slightly and turn clock-
wise to “OFF”. Knob cannot be turned from
“PILOT” to “OFF” unless knob is pushed in
slightly. Do not force.
TO TURN OFF GAS APPLIANCE
1) Push in the gas control knob slightly and turn
clockwise to “OFF”. Do not force.
2) Turn off all electric power to the appliance if
service is to be performed.
DO NOT REMOVE THIS
INSTRUCTION PLATE
Made in Canada
908-432
A)This appliance has a pilot which must be lighted
by hand, following the instructions below
exactly.
B)BEFORE LIGHTING smell all around the appli-
ance area for gas. Be sure to smell next to the floor
because some gas is heavier than air and will
settle on the floor.
WHAT TO DO IF YOU SMELL GAS
- Do not try to light any appliance
- Do not touch any electric switch, do not use any
phone in your building
- Immediately call your gas supplier from a neigh-
bours phone. Follow the gas supplier’s instruc-
tions.
- If you cannot reach your gas supplier, call the
fire department.
C)Use only your hand to push in or turn the gas
control knob. Never use tools. If the knob will not
push in or turn by hand, don’t try to repair it, call
a qualified service technician. Force or attempted
repair may result in a fire or explosion.
D)Do not use this appliance if any part has been
under water. Immediately call a qualified service
technician to inspect the appliance and to replace
any part of the control system and any gas control
which has been under water.
CAUTION: Hot while in operation. Do
not touch. Due to high surface
temperatures keep children, clothing
and furniture, away. Keep burner and
control compartment clean.
See installation and operating
instructions accompanying appliance.
WARNING: If you do not follow these
instructions exactly, a fire or explosion
may result causing property damage,
personal injury or loss of life. Improper
installation, adjustment, alteration,
service or maintenance can cause injury
or property damage. Refer to the owner’s
information manual provided with this
appliance. For assistance or additional
information consult a qualified installer,
service agency or gas supplier.
FOR YOUR SAFETY
READ BEFORE LIGHTING
This appliance must be installed in accordance
with local codes, if any; if not, follow the current
CAN1-B149/ANSI Z 223.1 (Australia: AG601 /
New Zealand: NZS 5261)
This appliance needs fresh air for safe operation and
must be installed so there are provisions for adequate
combustion and ventilation air.
OPERATING INSTRUCTIONS

Related product manuals