EasyManua.ls Logo

Regency U41 - Fan Maintenance and Cleaning

Regency U41
24 pages
Print Icon
To Next Page IconTo Next Page
To Next Page IconTo Next Page
To Previous Page IconTo Previous Page
To Previous Page IconTo Previous Page
Loading...
18
Regency U41-3 ULTIMATE Gas Fireplace Insert
MAINTENANCE
CAUTION:
Label all wires prior to disconnection when servicing controls.
Wiring errors can cause improper and dangerous operation.
IMPORTANT
Disconnect power supply
before servicing
WARNING: Electrical Grounding
Instructions
This appliance is equipped with a
three pronged (grounding) plug
for your protection against shock
hazard and should be plugged
directly into a properly grounded
three-prong receptacle. Do not
cut or remove the grounding
prong from this plug.
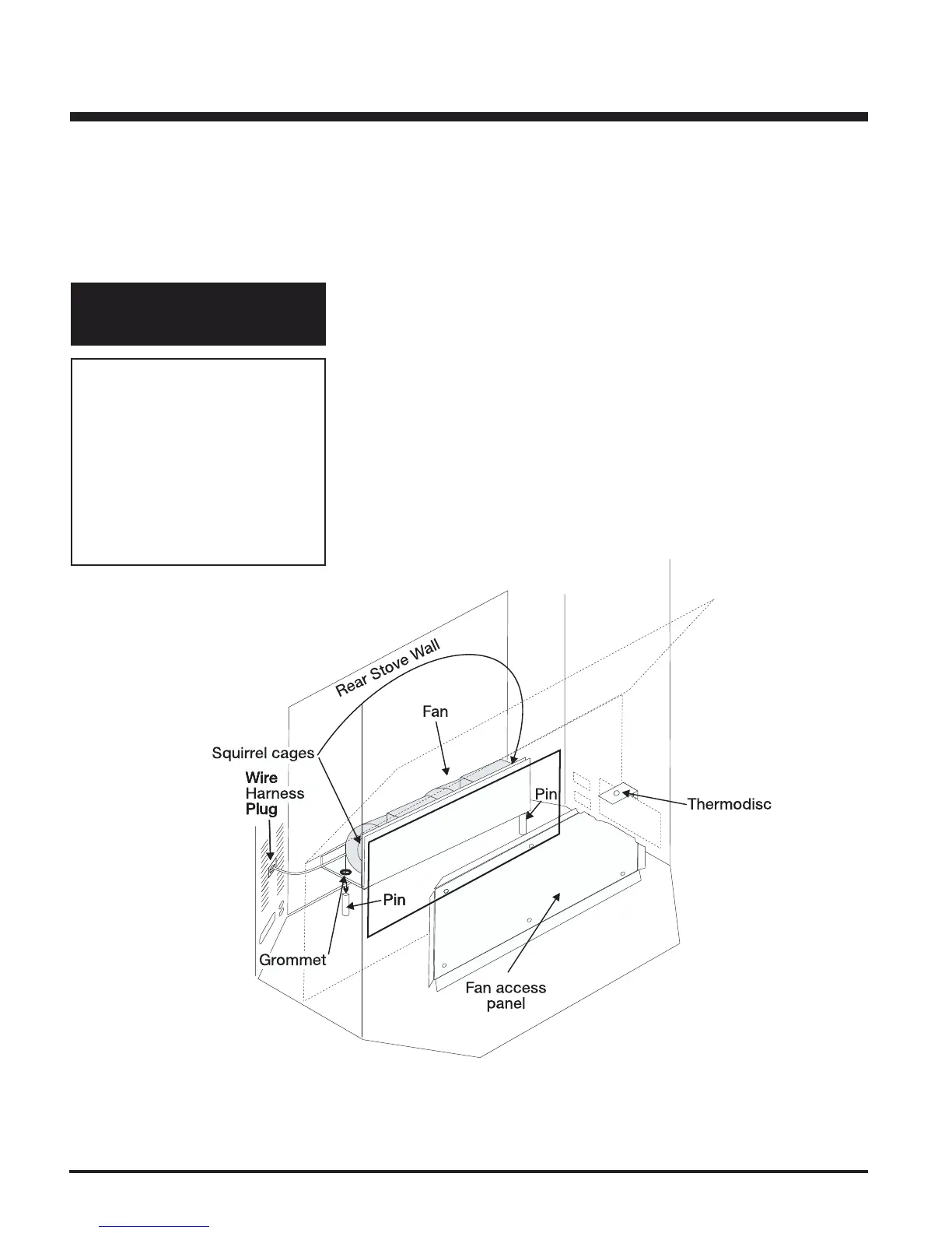
FAN MAINTENANCE
To remove fan:
1) Unplug or disconnect power source to
stove.
2) Remove all logs and the rear log support,
then remove the 6 screws holding the
access panel in place.
3) Disconnect white wire from fan to power
cord.
4) Disconnect black wire from molex plug to
thermodisc.
5) Unplug wire harness on left rear side panel
(from inside the stove).
6) Disconnect green ground wire from fan
body.
7) Lift fan off of the 2 pins, tip forward and pull
through firebox opening.
If your fan requires maintenance or replace-
ment, access to the fan is through the access
panel on the rear wall of the firebox. NOTE: the
unit MUST NOT be operated without the
fan access panel securely in place and
correctly sealed.
IMPORTANT: These fans do collect a
lot of dust from within your home.
Ensure you maintain these fan mo-
tors on a regular basis by vacuuming
out the fan squirrel cages.
Replacing fan:
Reverse above steps. Hint for pushing fan down
onto pins - rub a bit of dish soap on the grommet
so it will slide more easily onto the pin. Check to
make sure the fan is seated properly on the pins
- try to move the fan back and forth, there should
be no noise, if there is check that the grommets
haven't come loose.
Caution: Ensure that the wires do not
touch a hot surface.

Related product manuals