EasyManua.ls Logo

Regency Ultimate U39E Series - Page 27

Regency Ultimate U39E Series
60 pages
Print Icon
To Next Page IconTo Next Page
To Next Page IconTo Next Page
To Previous Page IconTo Previous Page
To Previous Page IconTo Previous Page
Loading...
Regency
®
U39E-11 ULTIMATE™ Freestanding Gas Stove | 27
installation
Diagram 10
Diagram 9
Diagram 8
Diagram 7
Diagram 6
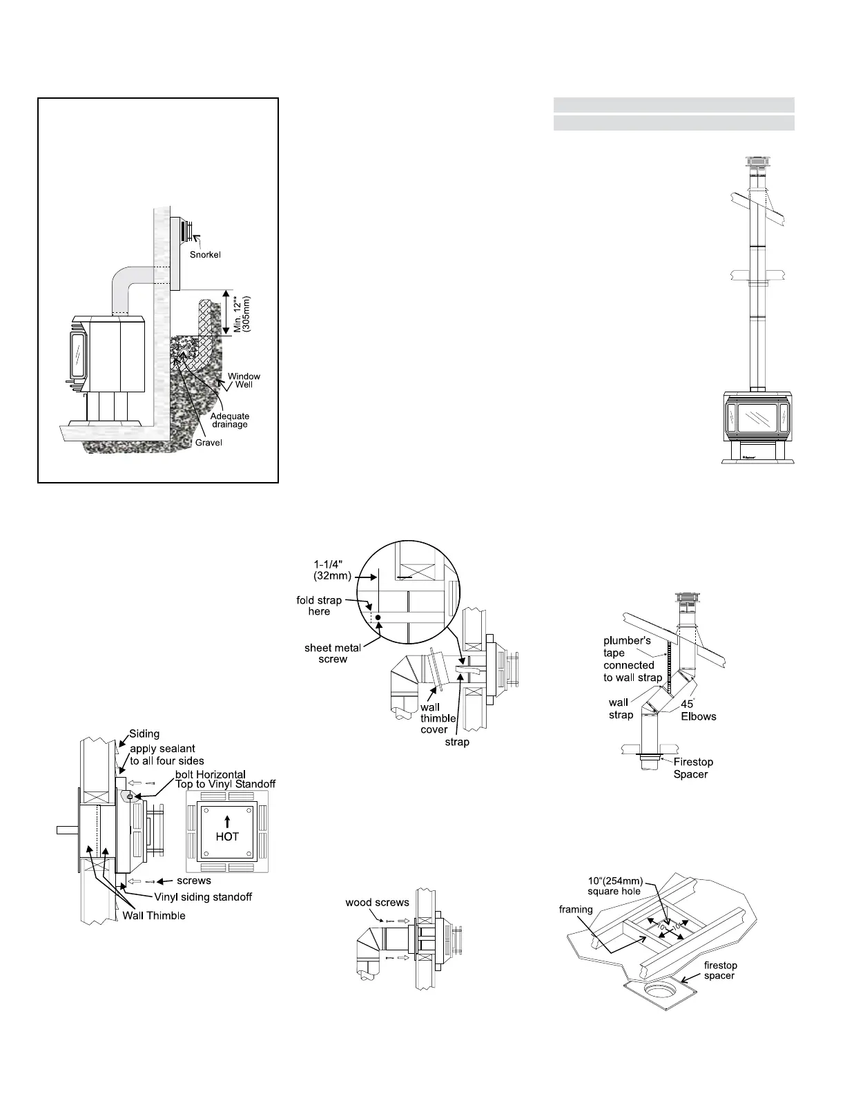
7. Install the Wall Thimble in the center of the 10"
square and attach with wood screws.
8. Slide the decorative wall thimble up to the wall
surface being careful not to scratch the paint and
attach with screws provided. Apply decorative
brass or chrome trim if desired. See diagram
7.
Dura-Vent Vertical
Terminations
3. To install the Round Support Box/Wall Thimble
in a flat ceiling, cut a 10 inch square hole in
the ceiling centred on the hole drilled in Step
2. Frame the hole as shown in diagram 10.
Diagram 5
Note: If installing termination on a siding
covered wall, a vinyl siding standoff
or furring strips must be used to
ensure that the termination is not
recessed into the siding. The four
wood screws provided should be
replaced with appropriate fasteners
for stucco, brick, concrete, or other
types of sidings.
5. Before connecting the horizontal run of vent
pipe to the vent termination, slide the black
decorative wall thimble cover over the vent pipe,
then slide the Wall Thimble over the vent pipe.
6. Slide the appliance and vent assembly towards
the wall carefully inserting the vent pipe into
the vent cap assembly. It is important that the
vent pipe extends into the vent cap a sufficient
distance so as to result in a minimum pipe
overlap of 1-1/4 inches. Secure the connection
between the vent pipe and the vent cap by
attaching the two sheet metal strips extending
from the vent cap assembly into the outer
wall of the vent pipe. Use the two sheet metal
screws provided to connect the strips to the
pipe. Bend any remaining portion of the sheet
metal strip back towards the vent cap, so it will
be concealed by the decorative wall thimble
cover. See diagram 6.
4. If installing the vent termination to a wall with
vinyl siding, the Vinyl Siding Standoff must be
used. Attach the Vinyl Siding Standoff to the
Horizontal Vent Termination, but first run a bead
of non-hardening mastic around its outside
edges, so as to make a seal between vent cap
and the standoff. Install the Vinyl Siding Standoff
between the vent cap and the exterior wall and
attach with the four wood screws provided.
Seal around the Vinyl Siding Standoff on all
four sides. Diagram 5. The arrow on the vent
cap should be pointing up. Insure that the
1-1/4" clearances to combustible materials are
maintained. See diagram 5.
Below Grade Installation
If the Snorkel Termination must be installed below
grade, i.e. basement application, proper drainage
must be provided to prevent water from entering
the Snorkel Termination. Refer to Dia. 4. Do not
attempt to enclose the Snorkel within the wall,
or any other type of enclosure.
Diagram 4
1. Maintain the 1-1/4" clearances
(air spaces) to combustibles
when passing through ceilings,
walls, roofs, enclosures,
attic rafter, or other nearby
combustible surfaces. Do
not pack air spaces with
insulation. Check the "Rigid
Pipe Venting Arrangments"
section for the maximum
vertical rise of the venting
system and the maximum
horizontal offset limitations.
2. Set the gas appliance in
its desired location. Drop a
plumb bob down from the
ceiling to the position of the
appliance flue exit, and mark
the location where the vent
will penetrate the ceiling. Drill
a small hole at his point.
Next, drop a plumb bob from the roof to the
hole previously drilled in the ceiling, and mark
the spot where the vent will penetrate the roof.
Determine if ceiling joists, roof rafters or other
framing will obstruct the venting system. You
may wish to relocate the appliance or to offset,
as shown in diagram 9 to avoid cutting load
bearing members.

Table of Contents

Related product manuals