EasyManua.ls Logo

Regency Ultimate U39E Series - Optional Wall Thermostat; Wiring Diagram with Optional Thermostat

Regency Ultimate U39E Series
60 pages
Print Icon
To Next Page IconTo Next Page
To Next Page IconTo Next Page
To Previous Page IconTo Previous Page
To Previous Page IconTo Previous Page
Loading...
Regency
®
U39E-11 ULTIMATE™ Freestanding Gas Stove | 41
installation
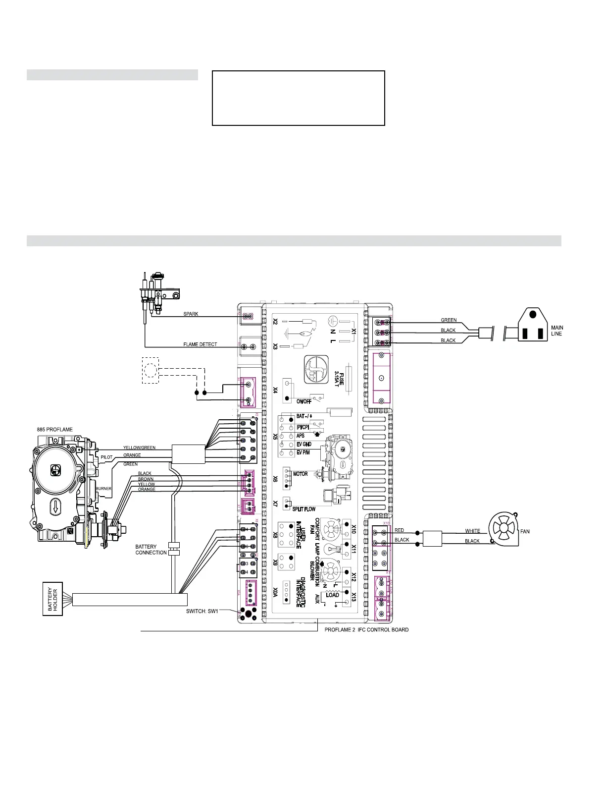
Optional Wall Thermostat
A wall thermostat may be installed if desired.
Connect the wires as per the wiring diagrams.
Note: Preferable if the thermostat is installed
on an interior wall.
Regency
®
offers an optional programmable
thermostat but any 250-750 millivolt rated non-
anticipator type thermostat that is CSA, ULC or
UL approved may be used.
CAUTION
Do not connect the millivolt
wall thermostat wires
to the 120V wires.
Wiring Diagram with Optional Thermostat
GREY
GREY
Thermostat( Optional)
(Millivolt)
EXTERNAL ANTENNA

Table of Contents

Related product manuals