EasyManua.ls Logo

Reznor UDXC - Page 33

Reznor UDXC
64 pages
Print Icon
To Next Page IconTo Next Page
To Next Page IconTo Next Page
To Previous Page IconTo Previous Page
To Previous Page IconTo Previous Page
Loading...
33
UBXC-UDXC-IOM (02-24) 1042980-0
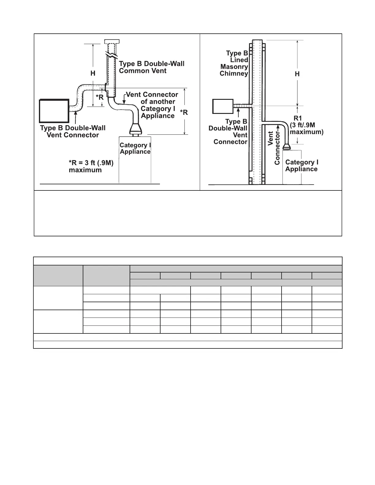
Figure 15. Typical Category I Common Vertical Vent
H = COMMON VENT HEIGHT = VERTICAL DISTANCE FROM HIGHEST DRAFT HOOD OUTLET OR FLUE COLLAR TO VENT CAP
OR CHIMNEY OUTLET OF COMMON VENT
R = VENT CONNECTOR RISE = VERTICAL DISTANCE FROM EACH HEATER OR APPLIANCE OUTLET TO CENTER LINE WHERE
VENT GAS STREAMS COME TOGETHER (3 FEET (0.9 METER) MAXIMUM)
VENT CONNECTOR = HORIZONTAL LENGTH OF VENT PIPE BETWEEN EACH APPLIANCE AND VERTICAL COMMON VENT
UNIT
UNIT
Table 15. Category I Common Vertical Vent Capacity
Appliance Types
Sharing Common
Vertical Vent
Vent
Diameter
(Inches (mm))*
Vent Height (Feet (Meters))
6 (1.8) 7 (2.1) 8 (2.4) 10 (3.0) 15 (4.6) 20 (6.1) 30 (9.1)
Maximum Combined Input Rating of Appliances (MBTUh)
Two fan-assisted
appliances
5 (127)
147 170 187 212 241
6 (152)
180 188 196 213 248 275 315
7 (178)
274 286 298 321 374 417 480
One fan-assisted
appliance and one
non-fan-assisted
appliance**
5 (127)
102 108 113 123 143 159 182
6 (152)
142 149 156 170 199 222 257
7 (178)
220 231 242 263 309 345 401
*Type B double-wall vent pipe.
**Non-fan-assisted appliances rely solely on the natural buoyancy of the vent gases for venting.

Table of Contents

Related product manuals