EasyManua.ls Logo

RIB ABT2000 - Page 29

RIB ABT2000
Print Icon
To Next Page IconTo Next Page
To Next Page IconTo Next Page
To Previous Page IconTo Previous Page
To Previous Page IconTo Previous Page
Loading...
29
D
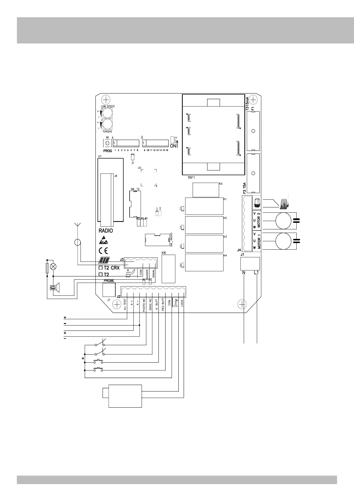
T2 cod. AC07086
T2 CRX cod. AC07085
ELEKTROANSCHLÜSSE
+
+
-
-
+
R=2,2KΩ
BUZZER
+
-
MOTOR 1
MOTOR 2
SPEISUNG
230Vac 50 Hz
ANTENNE
BEFLECHTUNG
ANTENNE
SIGNAL
24 Vdc für
AUTOTEST FÜR
GELENKRIPPE
24 Vdc für
ZUBEHÖRE
FOTOZELLEN
ELEKTRO-
SCHLOSS
RIPPE
SCHRITT BEI SCHRITT
FUSSGÄNGER
ALLGEMEINE
BLINKER
KONDENSATOR
M2
KONDENSATOR
M1

Related product manuals