EasyManua.ls Logo

RIB RAPID S - Page 21

RIB RAPID S
Print Icon
To Next Page IconTo Next Page
To Next Page IconTo Next Page
To Previous Page IconTo Previous Page
To Previous Page IconTo Previous Page
Loading...
21
fermeture, il provoque la réouverture de la lisse. En mode de
fonctionnement Park (DIP 6 ON) il active l’ouverture de la lisse
pour entrer dans le parking.
FONCTION HORLOGE DU BOUTON-POUSSOIR D’OUVERTURE
Pour utiliser la FUNCTION HORLOGE demander PARK
230V avec firmware 08 NOUP. ATTENTION: UNE
HORLOGE CONNECTÉ À PARK 230V avec fw 05 ou plus
ACTIVE LE MOUVEMENT D’OUVERTURE DE LA LISSE
SANS SÉCURITÉ ACTIVE!
Cette fonction est utile aux heures de pointe, lorsque la
circulation est ralentie (ex. entrée/sortie d’ouvriers, urgences
dans les zones résidentielles ou les parkings et, temporairement,
en raison de déménagements).
MODALITÉ D’APPLICATION FONCTION HORLOGE
Demander PARK 230V avec firmware 08 NOUP.
En reliant un interrupteur et/ou une horloge de type quotidien/
hebdomadaire (à la place du bouton-poussoir de fermeture
N.A “bornes Com - Open 1” ou parallèlement à celui-ci), il est
possible d’ouvrir l’automatisme et de le maintenir ouvert jusqu’à
ce que l’interrupteur soit pressé ou tant que l’horloge est
active. Lorsque l’automatisme est ouvert, toutes les fonctions
de commande sont bloquées. En relâchant l’interrupteur,
ou au terme de l’heure fixée, l’automatisme se fermera
immédiatement.
POUSSOIR DE FERMETURE (Com - Close)
Lorsque la lisse est ouverte, il actionne le dispositif de
fermeture.
POUSSOIR DE COMMANDE PAS À PAS (Com - Bouton K)
DIP5 OFF => Effectue une commande cyclique des commandes ouvre-stop-ferme-stop-ouvre-etc.
DIP5 ON => Procède à l’ouverture lorsque la lisse est fermée. S’il est actionné lors de l’ouverture,
il ne produit aucun effet. S’il est actionné lorsque la lisse est ouverte, il entraîne sa
fermeture. S’il est actionné au cours de la fermeture, il provoque la réouverture de la
lisse.
TÉLÉCOMMANDE
DIP4 OFF => Effectue une commande cyclique des commandes ouvre-stop-ferme-stop-ouvre-etc.
DIP4 ON => Procède à l’ouverture lorsque la lisse est fermée. S’il est actionné lors de l’ouverture,
il ne produit aucun effet. S’il est actionné lorsque la lisse est ouverte, il entraîne sa
fermeture. S’il est actionné au cours de la fermeture, il provoque la réouverture de la
lisse.
FERMETURE AUTOMATIQUE (DIP 3)
Les temps de pause avant la fermeture automatique de la lisse sont enregistrés lors de la
programmation des temps. Le temps de pause maximal est de 5 minutes. Il est possible d’activer ou
de désactiver le temps de pause avec DIP3 (ON - activé).
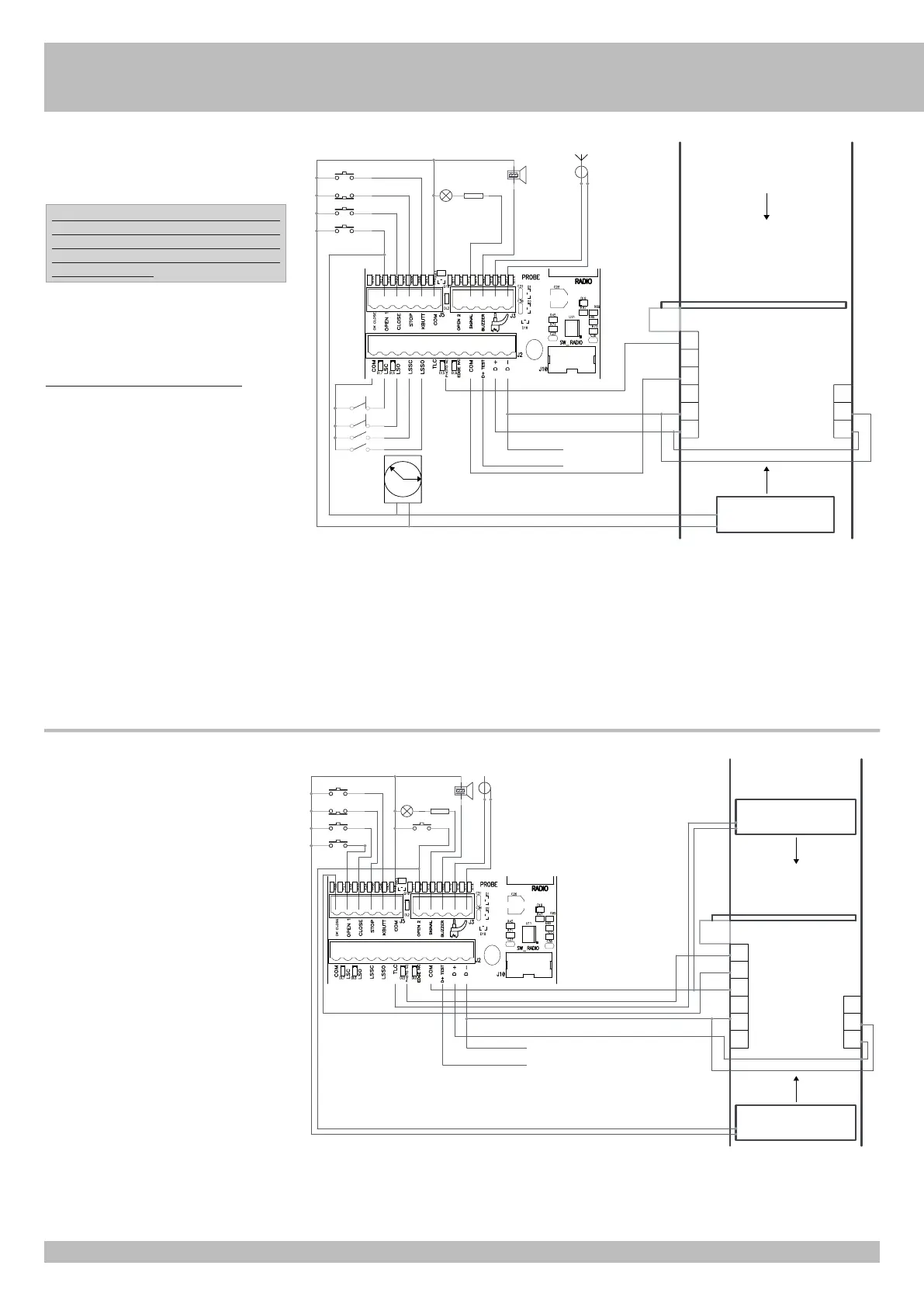
_
+
+
_
_
+
+
NC
D-
+
D
+D
NO
COM
SS
D-
-
+
PAS A PAS
STOP
FERME
OUVRE 1
ANTENNE
LED
BUZZER
ENVELOPPE
ANTENNE
ENTRÉE
DETECTEUR A SPIRE
MAGNETIQUE
SORTIE
R=2K2
TIMER
LSC
LSO
LSSC
LSSO
CORD.
12 Vdc max 0,5A pour ACCESSOIRES
12 Vdc max 0,5A pour AUTOTEST POUR CORDON DE
SECURITE
FONCTIONNEMENT DU MODE PARK (DIP 6
ON)
Dès l’instant où une voiture se trouve sur le capteur magnétique,
l’ouverture de la lisse peut être commandée grâce au bouton-
poussoir OUVERTURE 1, au bouton K ou à la commande RADIO.
La lisse restera ouverte jusqu’à ce que la voiture ne se trouve
plus devant les cellules photoélectriques situées au niveau de la
ligne de fin de passage.La fermeture s’effectue immédiatement
après le passage (cellule photoélectrique dégagée) et est
protégée par les cellules photoélectriques et/ou la barre
palpeuse. Celles-ci commanderont l’inversion de la lisse en
ouverture même si la voiture reste dans le champ d’action
des sécurités.
POUR SORTIR:
L’ouverture de la lisse s’effectue grâce au bouton-poussoir
OUVERTURE 2 relié à un capteur magnétique ou à un autre
dispositif à condition qu’il n’y ait pas de véhicule sur le capteur
magnétique d’entrée (voir DIP 8 pour l’exclusion du bloc de
priorité).
La lisse restera ouverte jusqu’à ce que la voiture ne se trouve
plus devant les cellules photoélectriques situées au niveau de
la ligne de fin de passage.
La fermeture s’effectue immédiatement après le passage
(cellule photoélectrique dégagée) et est protégée par les
cellules photoélectriques et/ou la barre palpeuse. Celles-ci
commanderont l’inversion de la lisse en ouverture même si la
voiture reste dans le champ d’action des sécurités.
ATTENTION: Le temps d’attente avant la fermeture automatique
sera décompté uniquement si DIP 3 est sur ON.
Par conséquent, si DIP 3 est sur ON et si le véhicule reste trop longtemps sur le capteur magnétique
sans bouger (sans impliquer la cellule photoélectrique), la lisse se fermera après le temps prédéfini.
BOUTON-POUSSOIR OUVERTURE 2 (Com - Open 2) uniquement pour le fonctionnement en
mode PARK
Commande destinée à l’ouverture de la lisse pour sortir du parking avec gestion du signal de priorité
du feu. Cette commande est bloquée si la commande TLC est enclenchée (présence d’un véhicule à
NO
NC
D+
D-
+
D-
S
D+
+
S
COM
+
_
+
_
-
+
PAS PAS
STOP
FERME
OUVRE 1
ANTENNE
LED
BUZZER
ENVELOPPE
ANTENNE
DETECTEUR A SPIRE
MAGNETIQUE
SORTIE
DETECTEUR A SPIRE
MAGNETIQUE
ENTREE
R=2K2
CORD.
12 Vdc max 0,5A pour ACCESSOIRES
12 Vdc max 0,5A pour AUTOTEST POUR CORDON DE SICURITE
F

Related product manuals