EasyManua.ls Logo

RIB RAPID S - Page 31

RIB RAPID S
Print Icon
To Next Page IconTo Next Page
To Next Page IconTo Next Page
To Previous Page IconTo Previous Page
To Previous Page IconTo Previous Page
Loading...
31
Closing is enabled (DIP3 ON) or somebody commands the
barrier closing. It is useful during rush hour, when traffic is
heavy and the flow is low (e.g. entrance/exit of employees,
emergencies in residential areas or car parks) and it’s
necessary to keep the boom arm opened.
CLOCK FUNCTION APPLICATION
It is necessary to request a PARK 230V control panel
with firmware 08 NOUP. It can be done by connecting a
switch and/or a daily/weekly timer either in parallel to the
OPEN1 button or instead of the OPEN1 button. When the
control board receives this command, the boom arm will
open and by keeping this contact closed for all the time of
the boom arm opening, the Clock Function is automatically
activated. In fact, once reached the open position, the
barrier will remain opened and all of the control board
features are blocked. Only when the OPEN1 button is
released, the control board functions are re-activated and
the boom arm will close immediately.
CLOSE BUTTON (COM - CLOSE)
The CLOSE button performs the close command,
regardless the position of the boom arm.
STEP BY STEP or AUTOMATIC COMMANDS (COM - K
BUTT)
DIP5 - OFF => The K BUTT performs the cyclic command
open-stop-close-stop-open etc.
DIP5 - ON => The K BUTT performs:
- the open command, if pressed with the
barrier completely closed
- the close command, if pressed with the
barrier completely opened
- no effect, if pressed during the barrier opening
- the boom arm re-open, if pressed while the barrier is closing
REMOTE CONTROL
DIP4 - OFF => The REMOTE CONTROL performs the cyclic command open-stop-close-stop-
open etc.
DIP4 - ON => The REMOTE CONTROL performs:
- the open command, if pressed with the barrier completely closed
- the close command, if pressed with the barrier completely opened
- no effect, if pressed during the barrier opening
- the boom arm re-open, if pressed while the barrier is closing
AUTOMATIC CLOSING (DIP3 ON)
The Automatic Closing from the complete open position can be enabled turning ON the DIP3.
The maximum time that can be programmed is 5 minutes (see the Point D).
_
+
+
_
_
+
+
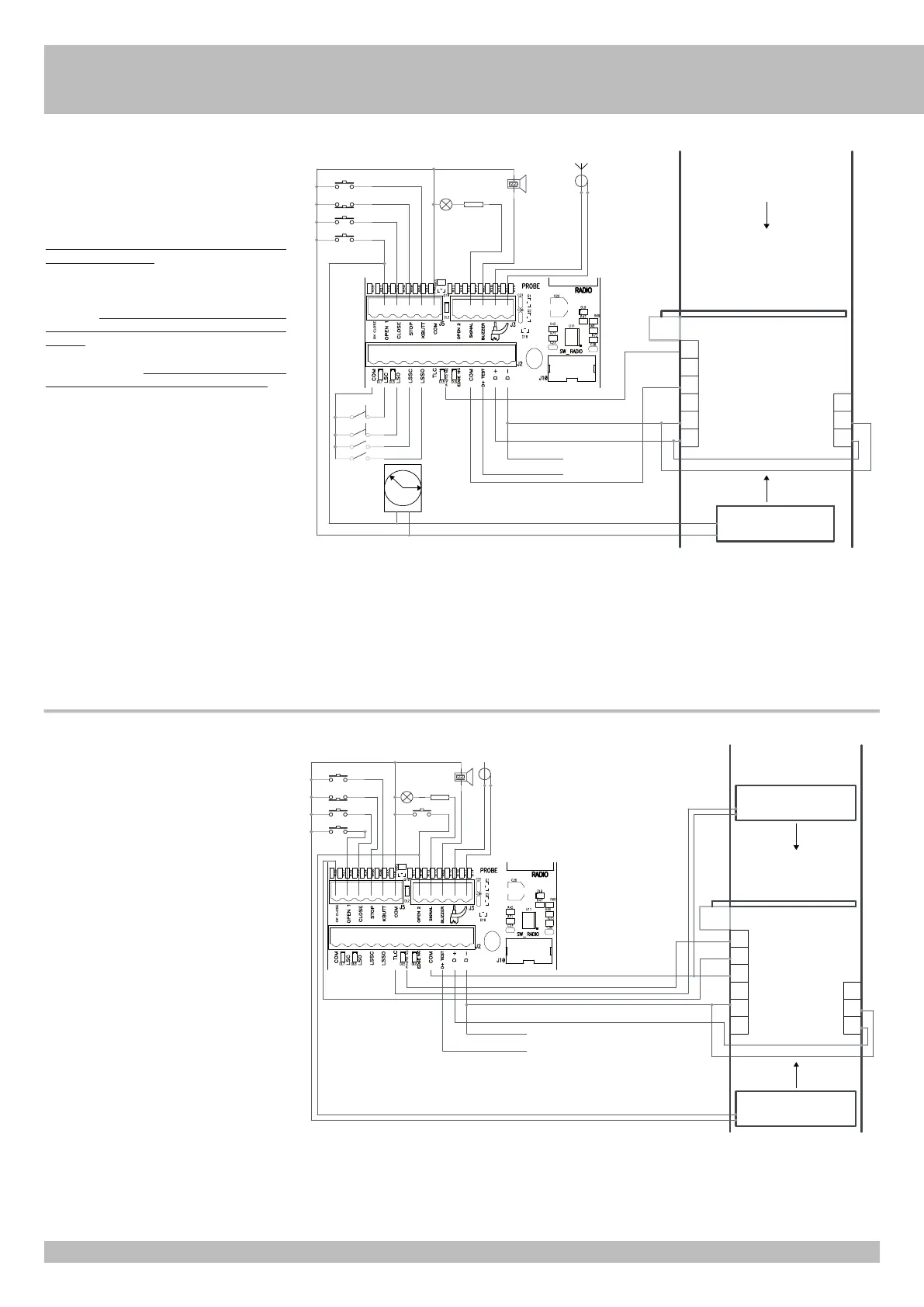
NC
D-
+
D
+D
NO
COM
SS
D-
-
+
K BUTTON
STOP
CLOSE
OPEN 1
AERIAL
LED
BUZZER
COAX
ENTRY
MAGNETIC LOOP
TO EXIT
R=2K2
TIMER
LSC
LSO
LSSC
LSSO
EDGE
12 Vdc max 0,5A for ACCESSORY SUPPLY
12 Vdc max 0,5A for AUTOTEST EDGE
TO ENTER:
Provided there be a vehicle on the Entry magnetic loop (see
scheme 4), opening can be controlled by pressing OPEN1,
K BUTT or RADIO switch (OPEN1 performs the boom arm
opening only if the TLC, connected to the Entry Magnetic
Loop, contact is closed).
TO EXIT:
Provided there be a vehicle on the Exit magnetic loop (see
scheme 4), opening can be controlled by pressing OPEN2,
K BUTT, RADIO switch. The OPEN2 can be connected to
the Exit magnetic loop.
If the DIP8 is turned ON, the OPEN2 will perform the barrier
opening regardless the presence of a vehicle at the Entry.
If the DIP8 is turned OFF, the OPEN2 will perform the
barrier opening if there is no vehicle on the magnetic
sensor connected to the TLC input (TLC contact opened).
In both the conditions, TO ENTER and TO EXIT, from the
complete boom arm open position:
If the Automatic Closing is enabled (DIP3 ON),
the boom arm will close at the end of the delay time
programmed (see Point D).
If the Automatic Closing is disabled, the boom arm
will remain open until a closing command is pressed or
until the vehicle passes in front of the photocells, giving
an OK CLOSE impulse to the control board (the OK CLOSE
command can be connected to the NO contact of the
photocell receiver).
OPEN2 BUTTON (COM - OPEN2) (ONLY PARK MODE)
If the NORMAL MODE is enabled (DIP6 OFF), the OPEN2 command will be disabled.
If the PARK MODE is enabled (DIP6 ON), the OPEN2 will perform the boom arm opening
depending on the switch DIP8 position.
If DIP8 is turned ON and PARK MODE is enabled, OPEN2 will perform the boom arm
opening regardless the state of the TLC input.
If DIP8 is turned OFF and PARK MODE is enabled, OPEN2 will perform the boom arm
opening only if the TLC contact is OPEN (no vehicle at the Entry, see scheme 4).
OPERATING IN PARK MODE (DIP6 ON)
NO
NC
D+
D-
+
D-
S
D+
+
S
COM
+
_
+
_
-
+
K BUTTON
STOP
CLOSE
OPEN 1
AERIAL
LED
BUZZER
COAX
MAGNETIC LOOP
TO EXIT
MAGNETIC LOOP
TO ENTRY
R=2K2
EDGE
12 Vdc max 0,5A for ACCESSORY SUPPLY
12 Vdc max 0,5A for AUTOTEST EDGE
G
B

Related product manuals