EasyManua.ls Logo

RIB RAPID S - Page 41

RIB RAPID S
Print Icon
To Next Page IconTo Next Page
To Next Page IconTo Next Page
To Previous Page IconTo Previous Page
To Previous Page IconTo Previous Page
Loading...
41
Bei geschlossener Schranke steuert dieser Tastschalter die
Öffnungsbewegung an. Wenn dieser Tastschalter während
eines Schließvorgangs gedrückt wird, öffnet sich die Schranke
wieder. In der Funktionsweise «Park-Modus» («DIP 6» auf
«EIN») wird mit dieser Taste die Öffnung der Schranke aktiviert
und es wird die Einfahrt eines Fahrzeug auf den Parkplatz
zugelassen.
DIE UHR-FUNKTON DER SCHALTTASTE ÖFFNUNG
Wenn Sie die Uhr-Funktion wollen müssen Sie für
PARK 230V mit Firmware 08 NOUP fragen.
WARNUNG: EINE UHR AN DEM PARK 230V mit fw 05,
oder mehr, verbunden, UMFASST DIE BEWEGUNG
DES ÖFFNUNG SCHRANKE OHNE SICHERHEIT AKTIV!
Diese Funktion ist in Hauptverkehrszeiten nützlich, wenn der
Verkehrsfluss sich verlangsamt (z.B. bei Schichtwechsel, bei
Notfällen im Wohn- und Parkplatzbereich und gegebenenfalls
bei Umzügen).
FUNKTION UHR ANBRINGUNGSART
Anfragen Sie PARK 230V mit Firmware 08 NOUP.
Durch Anschluss an einen Schalter und/oder an eine Uhr
mit Tag-/Wocheneinstellung (anstatt des oder parallel
zum Tastschalter «Öffnen» N.O. = normalerweise offen /
«Klemmleisten Com - Open 1”), ist es möglich, die Schranke
in der Automatikeinstellung zu öffnen und geöffnet zu halten,
bis der Schalter erneut gedrückt wird oder die voreingestellte
Uhrzeit erreicht ist. Bei geöffneter Automatikeinstellung
werden aller Steuerfunktionen unterdrückt. In dem Loslassen
des Schalters, oder wenn die eingestellte Zeit abgelaufen,
haben Sie die sofortige Schließung der Automation.
TASTSCHALTER «SCHLIESSUNG» (Com - Close)
Bei geöffneter Schranke steuert diese Taste die
Schließbewegung an.
STEUERTASTE FÜR SCHRITTWEISEN BETRIEB (Com - K Button)
DIP5 - OFF => Führt einen Befehl der Steuerreihe Öffnen - Stopp - Schließen - Stopp - Öffnen
usw. aus.
DIP5 - ON => Sorgt für die Öffnung der geschlossenen Schranke. Reagiert nicht, wenn diese
Taste während der Öffnungsbewegung betätigt wird. Wenn diese Taste bei
geschlossener Schranke betätigt wird, führt dies zur Schließung der Schranke.
Wenn diese Taste während einer Schließbewegung betätigt wird, führt dies zur
erneuten Öffnung der Schranke.
FERNSTEUERUNG
DIP4 - OFF => Führt einen Befehl der Steuerreihe Öffnen - Stopp - Schließen - Stopp - Öffnen
usw. aus.
DIP4 - ON => Sorgt für die Öffnung der geschlossenen Schranke. Reagiert nicht, wenn diese
Taste während der Öffnungsbewegung betätigt wird. Wenn diese Taste bei
geschlossener Schranke betätigt wird, führt dies zur Schließung der Schranke.
Wenn diese Taste während einer Schließbewegung betätigt wird, führt dies zum
erneuten Öffnen der Schranke.
AUTOMATISCHE SCHLIESSUNG (DIP 3)
Der Pausenzyklus bis zur automatischen Schließung der Schranke wird während der
Zeitprogrammierung eingestellt. Der maximale Pausenzyklus bis zur automatischen Schließung der
Schranke beträgt 5 Minuten. Der Pausenzyklus bis zu Schließung kann aktiviert oder deaktiviert
werden durch DIP3 («EIN» - aktiv).
_
+
+
_
_
+
+
NC
D-
+
D
+D
NO
COM
SS
D-
-
+
SCHRITT BEI SCHRITT
STOP
SCHLIESSE
ÖFFNE 1
ANTENNE
LED
BUZZER
BEFLECHTUNG
ANTENNE
EINFAHRT
SENSOR MIT MAGNETSPULE
AUSFAHRT
R=2K2
TIMER
LSC
LSO
LSSC
LSSO
RIPPE
12 Vdc max 0,5A für ZUBEHÖRE
12 Vdc max 0,5A für AUTOTEST FÜR
GELENKRIPPE
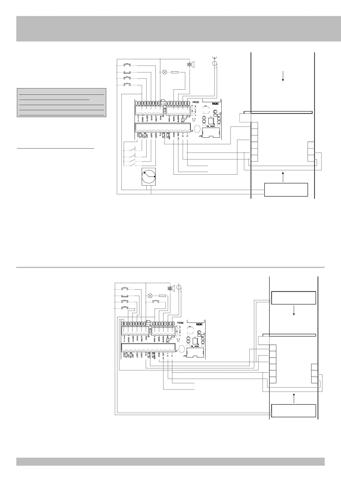
FUNKTIONSWEISE «PARK-MODUS» (DIP
6 ON)
FÜR DIE EINFAHRT:
Wenn ein Fahrzeug vom Magnetsensor wahrgenommen
wird, kann die Öffnung der Schranke durch den Tastschalter
«ÖFFNUNG 1», den «K BUTTON» oder auch durch die FUNK-
Fernsteuerung ausgelöst werden. Die Schranke bleibt so
lange geöffnet, bis das Fahrzeug die Lichtschranke passiert
hat, welche auf der Höhe der Grenzlinie der vollständigen
Fahrzeugdurchfahrt angebracht ist. Die Schließung erfolgt
unmittelbar nach erfolgter Durchfahrt (Fotozelle frei) und
wird durch Fotozellen und/oder eine Lichtkontaktleiste
abgesichert. Diese Sicherheitseinrichtungen kehren die
Schließbewegung in eine Öffnungsbewegung um, falls ein
Fahrzeug im Wirkradius der Sicherheitseinrichtungen stehen
bleiben sollte.
FÜR DIE AUSFAHRT:
Die Öffnung der Schranke wird durch den Tastschalter
«ÖFFNUNG 2» ausgelöst, der an einen Magnetsensor
oder eine andere Vorrichtung angeschlossen ist, unter
der Voraussetzung, dass sich kein Fahrzeug im Bereich
des Einfahrt-Magnetsensors befindet (siehe DIP 8 für den
Ausschluss der Vorfahrtssperre).
Die Schranke bleibt so lange geöffnet, bis das Fahrzeug die
Lichtschranke passiert hat, die auf der Höhe der Grenzlinie
der vollständigen Fahrzeugdurchfahrt angebracht ist.
Die Schließung erfolgt unmittelbar nach erfolgter Durchfahrt
(Fotozelle frei) und wird durch Fotozellen und/oder eine
Lichtkontaktleiste abgesichert. Diese Sicherheitseinrichtungen
steuern die Schließbewegung auf Öffnen um, falls ein
Fahrzeug im Wirkradius der Sicherheitseinrichtungen stehen
bleiben sollte.
ACHTUNG: Der Pausenzyklus bis zur automatischen Schließung wird nur dann berechnet, wenn
“DIP 3» auf «EIN” steht.
Daraus folgt, dass sich die Schranke nach der voreingestellten Zeit schließt, wenn “DIP 3» auf EIN”
steht und gleichzeitig ein Fahrzeug zu lange im Bereich des Magnetsensors (ohne Rückmeldung
durch die Fotozellen) stehen bleibt, ohne weiterzufahren.
TASTSCHALTER «ÖFFNUNG 2» (Com - Open 2) nur für Funktionsweise im PARK-Modus
Dieser Befehl ermöglicht die Öffnung der Schranke zum Verlassen des Parkplatzes bei gleichzeitiger
Vorfahrtsregelung durch eine Ampelanlage.
NO
NC
D+
D-
+
D-
S
D+
+
S
COM
+
_
+
_
-
+
SCHRITT BEI
SCHRITT
STOP
SCHLIESSE
ÖFFNE 1
ANTENNE
LED
BUZZER
BEFLECHTUNG
ANTENNE
SENSOR MIT MAGNETSPULE
AUSFAHRT
SENSOR MIT MAGNETSPULE
EINFAHRT
R=2K2
RIPPE
12 Vdc max 0,5A für ZUBEHÖRE
12 Vdc max 0,5A für AUTOTEST FÜR GELENKRIPPE
D

Related product manuals