EasyManua.ls Logo

Riello Array AR 1000 - Page 41

Riello Array AR 1000
76 pages
Print Icon
To Next Page IconTo Next Page
To Next Page IconTo Next Page
To Previous Page IconTo Previous Page
To Previous Page IconTo Previous Page
Loading...
41
SHUTDOWN
41
APPENDIX
APPENDIX
MANAGING
J3-4 b
J3-9 h
J3-3 bl
J3-8 w
J2-2 gr
J3-2 bl
J3-5 bl
J3-10 w
J2-3 gr
J1-1 w
J1-5 bl
J1-4 gr
J3-7 w
J3-1 b
J9-2 b
J9-4 h
J6-11 h
J6-4 b
J6-6 b
J6-13 h
J6-7 b
J6-14 h
FLUE SENSOR
204
203
RETURN T. SENSOR
EXCON 4201
SERVICE DISPLAY
J6-5 b
J6-12 h
J6-10 h
J6-3 b
J6-8 h
J6-1 b
J6-2 bl
FLOWMETER
LWCO
(Module)
J7-6 b
J7-7 bl
J7-8 h
J7-4 h
J7-3 h
J7-2 b
J7-2 b
WATER PRESSURE
FLUE PRESSURE
J8-2 h
J8-1 b
213
GAS VALVE
J5-1 bl
J5-2 w
J2-4 gr
FAN
216
J4-2 bl
J4-3 w
J2-1 gr
5
4
2
1
J4-1 br
J4-4 h
J4-5 grey
J4-6 bl
211
PWM
SWITCH
SWITCH
+
CONDENSATE
PRES. SWITCH
FAN
J12-3
J11-1
LWCO
(Boiler)
J12-1 b
J12-4 h
J12-5 h
J12-2 b
202
212
WATER THERM.
SUPPLY TEMP. SENSOR
SAFETY LIMIT
(*)
J9-1
J9-3
J3-6
J12-6
AIR PRESSURE SWITCH
4
3
12
5 6
7
8
9 10
11 12
13
14
101
102
103
104
106
107
110
111
112
113
POWER SUPPLY
PARALLEL CONNECTION
RELAY R1-A1
RELAY R1-A2
PARALLEL CONNECTION
MANAGING 2/3/4
ARGUS LINK
MANAGING
J6-8
J6-1
WATER PRESSURE SWITCH
CONDENSATE PRESS. SWITCH DEPENDENT 3
(*) ARRAY 1500 ONLY
J7-2
J7-4
MIN+MAX GAS
PRESSURE SWITCH
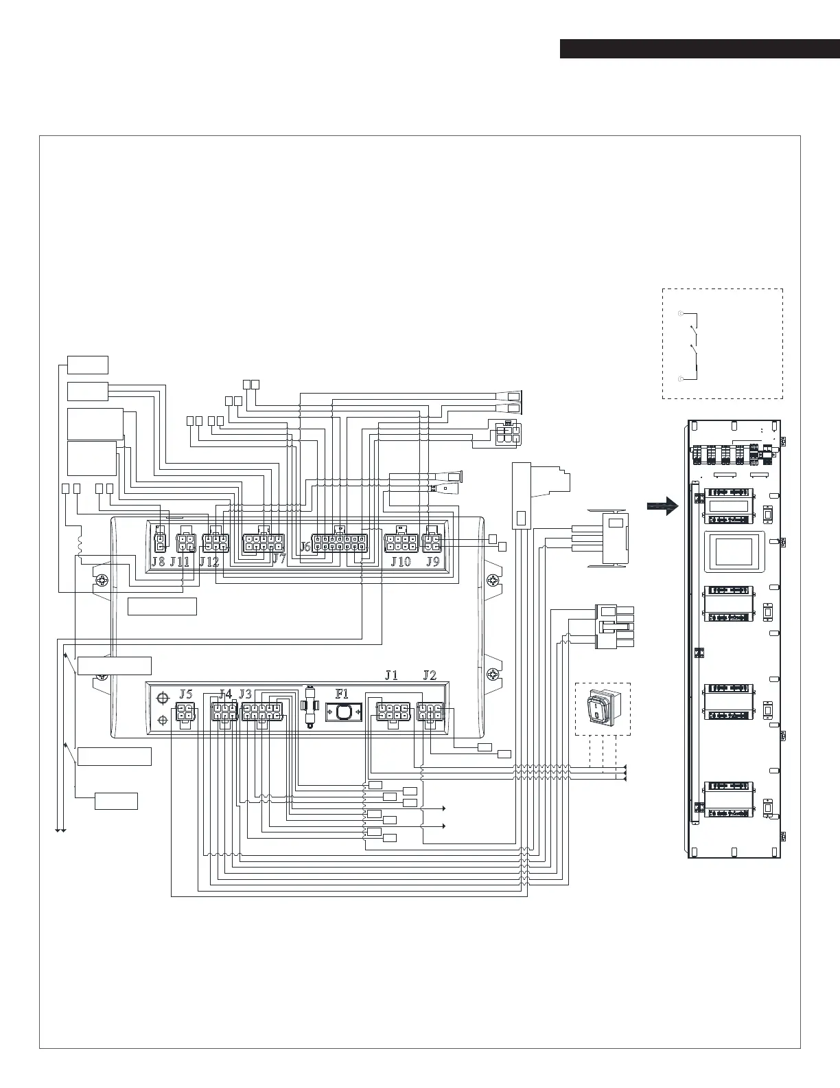
WIRING DIAGRAM AR 1000, AR 1500 - MANAGING

Table of Contents

Related product manuals