EasyManua.ls Logo

Riello Array AR 1000 - Page 44

Riello Array AR 1000
76 pages
Print Icon
To Next Page IconTo Next Page
To Next Page IconTo Next Page
To Previous Page IconTo Previous Page
To Previous Page IconTo Previous Page
Loading...
44
SHUTDOWN
44
APPENDIX
APPENDIX
MANAGING
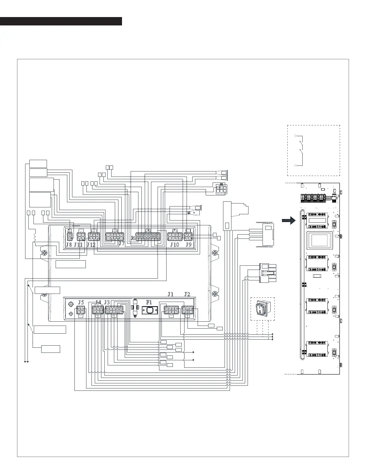
J3-4 b
J3-9 h
J3-3 bl
J3-8 w
J2-2 gr
J3-2 bl
J3-5 bl
J3-10 w
J2-3 gr
J1-1 w
J1-5 bl
J1-4 gr
J3-7 w
J3-1 b
J9-2 b
J9-4 h
J6-11 h
J6-4 b
J6-6 b
J6-13 h
J6-7 b
J6-14 h
FLUE SENSOR
204
203
RETURN T. SENSOR
EXCON 4201
SERVICE DISPLAY
J6-5 b
J6-12 h
J6-10 h
J6-3 b
J6-8 h
J6-1 b
J6-2 bl
J7-6 b
J7-7 bl
J7-8 h
J7-4 h
J7-3 h
J7-2 b
J7-2 b
WATER PRESSURE
FLUE PRESSURE
J8-2 h
J8-1 b
213
GAS VALVE
J5-1 bl
J5-2 w
J2-4 gr
FAN
216
J4-2 bl
J4-3 w
J2-1 gr
5
4
2
1
J4-1 br
J4-4 h
J4-5 grey
J4-6 bl
211
PWM
SWITCH
SWITCH
+
CONDENSATE
PRES. SWITCH
FAN
J12-3
J11-1
J12-1 b
J12-4 h
J12-5 h
J12-2 b
202
212
WATER THERM.
SUPPLY TEMP. SENSOR
SAFETY LIMIT
(*)
J9-1
J9-3
J3-6
J12-6
AIR PRESSURE SWITCH
4
3
12
5 6
7
8
9 10
11 12
13
14
101
102
103
104
106
107
110
111
112
113
POWER SUPPLY
PARALLEL CONNECTION
RELAY R1-A1
RELAY R1-A2
PARALLEL CONNECTION
MANAGING 2/3/4
ARGUS LINK
J6-8
J6-1
WATER PRESSURE SWITCH
CONDENSATE PRESS. SWITCH DEPENDENT 4
(*)
J7-2
J7-4
MANAGING
MIN+MAX GAS
PRESSURE SWITCH
LWCO
(Boiler)
FLOWMETER
LWCO
(Module)
WIRING DIAGRAM AR 2000 - MANAGING

Table of Contents

Related product manuals