EasyManua.ls Logo

Riello Array AR 1500 - Page 14

Riello Array AR 1500
68 pages
Print Icon
To Next Page IconTo Next Page
To Next Page IconTo Next Page
To Previous Page IconTo Previous Page
To Previous Page IconTo Previous Page
Loading...
14
INSTALLATION
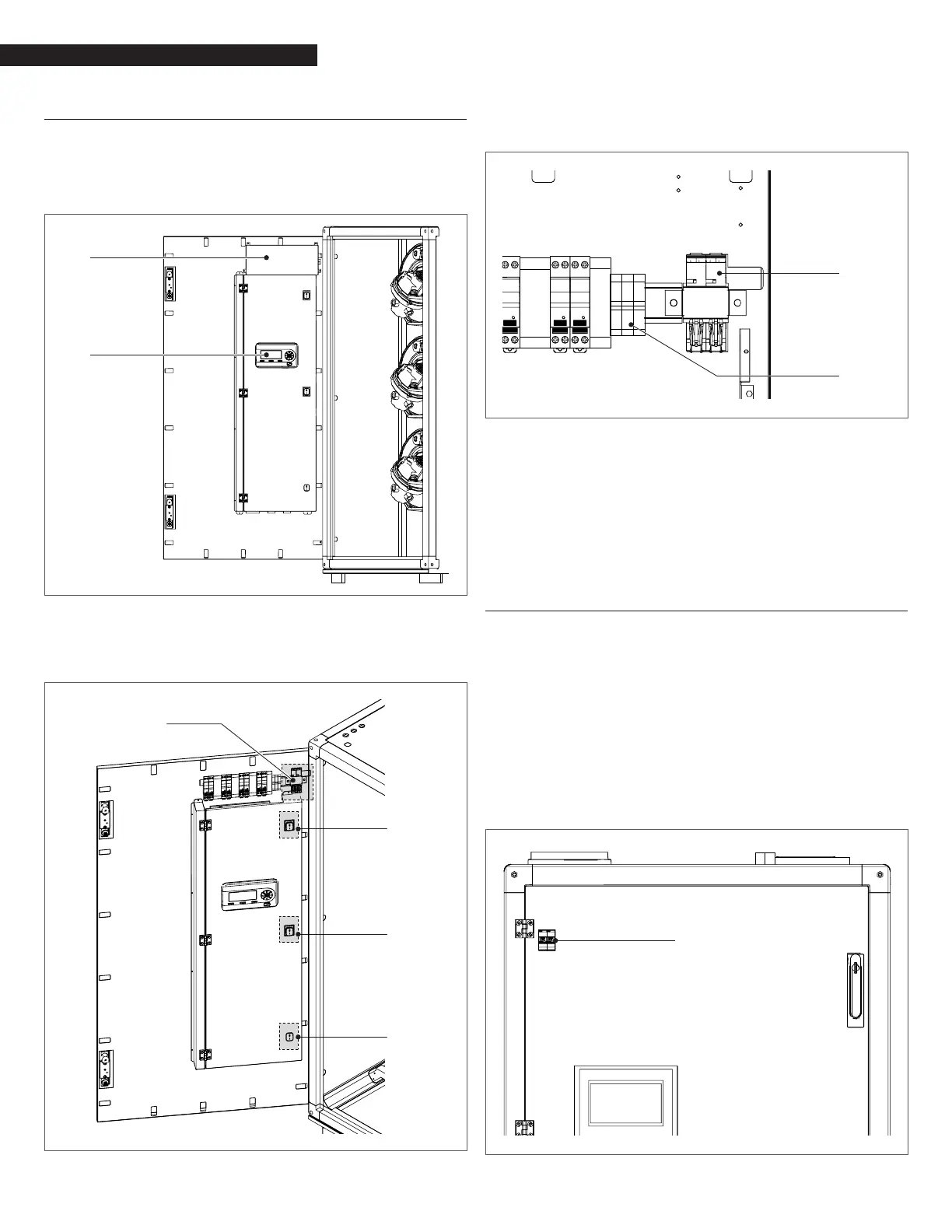
2.12 AC electrical power wiring
External AC power connections are made to the unit inside the
electrical box, located on the front of the unit, inside the front
door. Open the front door and remove the panel mounted in the
upper part of the door of the unit as shown in Fig. 17.
Front Door
Cover Panel
Service
Display
Fig. 17
Front Door Internal Layout
Loosen the screws of the cover and remove panel to access the
internal connections shown in Fig. 18.
Module Power
Switch
Front Door
Electrical box
Module Power
Switch
Module Power
Switch
Fig. 18
Front Door Electrical box
7
All of the components in the Electrical box are mounted on a DIN
rail.
Main Switch
(backside view)
Terminal Blocks
Fig. 19
Front Door Electrical components
7
9
WARNING: The main switch shown in Fig. 20 does not remove
power from the left door terminal blocks.
NOTE: All electrical conduit and hardware must be installed so that
it does not interfere with the removal of any unit covers, inhib-
it service/maintenance, or prevent access between the unit and
walls or another unit.
2.12.1 Electrical Power Requirements
The voltage conguration of Array AR 1000, AR 1500 and AR 2000 is
as follows:
120VAC, 1-Phase, 60 Hz
Each unit must be connected to a dedicated electrical circuit.
NO OTHER DEVICES SHOULD BE ON THE SAME ELECTRICAL CIRCUIT AS
THE BOILER.
The Main Circuit two-pole switch is accessible on the front door
to quickly and safely disconnect electrical service (except the left
door terminal blocks).
Main Switch
Fig. 20
Main switch

Related product manuals