EasyManua.ls Logo

Riello RL 28/2 - Fuel Supply; Hydraulic Connections

Riello RL 28/2
24 pages
Print Icon
To Next Page IconTo Next Page
To Next Page IconTo Next Page
To Previous Page IconTo Previous Page
To Previous Page IconTo Previous Page
Loading...
8
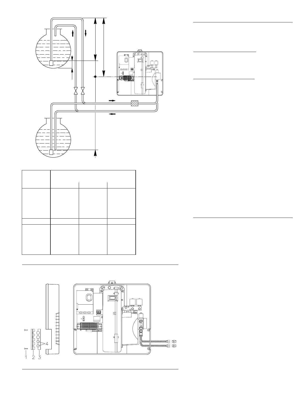
HYDRAULIC SYSTEM
FUEL SUPPLY
DOUBLE - PIPE SYSTEM (A)
The burner is equipped with a self-priming pump
which is capable of feeding itself within the limits
listed in the table at the left.
The tank higher than the burner
A
The distance "P" must not exceed 33 ft in order to
avoid subjecting the pump's seal to excessive strain;
the distance "V" must not exceed 13 ft in order to per-
mit pump self-priming even when the tank is almost
completely empty.
The tank lower than the burner
B
Pump suction values higher than 13 “Hg must not be
exceeded because at higher levels gas is released
from the fuel, the pump starts making noise and its
working life-span decreases.
It is good practice to ensure that the return and suc-
tion lines enter the burner from the same height; in
this way it will be more improbable that the suction
line fails to prime or stops priming.
LOOP CIRCUIT
A loop circuit consists of a loop of piping supplied
from and returning to the tank with an auxiliary pump
that circulates the fuel under pressure. A branch con-
nection from the loop goes to feed the burner. This
circuit is extremely useful whenever the burner pump
does not succeed in self-priming because the tank
distance and/or height difference are higher than the
values listed in the table.
Key
H = Pump/Foot valve height difference
L = Piping length
Ø = Inside pipe diameter
1=Burner
2=Pump
3=Filter
4 = Manual on/off valve
5 = Suction line
6 = Foot valve
7 = Return line
HYDRAULIC CONNECTIONS (B)
The pumps is equipped with a by-pass that connects
return line and suction line. It is factory set with the
by-pass valve closed by screw 6)(A)p.12.
It is therefore necessary to connect both hoses to the
pump.
The pump seal will be damaged immediately if it is
run with the return line closed and the by-pass
screw inserted.
Remove the plugs from the suction and return con-
nections of the pump.
Insert the hose connectors into the connections and
screw them down.
Take care that the hoses are not stretched or twisted
during installation.
Route the hoses through the holes in the plate, prefer-
ably using those on the rh side, fig. (B): unscrew the
screws 1), now divide the insert piece into its two
parts 2) and 3) and remove the thin section blocking
the two passages 4).
Install the hoses where they cannot be stepped on or
come into contact with hot surfaces of the boiler.
(A)
+ H
- H
(ft)
L (ft)
Ø (inch)
5/16” 3/8” 1/2”
+ 13 115 296 500
+ 10 99 263 500
+ 6.6 86 227 500
+ 3.3 69 194 428
+ 1.6 63 174 391
056158355
- 1.6 49 141 319
- 3.3 43 122 283
- 6.6 30 89 211
- 10 13 53 138
- 13 20 66
(B)
D2284
D2283
A
B
1
2
3
7
5
6
6
4
75
3
15
/
16
- H
+ H
V
P
HYDRAULIC CONNECTIONS

Related product manuals